Prodej rodinného domu, Horní Moštěnice, Havlíčkova, 350 m2 (ID: 2134244)

Havlíčkova, Horní Moštěnice


Cena na vyžádání /za nemovitost
Získejte výhodnou HYPOTÉKU

(cena u makléře)


Regionální dodavatelé v Horní Moštěnici

Popis

NOVÁ CENA! Dům, který je reálně dělitelný až na 3 samostatné bytové jednotky.

Hledáte prostorný, technicky kvalitní dům, který nabízí okamžité bydlení, možnost pronájmu i podnikání, a to vše s nízkými provozními náklady?
Pak je tento dům v obci Horní Moštěnice přesně pro vás.

Základní informace
vícegenerační rodinný dům
užitná plocha cca 350 m
pozemek cca 781 m
slepá ulice klid, soukromí, minimum provozu
energetická náročnost B velmi úsporná
dům po rozsáhlé rekonstrukci

Dispozice hlavní konkurenční výhoda
Dům je reálně dělitelný až na 3 samostatné bytové jednotky, případně ideální pro kombinaci bydlení + podnikání.
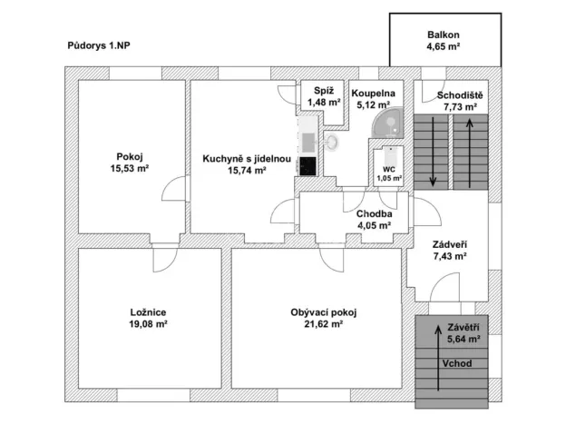
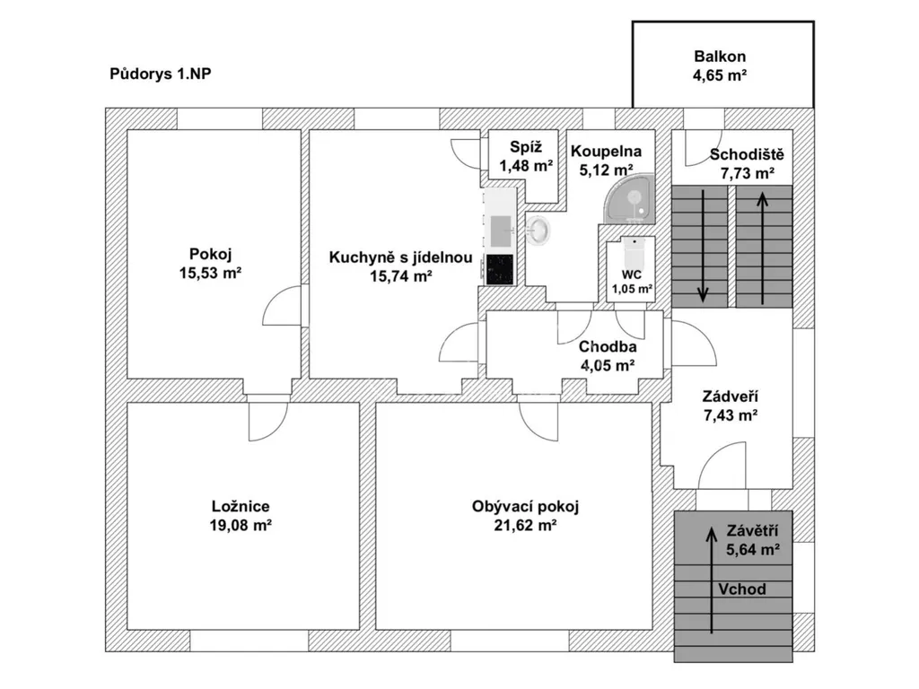
Přízemí byt 3+1
kuchyně se špajzem
tři obytné pokoje
koupelna se sprchovým koutem
samostatné WC

1. patro byt 3+kk
prostorná kuchyně s jídelnou
obývací pokoj s krbem
šatna
koupelna se sprchovým koutem
samostatné WC

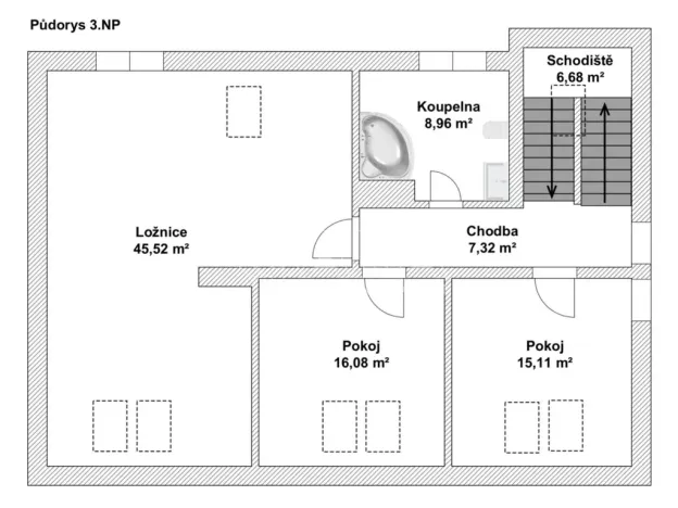
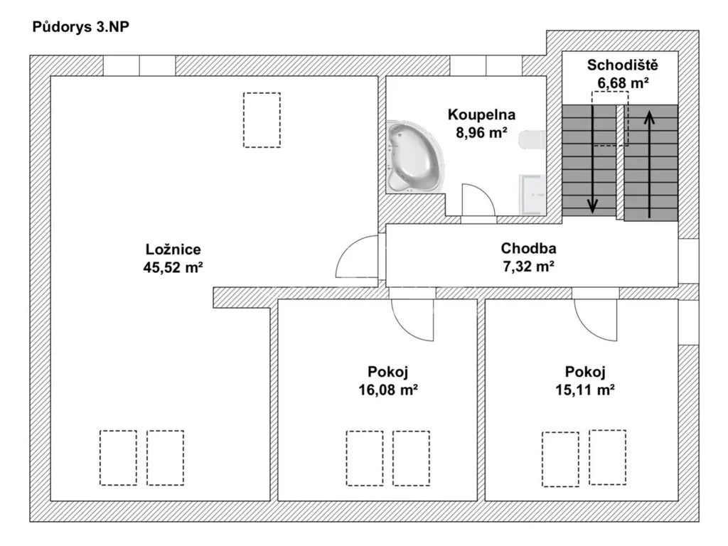
Podkroví samostatná bytová jednotka / mezonet
dva samostatné pokoje
plus velký pokoj s přípravou na kuchyňský kout
koupelna s vanou, wc

Ideální řešení pro:
vícegenerační bydlení
samostatný pronájem bytů
kanceláře, služby
sídlo firmy s bydlením

Technický stav a vybavení
kompletní rekonstrukce rozvodů (elektřina, voda, odpady)
tepelné čerpadlo (2023)
fotovoltaika (2023)
zateplená fasáda (1215 cm)
masivní zdivo cca 50 cm
zateplené sklepy i štíty
pálená střešní krytina Tondach
plastová okna s dvojskly
internet + datové rozvody v každé místnosti
Výsledkem jsou velmi nízké provozní náklady, a to i vzhledem k velikosti domu.

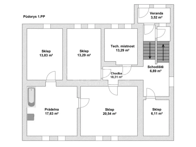
Sklep a hospodářské zázemí
sklepní prostory cca 100 m
technická místnost
prádelna
sklad
výborné zázemí pro provoz domu i podnikání
Díky velkorysé ploše se zde navíc přímo nabízí možnost vybudování domácí posilovny nebo wellness zóny.

Exteriér a pozemek
uzavřený dvůr maximální soukromí
garáž
sklad a hospodářská místnost
zahrada 258m2
bezproblémové parkování přímo na pozemku

Lokalita
plná občanská vybavenost v obci
školka, škola, lékař, obchody
vlak, autobus i MHD v docházkové vzdálenosti
Přerov pár minut jízdy, dobrá dostupnost z Olomouce a s novou dálnicí ještě lepší

Potenciál
k rodinnému bydlení
možnost samostatného pronájmu jednotlivých bytů
vhodné pro investory, podnikatele i kombinaci bydlení + příjem
energetická třída B = dlouhodobě udržitelný provoz

Velký, energeticky úsporný vícegenerační dům po rekonstrukci, který nabízí okamžité bydlení, silný investiční potenciál a flexibilní využití v klidné lokalitě.
V případě zájmu o více informací, příp. o prohlídku mne prosím kontaktujte. Cena na požádání.

Cena
Cena na vyžádání Spočítat hypotéku
Poznámka k ceně
cena u makléře
Aktualizováno
13. 4. 2026
Adresa
Havlíčkova, Horní Moštěnice
ID
18734
Stavba
Cihlová
Stav objektu
Velmi dobrý
Typ objektu
Patrový
Druh objektu
Řadový
Užitná plocha
350 m2
Zastavěná plocha
148 m2
Podlahová plocha
450 m2
Plocha pozemku
781 m2
Plocha zahrady
258 m2
Třída energetické náročnosti
B - Velmi úsporná
Plyn
Plynovod
Odpad
Veřejná kanalizace
Komunikace
Betonová, Dlážděná
Telekomunikace
Internet
Doprava
Vlak, Dálnice, Silnice, Autobus
Voda
Vodovod, Studna
Garáž
Sklep
Bezbarierový přístup

Máte zájem o tuto nemovitost?

Tímto, v souladu s nařízením Evropského parlamentu a Rady (EU) 2016/679, v platném znění, prohlašuji, že mi je alespoň 16 let a uděluji tak svůj souhlas se zpracováním zadaných údajů (jméno, telefon, e-mail, ip adresa) společnosti B3 Technology, s.r.o., IČ: 07330600, se sídlem Novostavby 126/23, 435 11 Lom (správce dat), za účelem předání dotazu z tohoto formuláře Vámi vybranému inzerentovi a zpětného kontaktování mé osoby. Osobní údaje bude správce zpracovávat manuálně i automaticky přímo prostřednictvím svých zaměstnanců. Informace předané tímto formulářem budou uloženy v databázi správce maximálně po dobu 10 let. Odvolání souhlasu s uložením a zpracováním poskytnutých dat lze e-mailem na info@realitymat.cz. V případě podezření na neoprávněné použití Vámi poskytnutých údajů máte právo předat podnět k šetření Úřadu pro ochranu osobních údajů. Více informací
Chystáte se prodat nemovitost?
Pomůžeme Vám!

Kontakt

Eva Andrášiová

Eva Andrášiová

Přihlášení k odběru

Nenechte si ujít nejnovější nabídky prodeje rodinných domů v Horní Moštěnici.

Podobné nabídky