Pronájem bytu 1+kk, Kolín, Janovická, 30 m2

Janovická, Kolín III


14 500 Kč /za měsíc
Získejte výhodnou HYPOTÉKU
Regionální dodavatelé v Kolíně

Popis

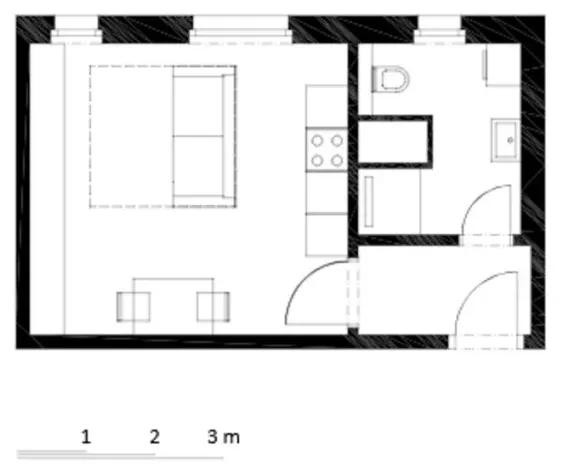
K dlouhodobému pronájmu nabízíme byt 1+kk (30 m² ) v novostavbě v ulici Janovická 892 v Kolíně - volný od pondělí 8. 12. 2025. Brzy budou do inzerce pořízeny kvalitnější fotografie.

Byt se nachází v 1. patře novostavby s výtahem (bezbariérový vstup), a je velmi úsporný na topení a elektřinu. K bytu patří soukromé parkovací stání přímo před vchodem a sklep o výměře 2 m². Nyní je v bytě k dispozici také lednice a pračka.

Nová čtvrť novostaveb Za jízdárnou je vystavena poblíž kolínské nemocnice, v aktivním městě, s plnou občanskou vybaveností. Okolí domů je krásně upraveno výsadbou lučních květin a keřů, kde ještě probíhají dokončující práce pro moderní životní styl.

Měsíční nájemné: 14.500,- Kč, poplatky za služby vč. záloh na vodné a teplo: 1.800,- Kč, elektřina na přepis na nájemníka (můžeme zařídit za vás u Innogy nebo ČEZ). Vratná kauce: 2x měsíční nájemné, rezervace/ zprostředkovatelská provize: 1x měsíční nájemné + DPH.

Prosím kontaktujte mne nejlépe přes formulář v inzerci s informacemi o počtu osob, o vašem zaměstnání, a zda máte domácí zvíře. Budu vás kontaktovat na domluvení termínu prohlídky...

Cena
14 500 Kč /za měsíc
Aktualizováno
2. 12. 2025
Adresa
Janovická, Kolín III
ID
00637
Stavba
Cihlová
Stav objektu
Novostavba
Patro
1.
Vybaveno
Částečně
Vlastnictví
Osobní
Užitná plocha
30 m2
Třída energetické náročnosti
G - Mimořádně nehospodárná
Odpad
Veřejná kanalizace
Doprava
Vlak, Dálnice, Silnice, MHD, Autobus
Voda
Vodovod
Zdroj teplé vody
Centrální dálkový ohřev
Sklep
Výtah
Bezbarierový přístup
Parkování

Máte zájem o tuto nemovitost?

Tímto, v souladu s nařízením Evropského parlamentu a Rady (EU) 2016/679, v platném znění, prohlašuji, že mi je alespoň 16 let a uděluji tak svůj souhlas se zpracováním zadaných údajů (jméno, telefon, e-mail, ip adresa) společnosti B3 Technology, s.r.o., IČ: 07330600, se sídlem Novostavby 126/23, 435 11 Lom (správce dat), za účelem předání dotazu z tohoto formuláře Vámi vybranému inzerentovi a zpětného kontaktování mé osoby. Osobní údaje bude správce zpracovávat manuálně i automaticky přímo prostřednictvím svých zaměstnanců. Informace předané tímto formulářem budou uloženy v databázi správce maximálně po dobu 10 let. Odvolání souhlasu s uložením a zpracováním poskytnutých dat lze e-mailem na info@realitymat.cz. V případě podezření na neoprávněné použití Vámi poskytnutých údajů máte právo předat podnět k šetření Úřadu pro ochranu osobních údajů. Více informací
Chystáte se prodat nemovitost?
Pomůžeme Vám!

Kontakt

Sylvie Vrbická

Sylvie Vrbická

Přihlášení k odběru

Nenechte si ujít nejnovější nabídky pronájmu bytů 1+kk v Kolíně.

Podobné nabídky