Pronájem bytu 3+kk, Brno, Řípská, 70 m2

Řípská, Brno, Slatina


28 000 Kč /za měsíc
Získejte výhodnou HYPOTÉKU

(+ zálohy na služby 5000,- , + kauce 28 000,-, + provize RK)


Regionální dodavatelé v Brně

Popis

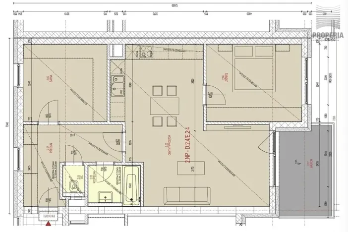
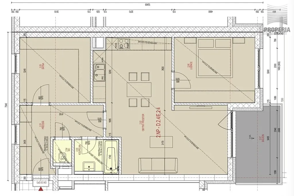
Nabízím k pronájmu moderní byt o dispozici 3+kk nacházející se v žádané lokalitě Brno – Slatina, na ulici Řípská.

Byt o celkové ploše 77 m² je situován v 3. nadzemním podlaží bytového domu a nabízí praktické a komfortní bydlení pro jednotlivce, pár i rodinu.
Součástí bytu je klimatizace a předokenní žaluzie pro zachování příjemné teploty i v letních dnech. Kuchyňská linka je nadstandardně vybavena, součástí myčka, trouba, indukce.

Dispozice bytu:
• obývací pokoj s kuchyňským koutem
• samostatná ložnice
• další pokoj (dětský pokoj / pracovna)
• koupelna s vanou / sprchovým koutem a WC
• balkon o velikosti 8 m²

K bytu dále náleží:
• sklepní kóje 8 m²
• vyhrazené parkovací místo (v ceně nájmu)

Lokalita:
Městská část Slatina patří mezi velmi dobře dostupné a praktické lokality v Brně. V bezprostřední blízkosti se nachází široká občanská vybavenost – dětské hřiště, mateřská i základní škola, pošta, obchody i restaurace. Zázemí pro volný čas se psem, dětmi se nachází v rozsáhlém parku za domem s dětskými hřišti, psím výběhem.

Velkou výhodou je blízkost zábavního parku Bruno Family Park, který ocení zejména rodiny s dětmi. Pro každodenní nákupy je k dispozici obchodní centrum včetně Kaufland, Lídl a dalších služeb.

Samozřejmostí je také výborná dopravní dostupnost do centra Brna i napojení na dálniční tahy.
Dopravní spojení hromadnou dopravou ze zastávky Vlárská, Černovičky trolejbus č. 31.

Nájemné:
• nájemné: 28 000,-/ měsíc
• zálohy na energie a služby: 5000 Kč / měsíc
• vratná kauce: 28 000 Kč
• provize RK: 28 000 Kč + DPH

Byt je k dispozici od 1.5.2026

Požadavky: nekuřák

Pro více informací a domluvení prohlídky mě neváhejte kontaktovat, budu se těšit na prohlídku.

Cena
28 000 Kč /za měsíc
Poznámka k ceně
+ zálohy na služby 5000,- , + kauce 28 000,-, + provize RK
Aktualizováno
14. 4. 2026
Adresa
Řípská, Brno, Slatina
ID
03919
Stavba
Cihlová
Stav objektu
Velmi dobrý
Patro
3. z 6
Vybaveno
Ano
Lokalita objektu
Sídliště
Vlastnictví
Osobní
Užitná plocha
70 m2
Podlahová plocha
86 m2
Třída energetické náročnosti
B - Velmi úsporná
Ukazatel energetické náročnosti
77 kWh/m2 za rok
Komunikace
Asfaltová
Telekomunikace
Internet, Kabelová televize
Doprava
Silnice
Voda
Vodovod
Zdroj teplé vody
Centrální dálkový ohřev
Balkon
Sklep
Výtah
Bezbarierový přístup
Parkování

Máte zájem o tuto nemovitost?

Tímto, v souladu s nařízením Evropského parlamentu a Rady (EU) 2016/679, v platném znění, prohlašuji, že mi je alespoň 16 let a uděluji tak svůj souhlas se zpracováním zadaných údajů (jméno, telefon, e-mail, ip adresa) společnosti B3 Technology, s.r.o., IČ: 07330600, se sídlem Novostavby 126/23, 435 11 Lom (správce dat), za účelem předání dotazu z tohoto formuláře Vámi vybranému inzerentovi a zpětného kontaktování mé osoby. Osobní údaje bude správce zpracovávat manuálně i automaticky přímo prostřednictvím svých zaměstnanců. Informace předané tímto formulářem budou uloženy v databázi správce maximálně po dobu 10 let. Odvolání souhlasu s uložením a zpracováním poskytnutých dat lze e-mailem na info@realitymat.cz. V případě podezření na neoprávněné použití Vámi poskytnutých údajů máte právo předat podnět k šetření Úřadu pro ochranu osobních údajů. Více informací
Chystáte se prodat nemovitost?
Pomůžeme Vám!

Kontakt

Martin Schuppler

Martin Schuppler

Přihlášení k odběru

Nenechte si ujít nejnovější nabídky pronájmu bytů 3+kk v Brně.

Podobné nabídky