Remax Monarcha

Prodej rodinného domu, Olomouc, Slovácká, 205 m2

Slovácká, Olomouc


15 500 000 Kč /za nemovitost
HYPOTÉKA od 69 276 Kč /měs.

(včetně provize)


Regionální dodavatelé v Olomouci

Popis

Realitní kancelář ALLE reality&development s.r.o. Vám v exkluzivním
zastoupení developera nabízí projekt nízkoenergetických samostatně stojících rodinných
domů v Olomouci. Jedná se o ucelený komplex osmi samostatně stojících domů
o dispozici 4+kk, nebo 5+kk s garáží. Domy jsou zděné, dvoupodlažní s možností mnoha
klientských změn a nadstandardních prvků.
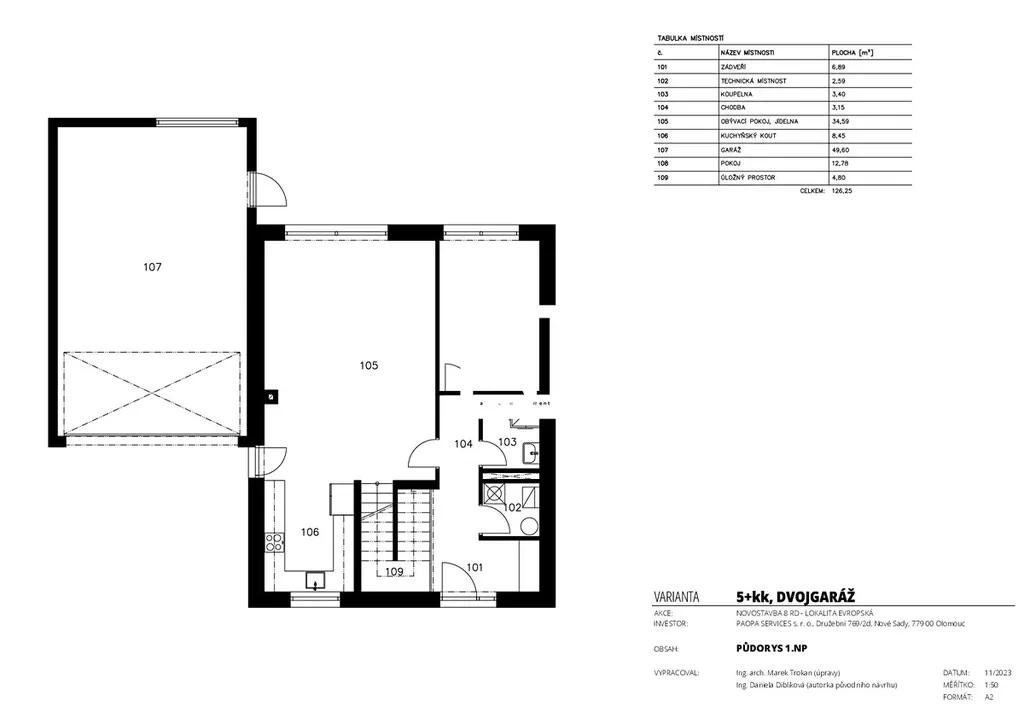
RD 4 o dispozici 4+kk/5+kk má užitnou plochu 205 m2 a pozemek 440 m2. Dominantou
přízemí je velkorysý obytný prostor s jídelnou, prosvětlený velkoformátovými
okny, se vstupem na terasu a zahradu. V přízemí se dále nachází jeden pokoj
(pracovna/ložnice) s výměrou 13 m2, technická místnost, koupelna se
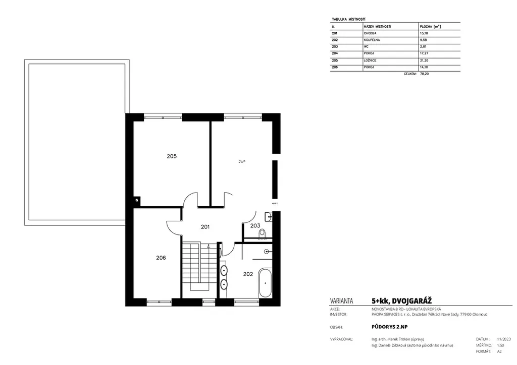
sprchovým koutem a toaletou. V patře se pak nachází tři ložnice s
nadstandardními výměrami a prostorná koupelna s vanou, sprchovým koutem,
dvou umyvadlem + samostatné WC. Garáž o výměře 48 m2 má přístup i na
zahradu. Pohodlně zde zaparkujete dvě auta, díky nadstandardní délce garáže zůstává
dostatek úložného prostoru na zahradní techniku, kola a jiné sportovní vybavení.
RD 4 má aktuálně základovou desku, k nastěhování bude v roce 2027.
Projekt rodinných domů je realizovaný v městské části Olomouc – Holice.
Jedná se o klidnou lokalitu poblíž širšího centra města. Lokalita je
oblíbená především pro klidné rodinné bydlení v moderní zástavbě, se
skvělou dopravní obslužností a občanskou vybaveností. V blízkosti projektu
najdete odpočinkovou zónu rybník Amerika. Milovníci přírody jsou za několik
minut v Holickém lese. Poloha lokality zajišťuje vynikající dopravní
dostupnost do centra Olomouce, ale i na dálniční koridory.
Domy splňují veškeré požadavky moderního, komfortního a kvalitního bydlení.
Důraz je kladen na kvalitu materiálů a jednotlivých prvků. Nároční klienti
jistě docení možnost a variabilitu klientských změn. V rámci projektu je
možné žádat o dotaci na pasivní dům s PENB A.
Klient hradí nad rámec kupní ceny poplatek za právní a administrativní servis.

Cena
15 500 000 Kč /za nemovitost Spočítat hypotéku
Poznámka k ceně
včetně provize
Aktualizováno
6. 3. 2026
Adresa
Slovácká, Olomouc
ID
00791
Stavba
Cihlová
Stav objektu
Novostavba
Druh objektu
Samostatný
Užitná plocha
205 m2
Plocha pozemku
440 m2
Třída energetické náročnosti
B - Velmi úsporná
Ukazatel energetické náročnosti
90 kWh/m2 za rok
Garáž

Máte zájem o tuto nemovitost?

Tímto, v souladu s nařízením Evropského parlamentu a Rady (EU) 2016/679, v platném znění, prohlašuji, že mi je alespoň 16 let a uděluji tak svůj souhlas se zpracováním zadaných údajů (jméno, telefon, e-mail, ip adresa) společnosti B3 Technology, s.r.o., IČ: 07330600, se sídlem Novostavby 126/23, 435 11 Lom (správce dat), za účelem předání dotazu z tohoto formuláře Vámi vybranému inzerentovi a zpětného kontaktování mé osoby. Osobní údaje bude správce zpracovávat manuálně i automaticky přímo prostřednictvím svých zaměstnanců. Informace předané tímto formulářem budou uloženy v databázi správce maximálně po dobu 10 let. Odvolání souhlasu s uložením a zpracováním poskytnutých dat lze e-mailem na info@realitymat.cz. V případě podezření na neoprávněné použití Vámi poskytnutých údajů máte právo předat podnět k šetření Úřadu pro ochranu osobních údajů. Více informací
Chystáte se prodat nemovitost?
Pomůžeme Vám!

Kontakt

Mgr. Anna Opluštilová

Mgr. Anna Opluštilová

Přihlášení k odběru

Nenechte si ujít nejnovější nabídky prodeje rodinných domů v Olomouci.

Podobné nabídky