Prodej pozemku pro bydlení, Poříčí nad Sázavou, Pyšelská, 1249 m2 (ID: 2092083)

Pyšelská, Poříčí nad Sázavou


2 999 000 Kč /za nemovitost
HYPOTÉKA od 13 404 Kč /měs.

(včetně právního servisu)


Regionální dodavatelé v Poříčí nad Sázavou

Popis

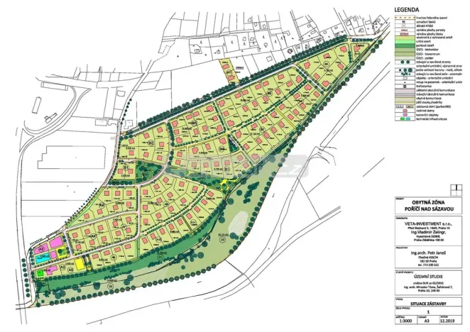
Hledáte vhodný pozemek pro stavbu RD? Máme pro vás exkluzivní nabídku stavebního pozemku v atraktivní a klidné lokalitě Poříčí nad Sázavou, která právě prochází proměnou v moderní čtvrť rodinných domů.
Pozemková parcela č. 198/6 o rozloze 1.249 m² se nachází v západní části této nové rezidenční oblasti. Kupní cena činí 2.999.000,- Kč za pozemek.
V ceně nejsou zahrnuty poplatky za připojení na inženýrské sítě. V plánu je vybudování kompletní infrastruktury – elektřiny, vody, plynu, kanalizace, komunikací a veřejné zeleně.
Celé území je dle územního plánu určeno k výstavbě rodinných domů, což z něj činí ideální volbu pro klidné a pohodové bydlení.
Zaujala vás tato nabídka? Neváhejte mě kontaktovat – ráda vám poskytnu více informací na níže uvedených kontaktech Po-pá 9.00-17.00 hod.

Cena
2 999 000 Kč /za nemovitost Spočítat hypotéku
Poznámka k ceně
včetně právního servisu
Aktualizováno
29. 3. 2026
Adresa
Pyšelská, Poříčí nad Sázavou
ID
999
Plocha pozemku
1249 m2

Máte zájem o tuto nemovitost?

Tímto, v souladu s nařízením Evropského parlamentu a Rady (EU) 2016/679, v platném znění, prohlašuji, že mi je alespoň 16 let a uděluji tak svůj souhlas se zpracováním zadaných údajů (jméno, telefon, e-mail, ip adresa) společnosti B3 Technology, s.r.o., IČ: 07330600, se sídlem Novostavby 126/23, 435 11 Lom (správce dat), za účelem předání dotazu z tohoto formuláře Vámi vybranému inzerentovi a zpětného kontaktování mé osoby. Osobní údaje bude správce zpracovávat manuálně i automaticky přímo prostřednictvím svých zaměstnanců. Informace předané tímto formulářem budou uloženy v databázi správce maximálně po dobu 10 let. Odvolání souhlasu s uložením a zpracováním poskytnutých dat lze e-mailem na info@realitymat.cz. V případě podezření na neoprávněné použití Vámi poskytnutých údajů máte právo předat podnět k šetření Úřadu pro ochranu osobních údajů. Více informací
Chystáte se prodat nemovitost?
Pomůžeme Vám!

Kontakt

Martina Dlouhá

Martina Dlouhá

Přihlášení k odběru

Nenechte si ujít nejnovější nabídky prodeje pozemků pro bydlení v Poříčí nad Sázavou.

Podobné nabídky