Prodej pozemku pro bydlení, Poříčí nad Sázavou, Pyšelská, 1010 m2
Pyšelská, Poříčí nad Sázavou
(včetně právního servisu)
Popis
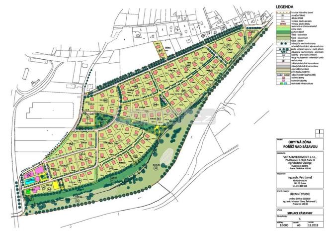
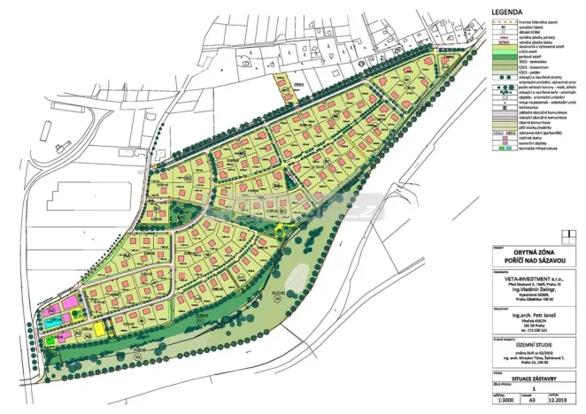
Pozemek určený územním plánem pro stavbu RD v Poříčí nad Sázavou. Hledáte místo, kde by mohl vyrůst váš budoucí domov? Máme pro vás exkluzivní nabídku stavebního pozemku v atraktivní a klidné lokalitě Poříčí nad Sázavou, která bude procházet proměnou v moderní čtvrť rodinných domů.
Pozemková parcela č. 193/14 o rozloze 1.010 m² se nachází v západní části této nové rezidenční oblasti. Kupní cena činí 2.750.000 Kč za pozemek.
V ceně nejsou zahrnuty poplatky za připojení na inženýrské sítě. V plánu je vybudování kompletní infrastruktury – elektřiny, vody, plynu, kanalizace, komunikací a veřejné zeleně.
Celé území je dle územního plánu určeno k výstavbě rodinných domů, což z něj činí ideální volbu pro klidné a pohodové bydlení.
Zaujala vás tato nabídka? Neváhejte mě kontaktovat – ráda vám poskytnu více informací na níže uvedených kontaktech Po-pá 9.00-17.00 hod.
Máte zájem o tuto nemovitost?

Náměstí Republiky 28, Plzeň
Pomůžeme Vám!
Pomůžeme Vám!
Kontakt

Martina Dlouhá
Přihlášení k odběru
Nenechte si ujít nejnovější nabídky prodeje pozemků pro bydlení v Poříčí nad Sázavou.
Tipy Realitymatu

Prodej pozemku pro bydlení, Řehenice, 812 m2
3 790 000 Kč

Prodej pozemku pro bydlení, Krhanice, 2624 m2
6 600 000 Kč