Prodej rodinného domu, Plzeň, Koterovská, 80 m2 (ID: 2070726)

Koterovská, Plzeň, okres plzeň-město, Plzeň 2-Slovany


7 990 000 Kč /za nemovitost
HYPOTÉKA od 35 710 Kč /měs.
Regionální dodavatelé v Plzni

Podlahy

Stěhovací služby

Popis

Představujeme k prodeji dům se zahradou a garáží v Plzni na Slovanech, konkrétně na adrese Koterovská 260/163.

Podívejte se na samostatnou stránku domu, odkaz na stránku je ve videoprohlídce.

Dům stojí na rohu Koterovské a Libušínské ulice a byl postaven v roce 1926. Má jedno patro, obytné podkroví a je kompletně podsklepený. V přízemí se nachází vstupní veranda, kuchyně, koupelna, WC a 2 pokoje. V podkroví je pak jeden pokoj s terasou a půda. Obálka domu i interiér jsou v původním stavu, vhodném k rekonstrukci.

Technické informace:
Dům je kompletně zděný, podlahy jsou z hoblovaných prken, v chodbách jsou cementové dlaždice, stropy jsou trámové, schodiště je betonové, stropy nad sklepy a chodbami v přízemí jsou taktéž betonové, půdy jsou dlážděné a střecha byla v roce 1999 měněná za pálené tašky. Krov je v dobrém stavu. Původní dokumentace k domu je u realitní makléřky a bude k dispozici na prohlídce.

Sítě:
Voda je do domu přivedena z obecního vodovodu + na pozemku je studna na užitkovou vodu
Odpad je svedený do městské kanalizace
Vytápění zajišťují akumulační kamna
Ohřev vody zajišťuje elektrický bojler
Elektřina a plyn zavedeny

Výměry:
Celková plocha pozemku: 616 m2
Plocha zahrady: 382 m2
Plocha garáže: 39 m2
Plocha přízemí domu: 70 m2
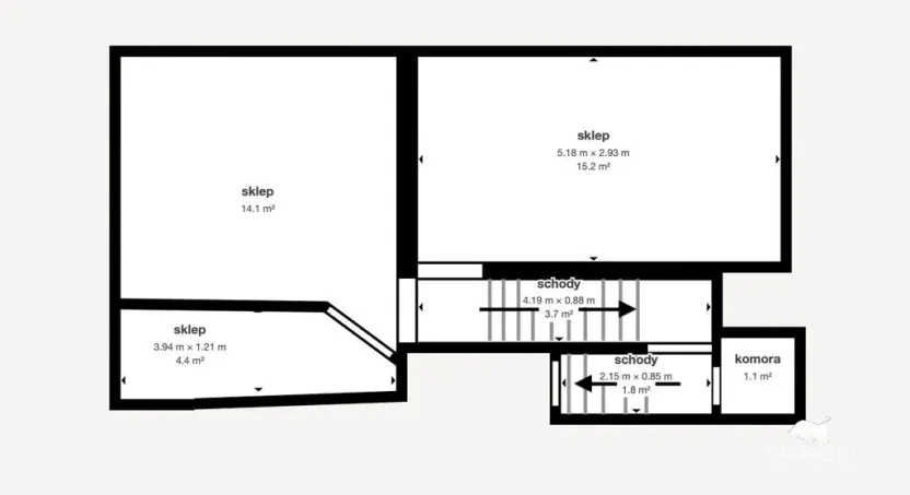
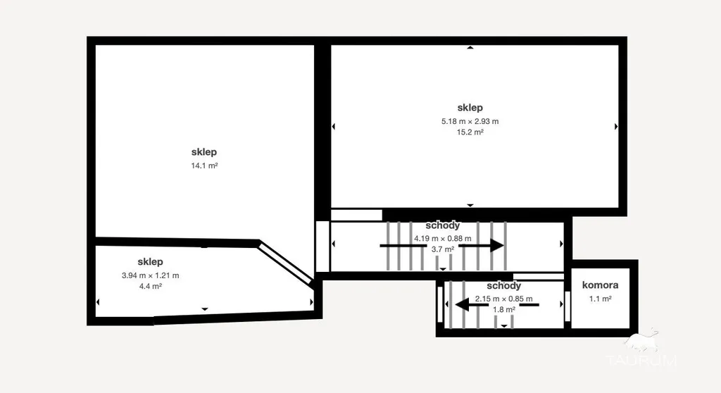
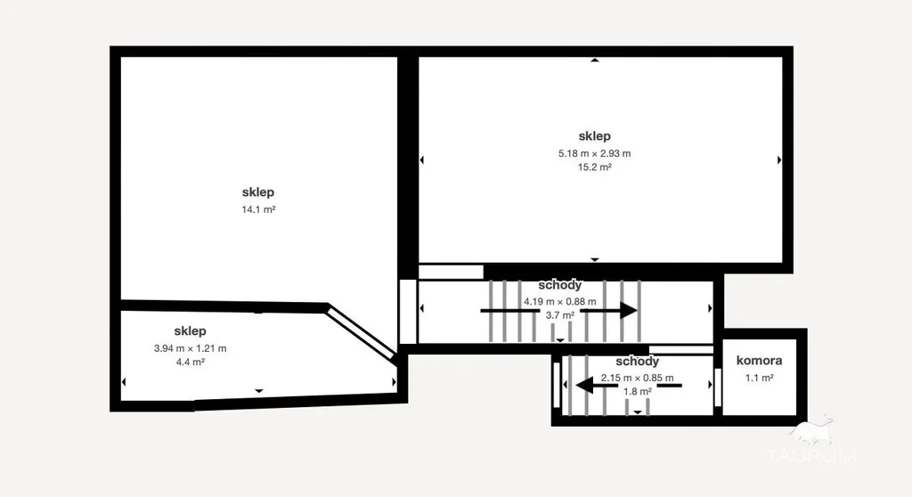
Plocha sklepa: 40 m2
Plocha podkroví: 40 m2

Zahrada okolo domu je porostlá trávou a je kompletně oplocená. Stojí na ní garáž, která byla dostavovaná v pozdějších letech o výměře 39 m2 a dále zde najdeme studnu s užitkovou vodou. Parkovat se dá bez problému na pozemku, kam lze vjet skrze vrata a nebo v Libušínské ulici.

Hledáteli dům, který si rádi zrekonstruujete podle svých představ v místě veškeré občanské vybavenosti a skvělé dostupnosti jak na dálnici, tak do města, ale také do přírody, zavolejte mi, domem Vás ráda provedu.
Pro koupi domu zajistím kompletní realitní a právní servis.
Kontaktujte mě, prosím, pro domluvení prohlídky:
Hana Procházková
TAURUM reality
Uvedené výměry jsou orientační.
PENB nemáme k dispozici, vzhledem ke stavu domu uvádíme třídu G.

Cena
7 990 000 Kč /za nemovitost Spočítat hypotéku
Aktualizováno
6. 2. 2026
Adresa
Koterovská, Plzeň, okres plzeň-město, Plzeň 2-Slovany
ID
250073
Stavba
Cihlová
Stav objektu
Před rekonstrukcí
Vybaveno
Ne
Typ objektu
Přízemní
Druh objektu
Samostatný
Vlastnictví
Osobní
Užitná plocha
80 m2
Zastavěná plocha
62 m2
Podlahová plocha
150 m2
Plocha pozemku
616 m2
Třída energetické náročnosti
G - Mimořádně nehospodárná
Elektřina
230V
Plyn
Plynovod
Odpad
Veřejná kanalizace
Topení
Ústřední elektrické, Jiné
Doprava
Vlak, Silnice, MHD
Voda
Vodovod
Garáž
Sklep
Terasa
Výtah

Máte zájem o tuto nemovitost?

Tímto, v souladu s nařízením Evropského parlamentu a Rady (EU) 2016/679, v platném znění, prohlašuji, že mi je alespoň 16 let a uděluji tak svůj souhlas se zpracováním zadaných údajů (jméno, telefon, e-mail, ip adresa) společnosti B3 Technology, s.r.o., IČ: 07330600, se sídlem Novostavby 126/23, 435 11 Lom (správce dat), za účelem předání dotazu z tohoto formuláře Vámi vybranému inzerentovi a zpětného kontaktování mé osoby. Osobní údaje bude správce zpracovávat manuálně i automaticky přímo prostřednictvím svých zaměstnanců. Informace předané tímto formulářem budou uloženy v databázi správce maximálně po dobu 10 let. Odvolání souhlasu s uložením a zpracováním poskytnutých dat lze e-mailem na info@realitymat.cz. V případě podezření na neoprávněné použití Vámi poskytnutých údajů máte právo předat podnět k šetření Úřadu pro ochranu osobních údajů. Více informací
Chystáte se prodat nemovitost?
Pomůžeme Vám!

Kontakt

Bc. Hana Procházková

Bc. Hana Procházková

Přihlášení k odběru

Nenechte si ujít nejnovější nabídky prodeje rodinných domů v Plzni.

Podobné nabídky