Prodej bytu 2+kk, Brno, Na pískové cestě, 62 m2 (ID: 2006433)

Na Pískové cestě, Brno, Bohunice


8 948 000 Kč /za nemovitost
HYPOTÉKA od 39 992 Kč /měs.
Regionální dodavatelé v Brně

Popis

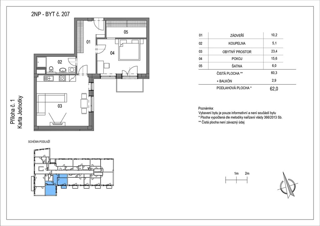
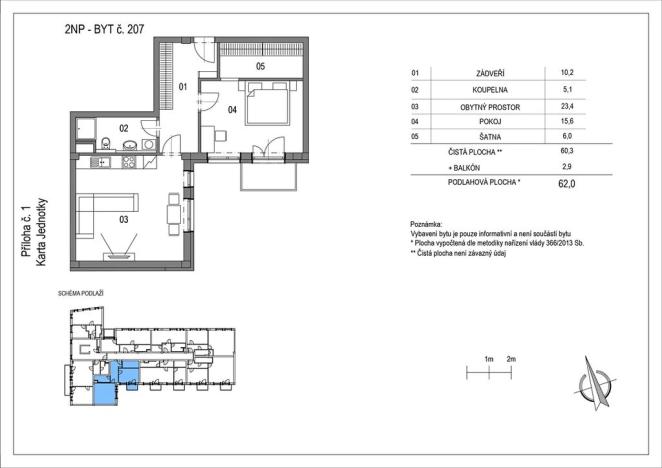
BYT 207
Hledáte pohodlný, moderní a bezstarostný domov?
Byt 207 v projektu EDISON HOUSE je připravený k nastěhování.
Promyšlená dispozice bytu s dostatkem úložných prostor.
Obě hlavní místnosti orientované do klidného dvora, to je správná kombinace živé lokality ve městě s poklidným domácím prostředím. Představte si letní ráno, kdy po probuzení jdete pozdravit sluníčko na balkon ložnice!
V ceně bytu máte kompletní Loxone Smart Home systém:
– chytrá ventilace udržuje ideální kvalitu vzduchu a sama větrá, jak je potřeba
- automatické osvětlení reaguje na denní dobu
- stínění sledující na polohu slunce
- chytré řízení teploty, které vám ohřeje byt, když jste na cestě domů
- chytrá světla nastavují světelné nálady tak, abyste dobře viděli a večer snáze usínali
Starat se o vás bude spousta dalších funkcí. Tak vypadá domov, který šetří čas i energii a přizpůsobí se Vám pro pohodlný život.
Edison House je celý postavený ve standardu PENB A: mimořádně úsporná budova.
Stojí v Bohunicích – lokalitě, která kombinuje pohodlí, dostupnost i jistotu dlouhodobé hodnoty. Ideální pro vlastní bydlení i chytrou investici.
Dům je nově dostavěný a zbývá zde posledních pár bytů.
Poptávka po chytrém bydlení stoupá. Koupí bytu v Edisonu kupujete byt, o který bude i do budoucna vysoký zájem a lépe si bude držet svoji cenu. Má ale jednu nevýhodu: chytré byty rychle mizí.
Tak co, budete čekat, až vám byt někdo vyfoukne

Cena
8 948 000 Kč /za nemovitost Spočítat hypotéku
Aktualizováno
17. 11. 2025
Adresa
Na Pískové cestě, Brno, Bohunice
ID
11202504
Stavba
Cihlová
Stav objektu
Novostavba
Patro
2.
Vlastnictví
Osobní
Užitná plocha
62 m2
Balkon

Máte zájem o tuto nemovitost?

Tímto, v souladu s nařízením Evropského parlamentu a Rady (EU) 2016/679, v platném znění, prohlašuji, že mi je alespoň 16 let a uděluji tak svůj souhlas se zpracováním zadaných údajů (jméno, telefon, e-mail, ip adresa) společnosti B3 Technology, s.r.o., IČ: 07330600, se sídlem Novostavby 126/23, 435 11 Lom (správce dat), za účelem předání dotazu z tohoto formuláře Vámi vybranému inzerentovi a zpětného kontaktování mé osoby. Osobní údaje bude správce zpracovávat manuálně i automaticky přímo prostřednictvím svých zaměstnanců. Informace předané tímto formulářem budou uloženy v databázi správce maximálně po dobu 10 let. Odvolání souhlasu s uložením a zpracováním poskytnutých dat lze e-mailem na info@realitymat.cz. V případě podezření na neoprávněné použití Vámi poskytnutých údajů máte právo předat podnět k šetření Úřadu pro ochranu osobních údajů. Více informací
Chystáte se prodat nemovitost?
Pomůžeme Vám!

Kontakt

Jan Veselý

Jan Veselý

Přihlášení k odběru

Nenechte si ujít nejnovější nabídky prodeje bytů 2+kk v Brně.

Podobné nabídky