Prodej bytu 2+kk, Brno, Na pískové cestě, 47 m2

Na Pískové cestě, Brno, Bohunice


6 959 000 Kč /za nemovitost
HYPOTÉKA od 31 103 Kč /měs.
Regionální dodavatelé v Brně

Popis

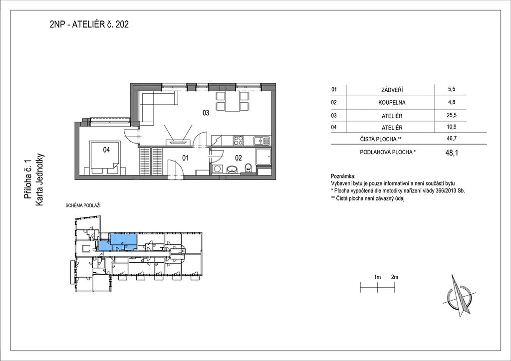
ATELIÉR 202 v novém EDISON HOUSE

Hledáte klidné a moderní bydlení, které vás bude hýčkat?
Ateliér 202 v Edison House nabízí 48,1 m² prakticky navrženého prostoru, kde se každý metr využívá naplno.

V ceně ateliéru máte kompletní Loxone Smart Home systém:

- chytrá ventilace udržuje ideální kvalitu vzduchu
- automatické osvětlení reaguje na denní dobu
- stínění sledující polohu slunce
- chytré řízení teploty, které vám ohřeje byt, než dorazíte
- chytrý ventil, který vypne přívod vody, když vyteče pračka.

A starat se o vás bude spousta dalších funkcí Domov, které šetří čas i energii a přizpůsobí se Vám pro pohodlný život.

Edison House je celý postavený ve standardu PENB A: mimořádně úsporná budova.

Má nízké provozní náklady a stabilní hodnotu do budoucna
Stojí v Bohunicích – lokalitě, která kombinuje pohodlí, dostupnost i jistotu dlouhodobé hodnoty. Ideální pro vlastní bydlení i chytrou investici. Dům už je dostavěný a zbývá pár posledních jednotek.
Poptávka po chytrém bydlení stoupá. Koupí bytu v Edisonu kupujete byt, o který bude i do budoucna vysoký zájem a lépe si bude držet svoji cenu.

Má ale jednu nevýhodu: chytré byty rychle mizí.
Tohle je náš poslední byt s cenou pod 7 MKč.
Ozvěte se, než budou všechny prodané!

Cena
6 959 000 Kč /za nemovitost Spočítat hypotéku
Aktualizováno
14. 2. 2026
Adresa
Na Pískové cestě, Brno, Bohunice
ID
11202501
Stavba
Cihlová
Stav objektu
Novostavba
Patro
2. z 4
Vybaveno
Ne
Vlastnictví
Osobní
Užitná plocha
47 m2
Třída energetické náročnosti
A - Mimořádně úsporná
Ukazatel energetické náročnosti
58 kWh/m2 za rok
Výtah
Bezbarierový přístup

Máte zájem o tuto nemovitost?

Tímto, v souladu s nařízením Evropského parlamentu a Rady (EU) 2016/679, v platném znění, prohlašuji, že mi je alespoň 16 let a uděluji tak svůj souhlas se zpracováním zadaných údajů (jméno, telefon, e-mail, ip adresa) společnosti B3 Technology, s.r.o., IČ: 07330600, se sídlem Novostavby 126/23, 435 11 Lom (správce dat), za účelem předání dotazu z tohoto formuláře Vámi vybranému inzerentovi a zpětného kontaktování mé osoby. Osobní údaje bude správce zpracovávat manuálně i automaticky přímo prostřednictvím svých zaměstnanců. Informace předané tímto formulářem budou uloženy v databázi správce maximálně po dobu 10 let. Odvolání souhlasu s uložením a zpracováním poskytnutých dat lze e-mailem na info@realitymat.cz. V případě podezření na neoprávněné použití Vámi poskytnutých údajů máte právo předat podnět k šetření Úřadu pro ochranu osobních údajů. Více informací
Chystáte se prodat nemovitost?
Pomůžeme Vám!

Kontakt

Ing. Jan Veselý

Ing. Jan Veselý

Přihlášení k odběru

Nenechte si ujít nejnovější nabídky prodeje bytů 2+kk v Brně.

Podobné nabídky