Remax Monarcha

Prodej rodinného domu, Olomouc, Einsteinova, 288 m2 (ID: 2004102)

Einsteinova, Olomouc, Neředín


19 500 000 Kč /za nemovitost
HYPOTÉKA od 87 153 Kč /měs.
Regionální dodavatelé v Olomouci

Popis

Vážení klienti, představujeme Vám krásný, samostatně stojící rodinný dům 6+1 s dvojgaráží v jedné z nejžádanějších lokalit v Olomouci.

Nacházíme se v městské části Neředín, na ulici Einsteinova. Jedná se o klidné místo v okrajové části s řídkou zástavbou rodinných domů nedaleko přírody i napojení na městský obchvat a dálnici. V dosahu je zastávka MHD, škola a školka, Fakultní nemocnice i obchodní centra.

Předmětem prodeje je dvoupodlažní objekt s atypickým půdorysem a nestandardně řešeným dispozičním uspořádáním. Jedná se o zděný dům rodinného sídla postaveného v r. 2000, které je ve velmi dobrém, udržovaném technickém stavu. Nemovitost se nachází na pozemku o výměře 839 m2.

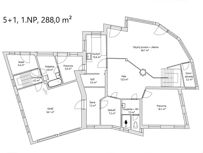
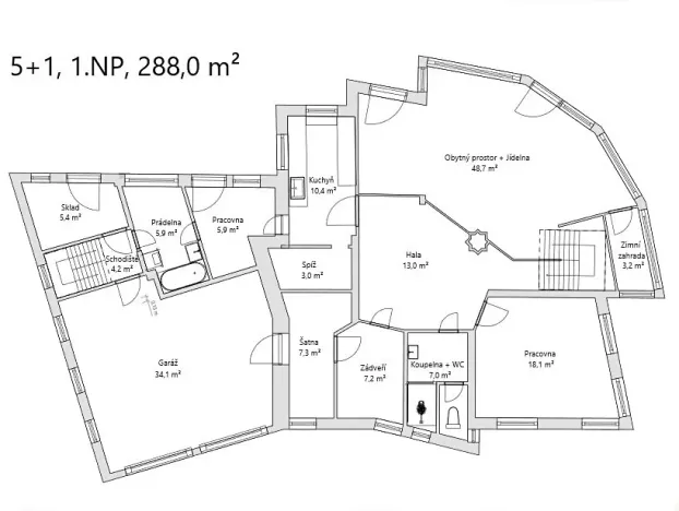
Přízemí domu nabízí zádveří se vstupem do praktické šatny, které je průchozí do velké garáže pro dva osobní automobily a motorku. Dále zde dispozice nabízí vstupní prosklenou halu, velkou rohovou pracovnu, oddělenou toaletu, koupelnu a hlavní obytný prostor. Ten má výměru 49 m2 a nabízí dostatek místa pro velkou sedací soupravu a jídelní stůl. Výbornou atmosféru zde tvoří prosklená stěna, otevřený strop a zimní zahrada. Dominantou obývacího pokoje je krb a dřevěné masivní schodiště.

V křídle domu se pak dále nachází kuchyně, spíž, prádelna a technická místnost s východem na zahradu a spojovací chodby se vstupem do sklepa a garáže. Suterén tvoří 3 místnosti a nádrž pro ryby.

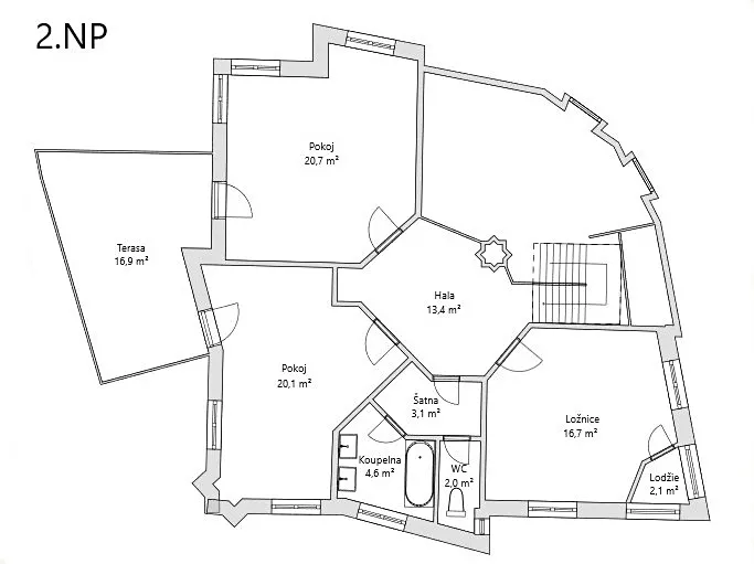
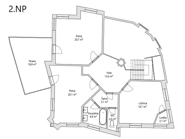
Druhé nadzemní podlaží tvoří oddělená toaleta, koupelna, 3 prostorné ložnice s výstupem na balkón nebo terasu o výměře 17 m2 s výhledem do zahrady.

Nemovitost se nachází na výborně situovaném pozemku, které nabízí mimo naprosté soukromí také vzrostlou zahradu a krytý bazén.

Dům je pro klienty, kteří hledají krásné a velmi prostorné bydlení na jedné z nejlepší adres v Olomouci.

Více informací u realitního makléře Petra Hanáka.

Cena
19 500 000 Kč /za nemovitost Spočítat hypotéku
Aktualizováno
4. 12. 2025
Adresa
Einsteinova, Olomouc, Neředín
ID
00095
Stavba
Cihlová
Stav objektu
Velmi dobrý
Druh objektu
Samostatný
Lokalita objektu
Klidná část obce
Užitná plocha
288 m2
Zastavěná plocha
215 m2
Plocha pozemku
839 m2
Plocha zahrady
624 m2
Třída energetické náročnosti
D - Méně úsporná
Ukazatel energetické náročnosti
139 kWh/m2 za rok
Garáž
Bazén

Máte zájem o tuto nemovitost?

Tímto, v souladu s nařízením Evropského parlamentu a Rady (EU) 2016/679, v platném znění, prohlašuji, že mi je alespoň 16 let a uděluji tak svůj souhlas se zpracováním zadaných údajů (jméno, telefon, e-mail, ip adresa) společnosti B3 Technology, s.r.o., IČ: 07330600, se sídlem Novostavby 126/23, 435 11 Lom (správce dat), za účelem předání dotazu z tohoto formuláře Vámi vybranému inzerentovi a zpětného kontaktování mé osoby. Osobní údaje bude správce zpracovávat manuálně i automaticky přímo prostřednictvím svých zaměstnanců. Informace předané tímto formulářem budou uloženy v databázi správce maximálně po dobu 10 let. Odvolání souhlasu s uložením a zpracováním poskytnutých dat lze e-mailem na info@realitymat.cz. V případě podezření na neoprávněné použití Vámi poskytnutých údajů máte právo předat podnět k šetření Úřadu pro ochranu osobních údajů. Více informací
Chystáte se prodat nemovitost?
Pomůžeme Vám!

Kontakt

Petr Hanák

Petr Hanák

Přihlášení k odběru

Nenechte si ujít nejnovější nabídky prodeje rodinných domů v Olomouci.

Podobné nabídky