Prodej bytu 2+kk, Kunčice nad Labem, 79 m2

Kunčice nad Labem


5 790 000 Kč /za nemovitost
HYPOTÉKA od 25 878 Kč /měs.
Regionální dodavatelé v Kunčicích nad Labem

Popis

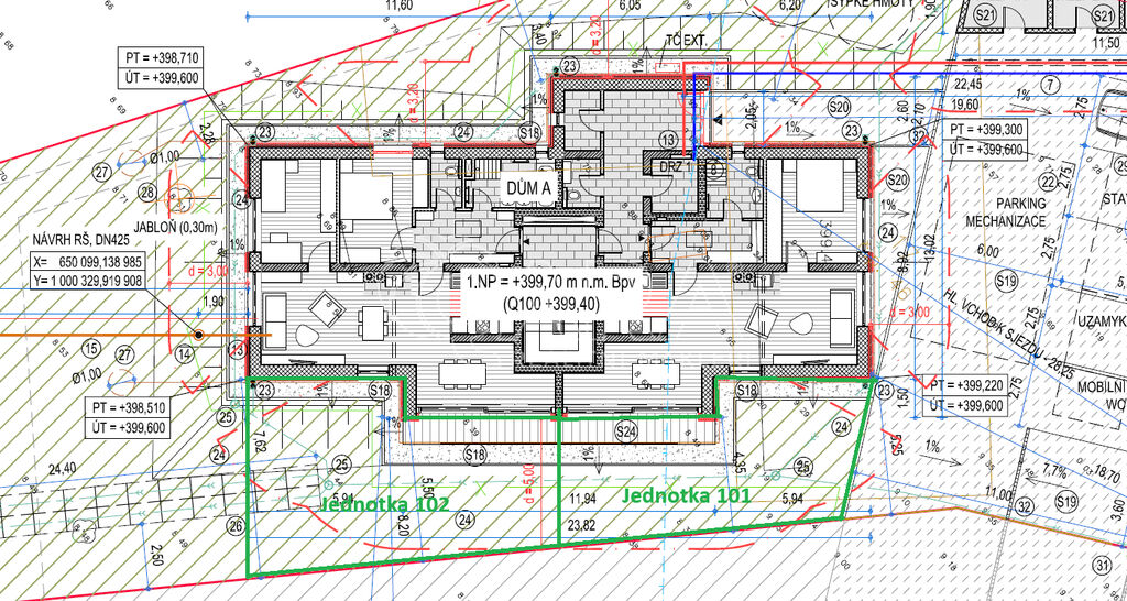
Nabízíme k prodeji moderní a útulný byt 2 + kk 73,8m2 s vlastní terasou a předzahrádkou 56m2 v první etapě novostavby domu v obci Kunčice nad Labem. Nachází se v klidné lokalitě, pouhých 5 minut autem od Vrchlabí, a nabízí jedinečné spojení pohodlí a přírody, s blízkostí lyžařských středisek Herlíkovice a Špindlerův Mlýn, či Černý Důl nebo Janské Lázně v dojezdové vzdálenosti.

Byt o celkové ploše 73,8m² (byt)+ 56m2 (předzahrádka + terasa) se nachází v přízemí domu a poskytuje dostatek prostoru pro každodenní rodinný život. Celý prostor s moderní architekturou a příjemným prosvětlením vytváří ideální prostředí pro rodinné chvíle. V bytě je příprava na kuchyňskou linku.
Pro uložení sportovního či jiného vybavení má byt k dispozici prostorný sklep a parkovací místo pro vůz máte na privátním parkovišti na pozemku před domem.

Jedním z největších benefitů této nemovitosti je další rozsáhlá zahrada, kde děti mohou běhat, hrát si a objevovat přírodu, zatímco rodiče mohou trávit čas a užívat si klid a pohodu. Zahrada je dostatečně prostorná pro pořádání rodinných oslav a setkání s přáteli.
Dům je vytápěn moderním tepleným čerpadlem, které zajišťuje plný komfort během celého roku.

Lokalita nabízí možnosti koupání v Labi, které navazuje přímo na pozemek, což je dokonalá aktivita pro letní dny. A okolí nabízí širokou škálu příležitostí pro výlety a rekreaci v přírodě. Ideální místo pro rodiny hledající bezpečné a přátelské prostředí pro své děti, či vás - sportovně laděné cyklisty, turisty nebo lyžaře.

Součástí ceny bytu je parkovací stání a venkovní sklepní kóje umístěná u parkovacích stání.
Majitel každého bytu získává v ceně bytu podíl 1/8 na pozemku zahrady přiléhající k domu, velikost každého podílu je cca 400m².

V případě zájmu o prohlídku mě neváhejte kontaktovat.

Cena
5 790 000 Kč /za nemovitost Spočítat hypotéku
Aktualizováno
2. 3. 2026
Adresa
Kunčice nad Labem
ID
17873
Stavba
Cihlová
Stav objektu
Novostavba
Patro
1.
Vybaveno
Ne
Lokalita objektu
Klidná část obce
Vlastnictví
Osobní
Užitná plocha
79 m2
Zastavěná plocha
79 m2
Podlahová plocha
79 m2
Plocha zahrady
400 m2
Třída energetické náročnosti
B - Velmi úsporná
Odpad
ČOV pro celý objekt
Doprava
Vlak, Silnice, Autobus
Sklep
Terasa
Bezbarierový přístup
Parkování

Máte zájem o tuto nemovitost?

Tímto, v souladu s nařízením Evropského parlamentu a Rady (EU) 2016/679, v platném znění, prohlašuji, že mi je alespoň 16 let a uděluji tak svůj souhlas se zpracováním zadaných údajů (jméno, telefon, e-mail, ip adresa) společnosti B3 Technology, s.r.o., IČ: 07330600, se sídlem Novostavby 126/23, 435 11 Lom (správce dat), za účelem předání dotazu z tohoto formuláře Vámi vybranému inzerentovi a zpětného kontaktování mé osoby. Osobní údaje bude správce zpracovávat manuálně i automaticky přímo prostřednictvím svých zaměstnanců. Informace předané tímto formulářem budou uloženy v databázi správce maximálně po dobu 10 let. Odvolání souhlasu s uložením a zpracováním poskytnutých dat lze e-mailem na info@realitymat.cz. V případě podezření na neoprávněné použití Vámi poskytnutých údajů máte právo předat podnět k šetření Úřadu pro ochranu osobních údajů. Více informací
Chystáte se prodat nemovitost?
Pomůžeme Vám!

Kontakt

Hana Křemenová

Hana Křemenová

Přihlášení k odběru

Nenechte si ujít nejnovější nabídky prodeje bytů 2+kk v Kunčicích nad Labem.

Podobné nabídky