Prodej pozemku pro bydlení, Poříčí nad Sázavou, Pyšelská, 1002 m2

Pyšelská, Poříčí nad Sázavou


2 505 000 Kč /za nemovitost
HYPOTÉKA od 11 196 Kč /měs.
Regionální dodavatelé v Poříčí nad Sázavou

Popis

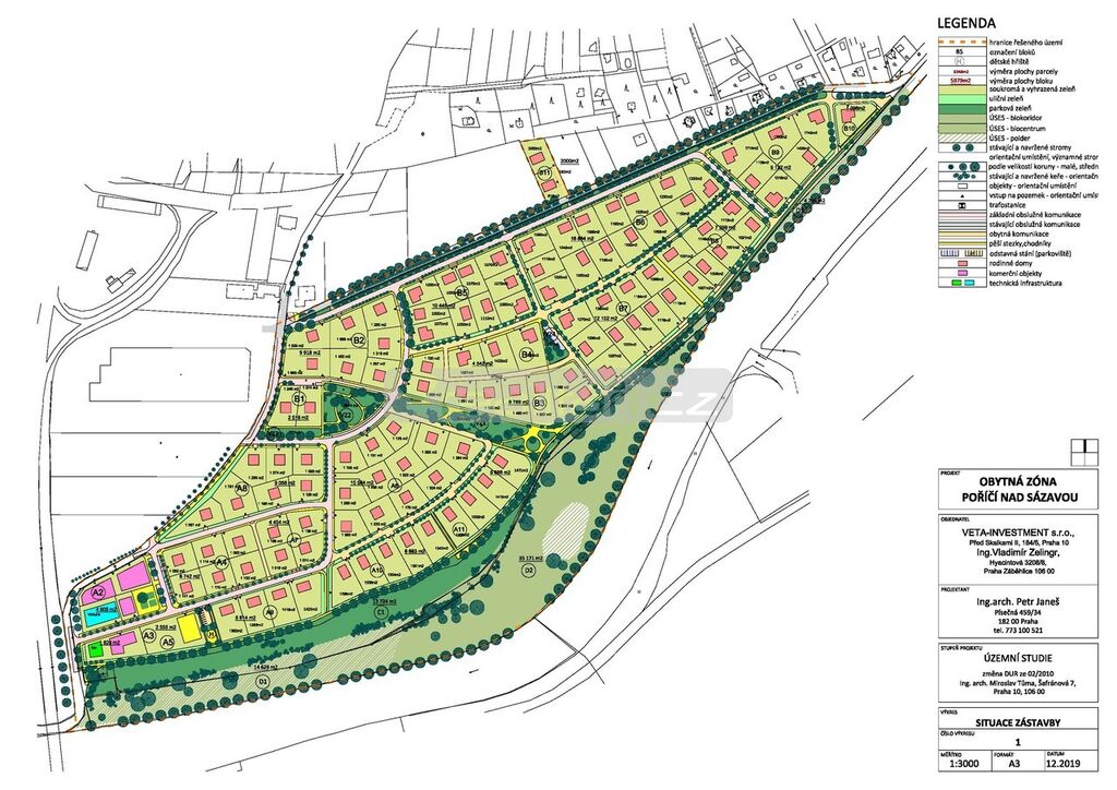
Prodej pozemku pro stavbu RD v Poříčí nad Sázavou. Máme pro vás exkluzivní příležitost – stavební pozemek v atraktivní a klidné lokalitě Poříčí nad Sázavou, která se právě mění v moderní čtvrť rodinných domů.
Pozemková parcela č. 193/56
•Výměra: 1.002 m²
•Cena: 2.505.000,- Kč
V ceně nejsou zahrnuty poplatky za připojení na inženýrské sítě.
V rámci rozvoje lokality je však plánována kompletní infrastruktura – elektřina, voda, plyn, kanalizace, komunikace i veřejná zeleň.
Celé území je dle územního plánu určeno k výstavbě rodinných domů – ideální volba pro ty, kteří hledají klidné a pohodové bydlení v zeleni, přitom s dobrou dostupností do Benešova či Prahy.

Cena
2 505 000 Kč /za nemovitost Spočítat hypotéku
Aktualizováno
29. 10. 2025
Adresa
Pyšelská, Poříčí nad Sázavou
ID
987
Plocha pozemku
1002 m2

Máte zájem o tuto nemovitost?

Tímto, v souladu s nařízením Evropského parlamentu a Rady (EU) 2016/679, v platném znění, prohlašuji, že mi je alespoň 16 let a uděluji tak svůj souhlas se zpracováním zadaných údajů (jméno, telefon, e-mail, ip adresa) společnosti B3 Technology, s.r.o., IČ: 07330600, se sídlem Novostavby 126/23, 435 11 Lom (správce dat), za účelem předání dotazu z tohoto formuláře Vámi vybranému inzerentovi a zpětného kontaktování mé osoby. Osobní údaje bude správce zpracovávat manuálně i automaticky přímo prostřednictvím svých zaměstnanců. Informace předané tímto formulářem budou uloženy v databázi správce maximálně po dobu 10 let. Odvolání souhlasu s uložením a zpracováním poskytnutých dat lze e-mailem na info@realitymat.cz. V případě podezření na neoprávněné použití Vámi poskytnutých údajů máte právo předat podnět k šetření Úřadu pro ochranu osobních údajů. Více informací
Chystáte se prodat nemovitost?
Pomůžeme Vám!

Kontakt

Martina Dlouhá

Martina Dlouhá

Přihlášení k odběru

Nenechte si ujít nejnovější nabídky prodeje pozemků pro bydlení v Poříčí nad Sázavou.

Podobné nabídky