Prodej bytu 3+1, Praha - Lhotka, Novodvorská, 75 m2
Novodvorská, Praha 4
(Cena včetně provize a právního servisu.)
Popis
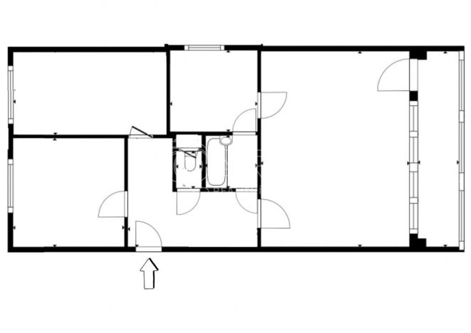
Byt 3+1 o velikosti 75 m² ve 3. patře revitalizovaného panelového domu nabízí velkorysý prostor a naprostou volnost při úpravách.
V bytě nenajdete žádné nosné příčky – všechny jsou z lehké konstrukce. Díky tomu můžete celou dispozici libovolně upravit, ať už chcete propojit kuchyň s obývákem, vytvořit další pokoj nebo zvětšit koupelnu.
Součástí bytu je lodžie o rozloze 6,96 m² přímo u obývacího pokoje a samostatná komora, která se nachází naproti vstupu do bytu – ideální na úložné prostory, sportovní vybavení nebo veškerých věcí, o které nechcete zakopávat v bytě.
Dům prochází postupnou revitalizací – má novou střechu, zateplení, nová okna, výtah a elektroinstalaci.
Lokalita:
Byt se nachází na Praze 4, ul. Novodvorská. Tato lokalita potěší především rodiny s dětmi - v docházkové vzdálenosti je koupaliště Lhotka, mateřská i základní škola, gymnázium, obchody (Albert, Penny) i zastávky MHD.
Další informace:
- Družstvo má naspořeno cca 820.000 Kč.
- Převod do OV se zatím neuvažuje, možnost financovat úvěrem pouze se zástavou jiné nemovitosti.
- Byt je ihned k dispozici, vyklizený a připravený na Vaší rekonstrukci.
Více informací naleznete ve videu a webové stránce nemovitosti.
Máte zájem o tuto nemovitost?

Šafaříkova 201/17, Praha
Pomůžeme Vám!
Pomůžeme Vám!
Kontakt

Miroslav Unger
Přihlášení k odběru
Nenechte si ujít nejnovější nabídky prodeje bytů 3+1 v Praze 4.
Tipy Realitymatu

Prodej bytu 3+1, Praha - Lhotka, Novodvorská, 75 m2
7 250 000 Kč

Prodej bytu 3+1, Praha, Vokrojova, 76 m2
7 700 000 Kč
Podobné nabídky

Prodej bytu 3+1, Praha - Háje, Plickova, 78 m2
7 890 000 Kč

Prodej bytu 3+1, Praha - Hodkovičky, Stavbařů, 84 m2
9 900 000 Kč

Prodej bytu 3+1, Praha - Modřany, Pertoldova, 77 m2
7 890 000 Kč

Prodej bytu 3+1, Praha - Záběhlice, 52 m2
6 999 475 Kč