Prodej chaty, Lešany, 45 m2 (ID: 1951999)
Lešany, Břežany
Popis
Toužíte po místě, kde načerpáte energii, obklopeni přírodou a přitom s výbornou dostupností do Prahy?
Pak pro vás máme ideální nabídku zděná chata 2+kk o užitné ploše 45 m, nacházející se v klidné lokalitě Břežany u Lešan.
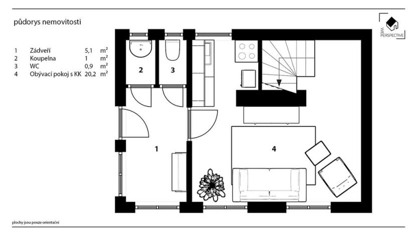
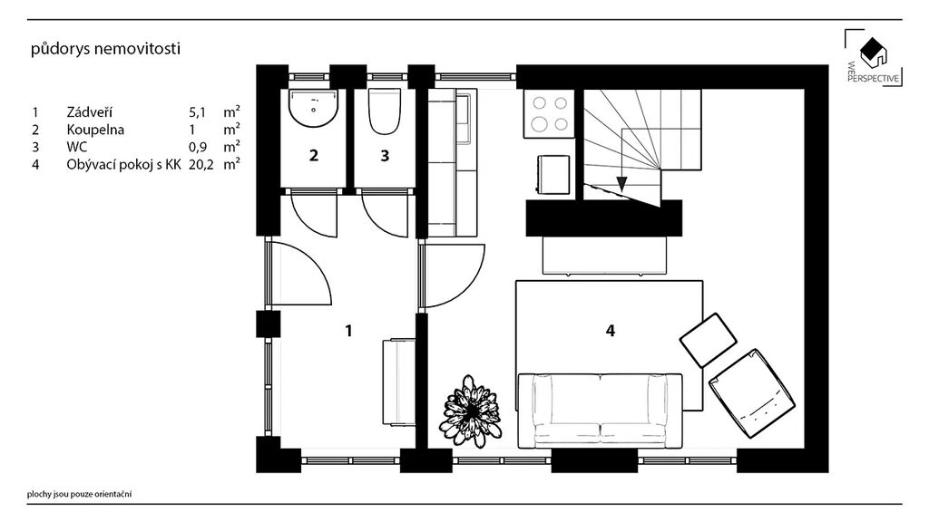
Chata má zcela novou koupelnu vybavenou sprchovým koutem, WC a umyvadlem, což výrazně zvyšuje komfort jejího využívání a dává možnost pohodlného pobytu během celého roku.
Pozemek o rozloze 967 m nabízí dostatek prostoru pro zahradničení, relaxaci i rodinné aktivity. Vzrostlá zeleň a malebná přírodní scenérie vytvářejí harmonické prostředí pro odpočinek po celý rok.
Součástí areálu je také samostatný domek pro hosty, který může sloužit jako ubytování pro návštěvy, dílna, ateliér nebo klidné pracovní zázemí.
Chata je vybavena elektrickými přímotopy a bojlerem, takže nabízí plnohodnotné a komfortní využití i v chladnějších měsících.
Lokalita patří mezi vyhledávané oblasti jen pár kroků od řeky Sázavy, která láká k procházkám, cyklistice, rybaření i vodním sportům.
Výhody pozemku dle schváleného územního plánu (plocha rekreace R):
Možnost 2 nadzemních podlaží + obytné podkroví
Celkem lze vytvořit až 240 m podlahové plochy
Maximální výška stavby 6 m k římsové hraně od terénu
Zastavěnost pozemku max. 20 % (cca 193 m)
Zeleň minimálně 65 % plochy klid a soukromí zajištěno
Doplňkové stavby povoleny např. zahradní domek, dílna, altán nebo objekt pro hosty
Výborná investice vhodné jak pro rekreaci, tak pro budoucí trvalé bydlení
Výborná dostupnost:
Týnec nad Sázavou (3 km) obchody, školy, zdravotnická zařízení
Benešov (13 km) okresní město s kompletní občanskou vybaveností
Dálnice D1 rychlé spojení do Prahy (cca 35 km)
V okolí také autobusová doprava
Neváhejte přijďte se osobně přesvědčit o kouzlu této nemovitosti.
Máte zájem o tuto nemovitost?
Družstevní 1196, Vlašim
Pomůžeme Vám!
Pomůžeme Vám!
Kontakt

Irena Trojanová
Přihlášení k odběru
Nenechte si ujít nejnovější nabídky prodeje chat v Lešanech (okr. Benešov).
Tipy Realitymatu

Prodej rodinného domu, Chrášťany - Černíkovice, 240 m2
11 400 000 Kč

Prodej rodinného domu, Benešov - Mariánovice, 107 m2
9 490 000 Kč
Podobné nabídky

Prodej chaty, Chocerady, 100 m2
3 250 000 Kč

Prodej chaty, Hvězdonice, 35 m2
2 799 000 Kč

Prodej chaty, Slověnice, 70 m2
3 200 000 Kč

Prodej chaty, Chotýšany - Městečko, 75 m2
3 200 000 Kč