Prodej bytu 2+kk, Vrané nad Vltavou, Nádražní, 57 m2
Nádražní, Vrané nad Vltavou
Popis
Dovolujeme si Vám nabídnout zrekonstruovaný byt 2+kk o celkové výměře 58 m2 (byt 57,1 m2, sklep 1,4 m2) v projektu Byty nad Vltavou - 2.etapa (r.2023-2024), ve Vraném nad Vltavou, 4 km od Zbraslavi - Praha 5.
Jedná se o světlý, kompletně zrekonstruovaný byt 2+kk, vybavený moderní kuchyňskou linkou se spotřebiči (elektrická varná deska, elektrická trouba, myčka, mikrovlnná trouba, digestoř). 
Zájemci, kteří si pořídili podobně dispozičně řešené byty v projektu Byty nad Vltavou, oceňují praktické umístění kuchyňské linky do „L“  (v rámci obývacího pokoje), estetické řešení koupelny s velkým sprchovým koutem a samostatné WC.
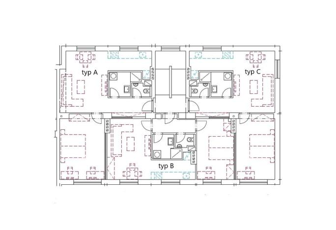
Byt je situován ve 2.nadzemním podlaží (v plánku označen jako typ „A“).
Součástí celkové výměry i uvedené ceny je sklep umístěný v suterénu domu.
Vytápění a ohřev vody je řešeno ústředním vytápěním, a to pomocí nového ekonomického tepelného čerpadla. 
Dům je zateplený, okna jsou plastová s izolačním trojsklem - klasifikační třída energetické náročnosti „C“ (úsporná).
Velkou výhodou je, že díky provedené kompletní rekonstrukci domu je poplatek do fondu oprav velmi nízký - pouze 11 Kč/m2.
Byt je v osobním vlastnictví s možností financování hypotečním úvěrem, vhodný k vlastnímu bydlení (trvalé nebo rekreační využití) nebo jako velmi dobrá investice k pronájmu.
Rádi Vám byt ukážeme osobně - neváhejte nás kontaktovat.
Výborná občanská vybavenost a dopravní dostupnost do Prahy.
V místě se nachází mateřská škola, základní škola, lékárna, dětský i praktický lékař, pošta, obchody, restaurace, vlaková stanice  – vše v pěší vzdálenosti 2-10 minut od domu.
Sportovní a rekreační vyžití - cyklostezka až do Prahy (kolo, in-line brusle), ZOOpark, areál vodních sportů na Vltavě, rybolov, lesy.
Cesta vlakem do centra Prahy trvá cca 30 minut, přičemž vlaková stanice je vzdálena několik málo minut od domu.
Zbraslav a nejbližší okolí (vč. Vraného nad Vltavou), představuje velmi oblíbenou lokalitu s dobrou dostupností Prahy: autem – Praha širší centrum/centrum 15-30 minut, Praha 5 Zbraslav cca 5 minut, případně vlakem – Praha širší centrum/centrum 20-30 minut, kolo – Praha cca širší centrum/centrum 20-40 minut.
Máte zájem o tuto nemovitost?
Rybná 716/24, Praha
Pomůžeme Vám!
Pomůžeme Vám!
Kontakt
 
                        Ing. Lumír Hlůže
Přihlášení k odběru
Nenechte si ujít nejnovější nabídky prodeje bytů 2+kk v Vraném nad Vltavou.
Tipy Realitymatu
 
        Prodej bytu 3+kk, Ptice, Hlavní, 86 m2
11 990 000 Kč
Podobné nabídky
 
        Prodej bytu 2+kk, Roztoky, Jungmannova, 54 m2
7 799 000 Kč
 
        Prodej bytu 2+kk, Horoměřice, T. G. Masaryka, 60 m2
7 090 000 Kč
 
        Prodej bytu 2+kk, Hostivice, Ječná, 54 m2
6 850 000 Kč
 
                                                                                     
                                                                                     
                                                                                     
                                                                                     
                                                                                     
                                                                                     
                                                                                     
                                                                                     
                                                                                     
                                                                                     
                                                                                     
                                                                                     
                                                                                     
                                                                                     
                                                                                     
        