Pronájem výrobních prostor, Lišov, Hůrecká, 2357 m2 (ID: 1890093)

Hůrecká, Lišov


216 000 Kč /za měsíc
Získejte výhodnou HYPOTÉKU

(včetně právního servisu)


Regionální dodavatelé v Lišově

Popis

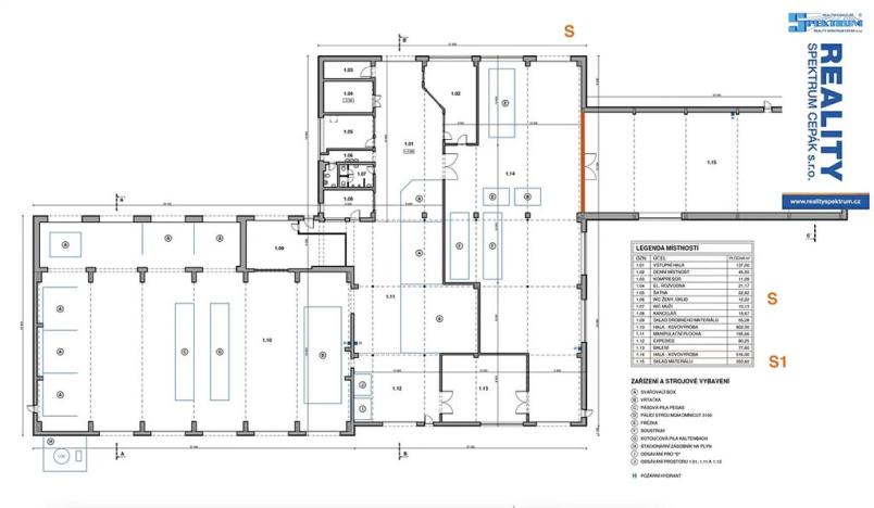
Pronájem moderní provozní budovy vhodné pro výrobu, skladování, opravárenské služby a další v komerčním areálu na okraji města. Budova je rozdělena na čtyři samostatné provozní celky. Celková využitelná výměra budovy je 2.357m2. Součástí budovy jsou kanceláře, denní místnosti pro zaměstnance a sociální zařízení. Samostatný sklad nebezpečných látek a kompresorovna. V hlavní provozní hale o výměře 802m2 je mostový jeřáb s nosností 5t. Hala má 6 samostatných vjezdových i výjezdových vrat. K dispozici jsou i montážní jámy. Provozní výška haly je 7,5m. Ostatní prostory mají provozní výšku 6m. Všechny vjezdová vrata do budovy mají rozměr 4m šířka x 4,5m výška. Budova sloužila dříve jako servis nákladních automobilů. V současné době je využita pro těžkou kovovýrobu. Rozměry jednotlivých částí vč. plánu současného využití viz. fotografie. Celá budova je vytápěná (možnost regulace jednotlivých sekcí). Elektrický příkon 140kW (200A), je možné i navýšení. Vytápění moderními plynovými topidly ROBUR s možností lokálního nastavování. K dispozici jsou velké venkovní manipulační plochy a parkovací plochy pro zaměstnance i návštěvy. Přístup do areálu je 24/7. Areál má stálou ostrahu a vrátnici. Možnost pronájmu dalších prostorů v areálu (administrativa, sklady, manipulační plochy) viz. objekt A a B.

Cena
216 000 Kč /za měsíc
Poznámka k ceně
včetně právního servisu
Aktualizováno
16. 10. 2025
Adresa
Hůrecká, Lišov
ID
953 Lišov S výroba
Stavba
Cihlová
Stav objektu
Velmi dobrý
Lokalita objektu
Okraj obce
Užitná plocha
2357 m2
Třída energetické náročnosti
C - Úsporná
Ukazatel energetické náročnosti
702 kWh/m2 za rok
Elektřina
230V, 400V
Odpad
Veřejná kanalizace
Komunikace
Asfaltová
Telekomunikace
Telefon, Internet
Doprava
Dálnice, Silnice, Autobus
Voda
Vodovod
Topné těleso
Jiné
Zdroj topení
Centrální dálkové
Zdroj teplé vody
Centrální dálkový ohřev
Parkování

Máte zájem o tuto nemovitost?

Tímto, v souladu s nařízením Evropského parlamentu a Rady (EU) 2016/679, v platném znění, prohlašuji, že mi je alespoň 16 let a uděluji tak svůj souhlas se zpracováním zadaných údajů (jméno, telefon, e-mail, ip adresa) společnosti B3 Technology, s.r.o., IČ: 07330600, se sídlem Novostavby 126/23, 435 11 Lom (správce dat), za účelem předání dotazu z tohoto formuláře Vámi vybranému inzerentovi a zpětného kontaktování mé osoby. Osobní údaje bude správce zpracovávat manuálně i automaticky přímo prostřednictvím svých zaměstnanců. Informace předané tímto formulářem budou uloženy v databázi správce maximálně po dobu 10 let. Odvolání souhlasu s uložením a zpracováním poskytnutých dat lze e-mailem na info@realitymat.cz. V případě podezření na neoprávněné použití Vámi poskytnutých údajů máte právo předat podnět k šetření Úřadu pro ochranu osobních údajů. Více informací
Chystáte se prodat nemovitost?
Pomůžeme Vám!

Kontakt

REALITY SPEKTRUM CEPÁK s.r.o.

REALITY SPEKTRUM CEPÁK s.r.o.

Přihlášení k odběru

Nenechte si ujít nejnovější nabídky pronájmu výrobních prostor v Lišově (okr. České Budějovice).

Podobné nabídky