Pronájem výrobních prostor, České Budějovice, 128 m2
České Budějovice 3
(Odměnu realitního zprostředkovatele REALDOMUS hradí nájemce.)
Výkup a prodej starého nábytku
Popis
REALDOMUS Vám ve výhradním zastoupení pronajímatele zprostředkuje pronájem přízemní části multifunkční budovy v komerční zóně v Českých Budějovicích.
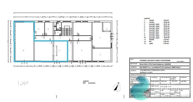
Předmět nájmu nabízí celkovou užitnou plochu 128 m2 a se sestává se ze 4 prostor využitelných jako sklad/dílna/administrativní zázemí (128 m2). Kromě vstupu pro personál disponuje objekt samostatným vstupem, který umožňují zásobování paletovou manipulací.
Potřeba sociální zařízení může být řešena instalací sanitárního kontejneru.
K předmětu nájmu je možné přidružit i rozsáhlejší zpevněné plochy pro skladování, manipulaci a parkování osobních i nákladních vozidel.
Objekt, ve kterém se nachází předmět nájmu je součástí uzavřeného komerčního areálu, který disponuje kompletní kapacitní infrastrukturou (dopravní konektivita, elektřina, plyn, voda, kanalizace).
Poloha předmětu nájmu umožňuje výborné napojení na dálnici D3 a budoucí severní spojku ČB, jejíž výstavba byla již zahájena.
Bližší informace o předmětu nájmu Vám poskytne REALDOMUS.
Máte zájem o tuto nemovitost?
 
                                Radniční 133/1, České Budějovice
Pomůžeme Vám!
Pomůžeme Vám!
Kontakt
 
                        Mgr. Petr Wölfl
Přihlášení k odběru
Nenechte si ujít nejnovější nabídky pronájmu výrobních prostor v Českých Budějovicích.
 
                                                                                     
                                                                                     
                                                                                     
                                                                                     
                                                                                     
                                                                                     
                                                                                     
                                                                                     
                                                                                     
         
         
        