Pronájem skladu, Lišov, Hůrecká, 1768 m2 (ID: 1890094)

Hůrecká, Lišov


147 000 Kč /za měsíc
Získejte výhodnou HYPOTÉKU

(včetně právního servisu)


Regionální dodavatelé v Lišově

Popis

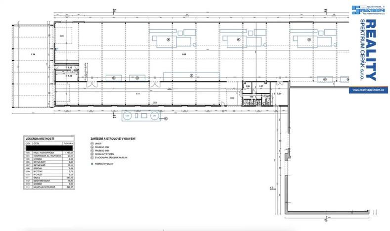
Pronájem vytápěné provozní haly vhodné pro skladování. Celková využitelná výměra budovy je 1.543m2. Součástí budovy je denní místnosti pro zaměstnance a sociální zařízení. Samostatný sklad a kompresorovna. Hlavní provozní hala o výměře 1.167m2 s betonovou podlahou o nosnosti 2.000kg/m2 má rozměry 78m x 15m. Provozní výška 6,5m. Vjezdová vrata do budovy mají rozměr 4,1m šířka x 4,3m výška. V současné době je hala využita pro těžkou kovovýrobu. Rozměry jednotlivých částí vč. plánu současného využití viz. fotografie. Elektrický příkon 420kW (600A), je možné i navýšení. Vytápění moderními plynovými topidly ROBUR s možností lokálního nastavování. K dispozici je krytý nákladový prostor o výměře 225m2 a další venkovní manipulační plochy. Přístup do areálu je 24/7. Areál má stálou ostrahu a vrátnici. Možnost pronájmu dalších prostorů v areálu (administrativa, výroba, manipulační plochy) .

Cena
147 000 Kč /za měsíc
Poznámka k ceně
včetně právního servisu
Aktualizováno
16. 10. 2025
Adresa
Hůrecká, Lišov
ID
954 Lišov B sklad
Stavba
Cihlová
Stav objektu
Velmi dobrý
Lokalita objektu
Okraj obce
Užitná plocha
1768 m2
Třída energetické náročnosti
G - Mimořádně nehospodárná
Elektřina
230V, 400V
Odpad
Veřejná kanalizace
Komunikace
Asfaltová
Telekomunikace
Telefon, Internet
Doprava
Dálnice, Silnice, Autobus
Voda
Vodovod
Topné těleso
Jiné
Zdroj topení
Centrální dálkové
Zdroj teplé vody
Centrální dálkový ohřev
Parkování

Máte zájem o tuto nemovitost?

Tímto, v souladu s nařízením Evropského parlamentu a Rady (EU) 2016/679, v platném znění, prohlašuji, že mi je alespoň 16 let a uděluji tak svůj souhlas se zpracováním zadaných údajů (jméno, telefon, e-mail, ip adresa) společnosti B3 Technology, s.r.o., IČ: 07330600, se sídlem Novostavby 126/23, 435 11 Lom (správce dat), za účelem předání dotazu z tohoto formuláře Vámi vybranému inzerentovi a zpětného kontaktování mé osoby. Osobní údaje bude správce zpracovávat manuálně i automaticky přímo prostřednictvím svých zaměstnanců. Informace předané tímto formulářem budou uloženy v databázi správce maximálně po dobu 10 let. Odvolání souhlasu s uložením a zpracováním poskytnutých dat lze e-mailem na info@realitymat.cz. V případě podezření na neoprávněné použití Vámi poskytnutých údajů máte právo předat podnět k šetření Úřadu pro ochranu osobních údajů. Více informací
Chystáte se prodat nemovitost?
Pomůžeme Vám!

Kontakt

REALITY SPEKTRUM CEPÁK s.r.o.

REALITY SPEKTRUM CEPÁK s.r.o.

Přihlášení k odběru

Nenechte si ujít nejnovější nabídky pronájmu skladů v Lišově (okr. České Budějovice).

Podobné nabídky