Prodej chalupy, Josefův Důl, 176 m2
Josefův Důl
(Včetně všech poplatků RK)
Popis
Nabízíme k prodeji dům na krásném pozemku v obci Josefův Důl, okres Jablonec nad Nisou. Podél pozemku teče zregulovaný potok Jedlová, kde žijí pstruzi.
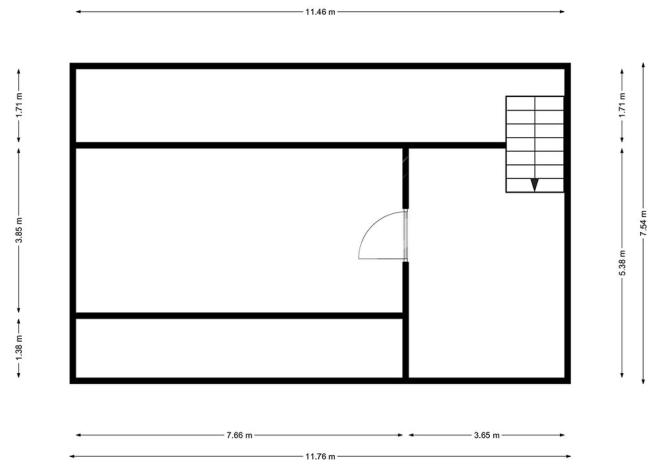
Dům nabízí dispozici 3+kk a má nové rozvody vody a elektřiny. Vytápí se přímotopy a čekají ho další úpravy. Přízemí zahrnuje dva pokoje, jeden s kuchyňským koutem a krbovými kamny, koupelnu a kůlnu, která může sloužit jako dílna. V patře se nachází velký pokoj s možností rozšíření.
Okolní příroda poskytuje široké možnosti trávení volného času, přímo v obci se nacházejí dva vleky a poblíž je zastávka skibusu. Vlaková zastávka je vzdálena pouhých 100 m od domu, přičemž největší lyžařský areál v Jizerských horách, Tanvaldský Špičák, je jen dvě stanice vlakem. Pro milovníky běžek je k dispozici celkem 90 km tratí, a v létě jsou zde ideální podmínky pro cykloturistiku a vycházky po značených trasách.
Nemovitost je v osobním vlastnictví a lze ji tedy financovat hypotečním úvěrem, který vám zdarma pomůžeme vyřídit za nejvýhodnějších podmínek na trhu.
PENB nebyl dodán, proto uvádíme třídu G.
Přijeďte se podívat, rádi vám vše ukážeme!
Máte zájem o tuto nemovitost?
 
                                U Hranic 3221/18, Praha
Pomůžeme Vám!
Pomůžeme Vám!
Kontakt
 
                        PhDr. Lenka Soukupová
Přihlášení k odběru
Nenechte si ujít nejnovější nabídky prodeje chalup v Josefově Dole (okr. Jablonec nad Nisou).
Tipy Realitymatu
 
        Prodej rodinného domu, Plavy - Haratice, 362 m2
4 800 000 Kč
 
        Prodej rodinného domu, Josefův Důl - Dolní Maxov, 230 m2
10 999 000 Kč
Podobné nabídky
 
        Prodej chalupy, Josefův Důl - Antonínov, 150 m2
3 890 000 Kč
 
        Prodej chalupy, Josefův Důl - Antonínov, 145 m2
5 500 000 Kč
 
        Prodej chalupy, Josefův Důl, 165 m2
6 290 000 Kč
 
        Prodej chalupy, Josefův Důl - Antonínov, 305 m2
5 849 000 Kč
 
                                                                                     
                                                                                     
                                                                                     
                                                                                     
                                                                                     
                                                                                     
                                                                                     
                                             
                                            