Prodej chalupy, Nová Ves nad Nisou, 192 m2

Nová Ves nad Nisou


6 490 000 Kč /za nemovitost
HYPOTÉKA od 29 006 Kč /měs.

(včetně poplatků, včetně provize, včetně právního servisu)


Regionální dodavatelé v Nové Vsi nad Nisou

Rekonstrukce

Úklidové služby

Popis

Ve výhradním zastoupení majitele prodáváme rodinný dům / chalupu na "samotě u lesa" s garáží na okraji obce Nová Ves nad Nisou. Dům byl postaven v roce 1992 a kolaudován v roce 2008, je smíšené konstrukce (kámen, beton, cihla). Střecha je z hliníkových plechů. Dům má dispozici 5+1 + garáž + 2 šatny + další 3 sklepní prostory, podlahová plocha je cca 192 m2. Okna jsou dřevěná s jednosklem dvojitá. Podlahy kombinované, dva komíny. Chalupa je vzdálena 13 min. (9 km) od Ski areálu Tanvaldský špičák.

1. NP - obývací pokoj s krbovými kamny, kuchyň, koupelna, wc, chodba, šatna (lyžárna), komora, garáž,
2. NP - 3 pokoje, šatna,
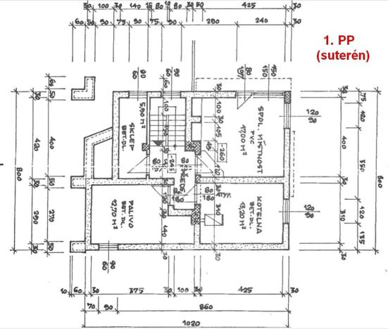
1. PP - ložnice s krbem, technická místnost s bojlerem (možno zde mít např. hernu s ping-pongovým stolem), místnost na zahradní náčiní (nebo letní kuchyň v budoucnu), další úložný prostor.

Zeď mezi kuchyní a obývacím pokojem s krbovými kamny údajně není nosná, čili by mohlo vzniknout propojení nebo jedna velká místnost.

Součástí prodeje jsou tyto pozemky:
- parcela č. 1732/1, 55 m2, zastavěná plocha a nádvoří,
- parcela č. 1734/2, 48 m2, trvalý travní porost,
- parcela č. 1730/2, 68 m2, ostatní komunikace,
- parcela č. 1725/2, 311 m2, ostatní plocha,
- parcela č. 1725/5, 88 m2, zastavěná plocha a nádvoří, jehož součástí je stavba Nová Ves nad Nisou, č.e. 670, rodinná rekreace.

Velký pozemek za domem p. č. 1725/1 (10.388 m2) patří obci Nová Ves nad Nisou.

Dům je opravdu zajímavý, doporučuji prohlídku, na fotografiích nejsou všechny prostory.

Energie: Elektřina v mědi 220 a 380 V, vrtaná studna, jímka cca 3 m3, elektrický bojler 125l, přímotopy v místnostech, v 1. NP podlahové elektrické vytápění (kromě obývacího pokoje s krbovými kamny a garáže) , 2x krb, 3-fázový jistič. Dálkově pomocí aplikace ovládané podlahové topení, TUV i přímotopy.

Hypotéku zajistím.

Cena
6 490 000 Kč /za nemovitost Spočítat hypotéku
Poznámka k ceně
včetně poplatků, včetně provize, včetně právního servisu
Aktualizováno
8. 12. 2025
Adresa
Nová Ves nad Nisou
ID
69458-1
Stavba
Smíšená
Stav objektu
Dobrý
Vybaveno
Částečně
Druh objektu
Samostatný
Lokalita objektu
Samota
Užitná plocha
192 m2
Zastavěná plocha
88 m2
Plocha pozemku
482 m2
Třída energetické náročnosti
G - Mimořádně nehospodárná
Elektřina
230V, 400V
Odpad
Jímka
Komunikace
Asfaltová
Voda
Studna
Topné těleso
Podlahové vytápění, Přímotop, Krb
Zdroj teplé vody
Bojler - elektro
Garáž
Výtah
Parkování

Máte zájem o tuto nemovitost?

Tímto, v souladu s nařízením Evropského parlamentu a Rady (EU) 2016/679, v platném znění, prohlašuji, že mi je alespoň 16 let a uděluji tak svůj souhlas se zpracováním zadaných údajů (jméno, telefon, e-mail, ip adresa) společnosti B3 Technology, s.r.o., IČ: 07330600, se sídlem Novostavby 126/23, 435 11 Lom (správce dat), za účelem předání dotazu z tohoto formuláře Vámi vybranému inzerentovi a zpětného kontaktování mé osoby. Osobní údaje bude správce zpracovávat manuálně i automaticky přímo prostřednictvím svých zaměstnanců. Informace předané tímto formulářem budou uloženy v databázi správce maximálně po dobu 10 let. Odvolání souhlasu s uložením a zpracováním poskytnutých dat lze e-mailem na info@realitymat.cz. V případě podezření na neoprávněné použití Vámi poskytnutých údajů máte právo předat podnět k šetření Úřadu pro ochranu osobních údajů. Více informací
Chystáte se prodat nemovitost?
Pomůžeme Vám!

Kontakt

Petr Michal

Petr Michal

Přihlášení k odběru

Nenechte si ujít nejnovější nabídky prodeje chalup v Nové Vsi nad Nisou.

Podobné nabídky