Prodej rodinného domu, Velké Březno, Litoměřická, 119 m2

Litoměřická, Velké Březno


6 000 000 Kč /za nemovitost
HYPOTÉKA od 26 816 Kč /měs.

(Cena včetně provize RK a právního servisu)


Regionální dodavatelé v Velkém Březnu

Okna a dveře

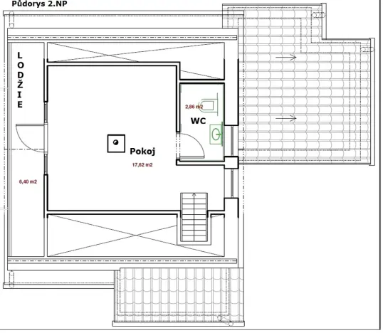
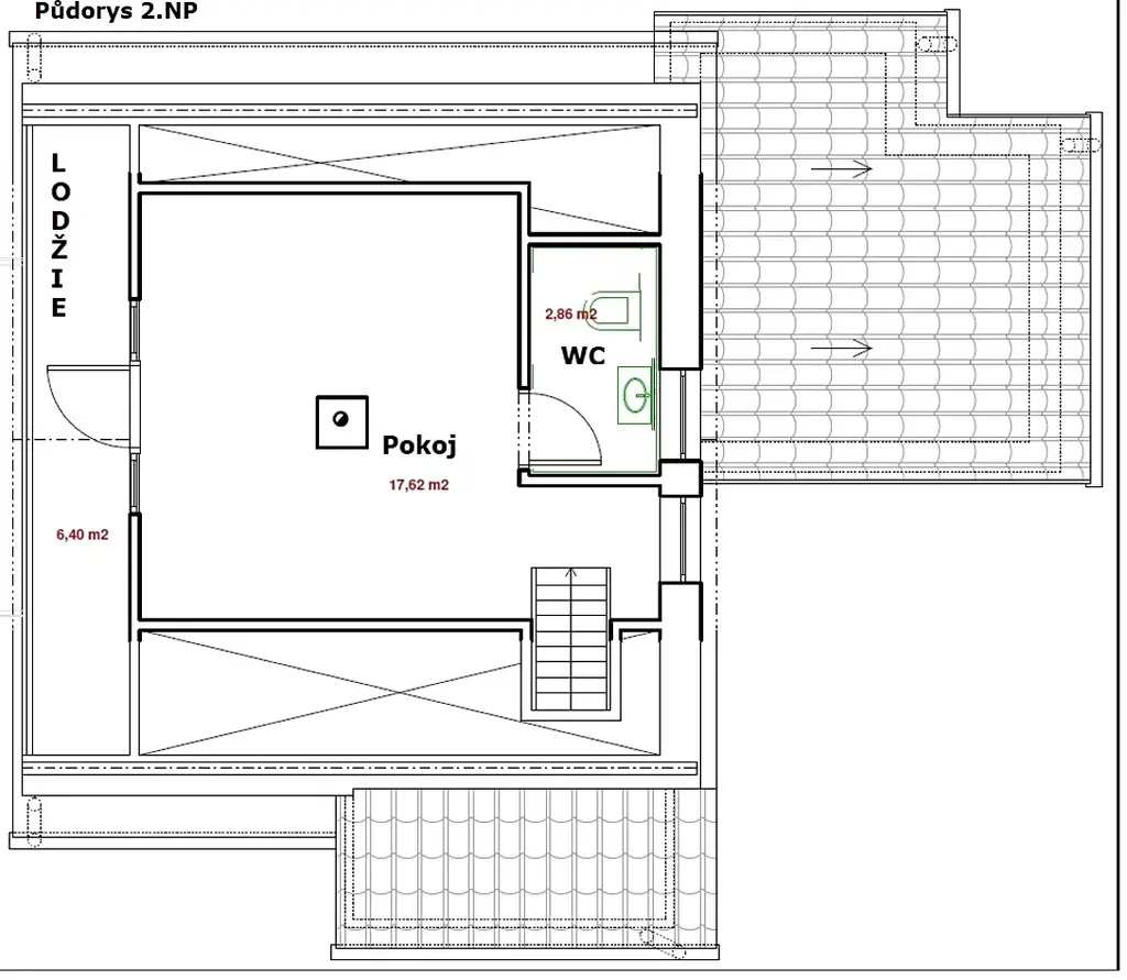
Popis

Dům na bydlení v probíhající rekonstrukci 119 m² Velké Březno – Vítov

Mnozí lidé hledají klid od ruchu města v prostření příměstského bydlení. Ještě vyhledávanější způsob je rekonstrukce vlastní rekreační chaty na plnohodnotné stálé bydlení v přírodním prostředí nejenom o víkendech.
K tomuto kroku přistoupil i prodávající nabízené nemovitosti. Škoda, že z osobních důvodů nemůže sám přestavbu dokončit. Stavba se nachází ve vyhledávané lokalitě Velké Březno – Vítov na konci slepé ulice Litoměřická.
Dům je částečně podsklepen. Před domem je nová odpadní betonová jímka o maximálním objemu 14 m³. Dům je částečně zateplen 5 cm izolační vrstvou. Půdní prostor je zateplen z větší části 20 cm vatou. Kompletní odpadní rozvody jsou připraveny a osazeny v celém objektu včetně sběrače šedé a odpadní vody pro karavany.
Přípravu na dobíjení OA jistě uvítají majitelé elektro automobilů. Záměr se týká i posuvné brány na 150 cm výšky s výplní. Plyn je zaveden a v stavební dokumentaci je počítáno s vytápěním plynovým kotlem. Objednané dřevěné schodiště z kuchyňského prostoru do podkroví je ve výrobě a budou součástí předání v ceně. Kuchyňský prostor je plně zajištěn sítěmi. Přízemní prostory jsou osazený okny s trojsklem HS portal včetně balkonových dveří na budoucí terasu. V obývacím pokoji je komínový vývod pro krbová kamna.
Projekt přístavku koupelny počítá s vchodem z ložnice v přízemí. Zde má být umístěn plynový kotel, sprchový kout, WC, místo pro pračku se sušičkou, sušicí žebříček a umyvadlo. Pro všechna média jsou připraveny přívody i armatury.
V podkrovním prostoru se počítá s ložnicí se vstupem na příjemnou lodžii s výhledem na pstruhový Homolský potok. Součástí podkroví je i WC s umyvadlem.
Vedlejší samostatná stavba o výměře 20 m² včetně elektro přípravy měla být příjemnou saunou a osvěžujícím whirlpoolem.
Pod uzavřením mohou na pozemku parkovat až 3 OA. Jeden parkovací prostor je pod zastřešením. K odpočinku vybízí i zastřešená pergola mezi domem a vedlejší stavbou.
V ceně je již vedle jmenovaného i kompletní projektová dokumentace a bude předáno i Stavební povolení.
Majitel se nabízí jako tvůrce již vybudovaného nebo připraveného díla s poradní i technickou podporou pro dokončení stavby.
Plně doporučujeme prohlídku a těšíme se na vaši návštěvu.

Cena
6 000 000 Kč /za nemovitost Spočítat hypotéku
Poznámka k ceně
Cena včetně provize RK a právního servisu
Aktualizováno
29. 4. 2026
Adresa
Litoměřická, Velké Březno
ID
2026/3009
Stavba
Smíšená
Stav objektu
V rekonstrukci
Vybaveno
Ne
Užitná plocha
119 m2
Plocha pozemku
411 m2
Třída energetické náročnosti
G - Mimořádně nehospodárná
Plyn
Plynovod
Odpad
Septik
Komunikace
Asfaltová
Voda
Vodovod
Sklep
Parkování

Máte zájem o tuto nemovitost?

Tímto, v souladu s nařízením Evropského parlamentu a Rady (EU) 2016/679, v platném znění, prohlašuji, že mi je alespoň 16 let a uděluji tak svůj souhlas se zpracováním zadaných údajů (jméno, telefon, e-mail, ip adresa) společnosti B3 Technology, s.r.o., IČ: 07330600, se sídlem Novostavby 126/23, 435 11 Lom (správce dat), za účelem předání dotazu z tohoto formuláře Vámi vybranému inzerentovi a zpětného kontaktování mé osoby. Osobní údaje bude správce zpracovávat manuálně i automaticky přímo prostřednictvím svých zaměstnanců. Informace předané tímto formulářem budou uloženy v databázi správce maximálně po dobu 10 let. Odvolání souhlasu s uložením a zpracováním poskytnutých dat lze e-mailem na info@realitymat.cz. V případě podezření na neoprávněné použití Vámi poskytnutých údajů máte právo předat podnět k šetření Úřadu pro ochranu osobních údajů. Více informací
Chystáte se prodat nemovitost?
Pomůžeme Vám!

Kontakt

Jan Hrstka

Jan Hrstka

Přihlášení k odběru

Nenechte si ujít nejnovější nabídky prodeje rodinných domů v Velkém Březnu.

Podobné nabídky