Prodej rodinného domu, Ovčáry, 85 m2

Ovčáry


7 899 000 Kč /za nemovitost
HYPOTÉKA od 35 304 Kč /měs.

(Včetně provize a právního servisu.)


Regionální dodavatelé v Ovčárech

Popis

Prodej rodinného dům o celkové ploše 321 m2 v obci Ovčáry u Mělníka, situovaný v klidné části Polabské nížiny s výbornou dopravní dostupností. Mělník je vzdálen 17 km, nájezd na dálnici D8 cca 16 km a stanice metra C Letňany je dostupná přibližně za 25 minut jízdy.
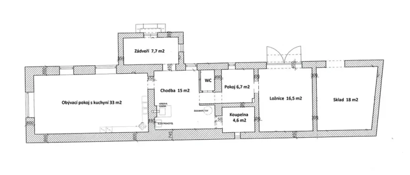
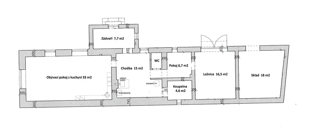
Zděný dům obdélníkového půdorysu je dispozičně řešen jako 3+kk s užitnou plochou 85,5 m². Součástí je také sklad/dřevník o velikosti 18 m². Podkroví o ploše 78 m² nabízí možnost vybudování další obytné části (plánována dispozice 3+kk s příslušenstvím).
Dispozice domu: zádveří (s plánovaným schodištěm do podkroví), chodba, obývací pokoj s kuchyní a jídelnou, ložnice, malý pokoj, koupelna a samostatné WC.
Dům je osazen plastovými okny, novými vchodovými dveřmi a po roce 2021prošel částečnou rekonstrukcí, která mimo jiné zahrnovala vnější inovace, novou koupelnu, kontrolu a opravu střešní krytiny, vybudování ložnice z původního skladu a další.
Dům je napojen na obecní vodovod a kanalizaci. Vytápění je řešeno krbovými kamny s výměníkem a elektrokotlem.
Parkování je možné na vlastním pozemku nebo přímo před domem.
V obci a jejím okolí naleznete základní občanskou vybavenost i široké možnosti rekreace – například jezera Ovčáry, Polabské tůně nebo cyklostezku podél Labe.
Nemovitost je aktuálně pronajímána spolehlivému nájemníkovi, který je s prodejem obeznámen. Nový majitel může v nájemním vztahu plynule pokračovat a získat tak okamžitý výnos z investice.
Pro více informací kontaktujte makléře.

Cena
7 899 000 Kč /za nemovitost Spočítat hypotéku
Poznámka k ceně
Včetně provize a právního servisu.
Aktualizováno
28. 4. 2026
Adresa
Ovčáry
Stavba
Cihlová
Stav objektu
Dobrý
Užitná plocha
85 m2
Plocha pozemku
321 m2
Parkování

Máte zájem o tuto nemovitost?

Tímto, v souladu s nařízením Evropského parlamentu a Rady (EU) 2016/679, v platném znění, prohlašuji, že mi je alespoň 16 let a uděluji tak svůj souhlas se zpracováním zadaných údajů (jméno, telefon, e-mail, ip adresa) společnosti B3 Technology, s.r.o., IČ: 07330600, se sídlem Novostavby 126/23, 435 11 Lom (správce dat), za účelem předání dotazu z tohoto formuláře Vámi vybranému inzerentovi a zpětného kontaktování mé osoby. Osobní údaje bude správce zpracovávat manuálně i automaticky přímo prostřednictvím svých zaměstnanců. Informace předané tímto formulářem budou uloženy v databázi správce maximálně po dobu 10 let. Odvolání souhlasu s uložením a zpracováním poskytnutých dat lze e-mailem na info@realitymat.cz. V případě podezření na neoprávněné použití Vámi poskytnutých údajů máte právo předat podnět k šetření Úřadu pro ochranu osobních údajů. Více informací
Chystáte se prodat nemovitost?
Pomůžeme Vám!

Kontakt

Petr Šubert

Petr Šubert

Přihlášení k odběru

Nenechte si ujít nejnovější nabídky prodeje rodinných domů v Ovčárech (okr. Mělník).

Podobné nabídky