Prodej chaty, Pohledy - Horní Hynčina, 90 m2 (ID: 2146558)

Pohledy, Horní Hynčina


1 200 000 Kč
HYPOTÉKA od 5 363 Kč /měs.

(včetně provize RK)


Regionální dodavatelé v Pohledech

Popis

Ve výhradním zastoupení nabízíme k prodeji stylovou chalupu se třemi samostatnými jednotkami z přelomu 18. a 19. století v atraktivní chalupářské lokalitě Pohledy, cca 60 km severně od Brna.
Samostatně stojící objekt je se smíšeného zdiva (kámen, pálená i nepálená cihla), se sedlovou střechou.

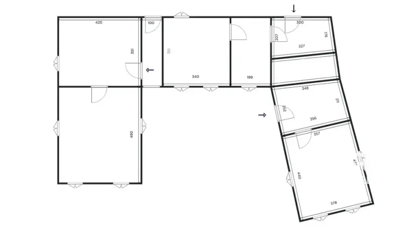
Dispozice:
1. obytná jednotka (2 místnosti ve zvýšeném přízemí)
2. obytná jednotka (2 místnosti s chodbou v prvním patře)
3. obytná jednotka (2 místnosti v přízemí)
Dvůr (43m²)
Půda
Sklepy
Zahrada vedle domu a za domem (celková výměra 721m²)
Stodola

Objekt ve stylu tradiční usedlosti je postaven do tvaru písmene U, s uzavřeným dvorem a nachází se v klidné části obce. Ze vstupní strany je místní komunikace s minimálním provozem, ze zadní části navazuje zahrada už jen na louky a lesy. Každá obytná jednotka má svůj vlastní vchod, dvě ze dvora, třetí v 1. podlaží ze zahrady.
Dům je vhodný ke kompletní rekonstrukci, která již byla započata, např. nové rozvody elektřiny či komíny.
Obecní vodovod, elektřina 220/380V.

Dům, který má svého ducha a historii ve spojení s nádherným okolím nabízí vše pro klidné bydlení či ničím nerušenou rekreaci uprostřed přírody.

Obec Pohledy se rozkládá asi jedenáct kilometrů jihovýchodně od Svitav. Pohledy se dále dělí na dvě části Horní Hynčinu a Pohledy. Z 3,5 km vzdálené Březové nad Svitavou jezdí vlaky do Brna každou hodinu.
Obec Pohledy leží v průměrné výšce 495 metrů nad mořem. První zmínku o obci Pohledy nalezneme v historických pramenech v roce 1365 a Horní Hynčiny v roce 1270. Celková katastrání plocha obce je 1992 ha, z toho orná půda zabírá pouze třicetdevět procent. Asi jedna třetina katastru obce je porostlá lesem. Žije zde 303 obyvatel.

Cena
1 200 000 Kč Spočítat hypotéku
Poznámka k ceně
včetně provize RK
Aktualizováno
24. 4. 2026
Adresa
Pohledy, Horní Hynčina
ID
02621
Stavba
Kamenná
Stav objektu
Před rekonstrukcí
Vybaveno
Ne
Druh objektu
Samostatný
Lokalita objektu
Klidná část obce
Užitná plocha
90 m2
Plocha pozemku
1038 m2
Třída energetické náročnosti
G - Mimořádně nehospodárná

Máte zájem o tuto nemovitost?

Tímto, v souladu s nařízením Evropského parlamentu a Rady (EU) 2016/679, v platném znění, prohlašuji, že mi je alespoň 16 let a uděluji tak svůj souhlas se zpracováním zadaných údajů (jméno, telefon, e-mail, ip adresa) společnosti B3 Technology, s.r.o., IČ: 07330600, se sídlem Novostavby 126/23, 435 11 Lom (správce dat), za účelem předání dotazu z tohoto formuláře Vámi vybranému inzerentovi a zpětného kontaktování mé osoby. Osobní údaje bude správce zpracovávat manuálně i automaticky přímo prostřednictvím svých zaměstnanců. Informace předané tímto formulářem budou uloženy v databázi správce maximálně po dobu 10 let. Odvolání souhlasu s uložením a zpracováním poskytnutých dat lze e-mailem na info@realitymat.cz. V případě podezření na neoprávněné použití Vámi poskytnutých údajů máte právo předat podnět k šetření Úřadu pro ochranu osobních údajů. Více informací
Chystáte se prodat nemovitost?
Pomůžeme Vám!

Kontakt

Josef Jindra

Josef Jindra

Přihlášení k odběru

Nenechte si ujít nejnovější nabídky prodeje chat v Pohledech.

Podobné nabídky