Prodej pozemku pro bydlení, Starý Kolín, 27971 m2 (ID: 2145658)

Starý Kolín


48 725 485 Kč /za nemovitost
HYPOTÉKA od 217 773 Kč /měs.
Regionální dodavatelé v Starém Kolíně

Popis

Hledáte připravený developerský projekt, do kterého můžete rovnou vstoupit? Nabízíme unikátní příležitost v atraktivní lokalitě Středočeského kraje – kompletní rezidenční projekt s platným stavebním povolením, hotovou projektovou dokumentací a vyřešenou infrastrukturou.

Co nabízíme
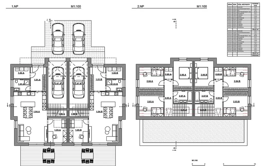
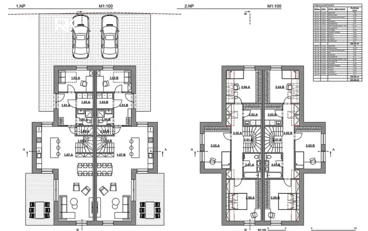
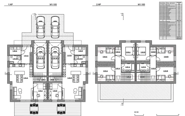
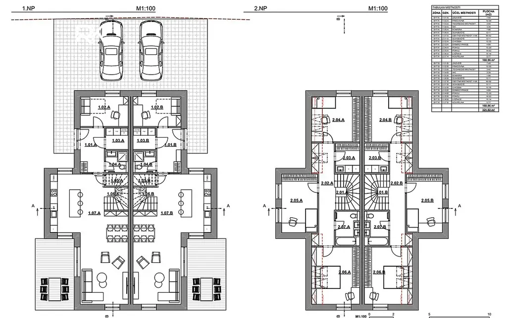
Na severozápadním okraji obce Starý Kolín (okres Kolín) vzniká nová obytná lokalita „Nová Náves" – promyšlený soubor rodinných dvojdomů zasazený do klidného venkovského prostředí s vynikající dostupností.
Projekt zahrnuje více než dva hektary rovinatých pozemků určených územním plánem k zastavění. Navrženo je 14 rodinných domů dvou typů, každý se dvěma samostatnými bytovými jednotkami 5+kk – dohromady téměř třicet moderních bytů pro mladé rodiny. Architektonický návrh od renomovaného ateliéru D+Architekti zajišťuje jednotný, ale rozmanitý charakter zástavby bez monotónního opakování.
Součástí projektu je kompletní řešení technické infrastruktury – kanalizace, vodovod, elektro včetně trafostanice, veřejné osvětlení, optika, komunikace i veřejná zeleň.

Dvě varianty spolupráce
Prodej projektu – Převezmete pozemky s platným stavebním povolením, kompletní projektovou dokumentací a připravenou infrastrukturou. Můžete okamžitě zahájit výstavbu nebo projekt dále rozvíjet podle vlastní strategie.
Realizace na klíč – Nabízíme také možnost kompletní výstavby celého projektu včetně infrastruktury a následného prodeje jednotlivých bytových jednotek. Detailní kalkulace a harmonogram k dispozici při osobním jednání.

Proč právě tento projekt
Vlakový koridor Praha–Pardubice na dosah pěšky. Klidná obec s kompletní občanskou vybaveností jen pár kilometrů od Kolína. Rostoucí poptávka po kvalitním bydlení v zázemí středních Čech. Projekt je architektonicky dotažený, úředně povolený a připravený k realizaci – ušetříte roky příprav.
Vizualizace, studie a podrobné podklady poskytneme při osobní schůzce.

Cena
48 725 485 Kč /za nemovitost Spočítat hypotéku
Aktualizováno
24. 4. 2026
Adresa
Starý Kolín
ID
0527
Lokalita objektu
Klidná část obce
Plocha pozemku
27971 m2
Elektřina
230V
Odpad
Veřejná kanalizace
Komunikace
Dlážděná, Asfaltová
Telekomunikace
Internet, Kabelová televize
Doprava
Vlak, Dálnice, Silnice, MHD, Autobus
Voda
Vodovod

Máte zájem o tuto nemovitost?

Tímto, v souladu s nařízením Evropského parlamentu a Rady (EU) 2016/679, v platném znění, prohlašuji, že mi je alespoň 16 let a uděluji tak svůj souhlas se zpracováním zadaných údajů (jméno, telefon, e-mail, ip adresa) společnosti B3 Technology, s.r.o., IČ: 07330600, se sídlem Novostavby 126/23, 435 11 Lom (správce dat), za účelem předání dotazu z tohoto formuláře Vámi vybranému inzerentovi a zpětného kontaktování mé osoby. Osobní údaje bude správce zpracovávat manuálně i automaticky přímo prostřednictvím svých zaměstnanců. Informace předané tímto formulářem budou uloženy v databázi správce maximálně po dobu 10 let. Odvolání souhlasu s uložením a zpracováním poskytnutých dat lze e-mailem na info@realitymat.cz. V případě podezření na neoprávněné použití Vámi poskytnutých údajů máte právo předat podnět k šetření Úřadu pro ochranu osobních údajů. Více informací
Chystáte se prodat nemovitost?
Pomůžeme Vám!

Kontakt

Roman Kotek

Roman Kotek

Přihlášení k odběru

Nenechte si ujít nejnovější nabídky prodeje pozemků pro bydlení v Starém Kolíně.

Podobné nabídky