Prodej bytu 2+kk, České Budějovice, Rudolfovská tř., 98 m2 (ID: 2143630)

Rudolfovská tř., České Budějovice


6 800 000 Kč /za nemovitost
HYPOTÉKA od 30 392 Kč /měs.

(Včetně právnho servisu)


Regionální dodavatelé v Českých Budějovicích

Výkup a prodej starého nábytku

Popis

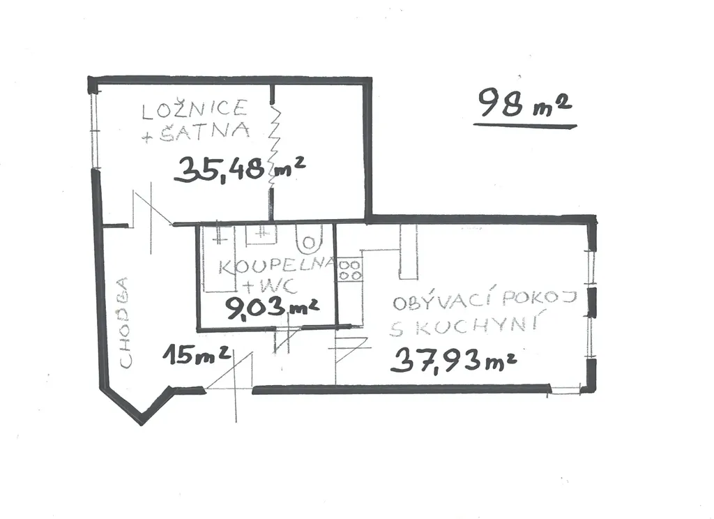
Na prodej velkoprostorový zděný byt na Rudolfovské třídě .Byt je umístěn poblíž křížení ulic Rudolfovská/Na Sadech, České Budějovice, v sousedství městského parku a centrálního náměstí Přemysla Otakara II. Byt je atypický a má dispozici 2+kk (možno 3+kk) a podlahovou plochu 98 m2.Byt se nachází ve 2.patře (3.N.P.) bytového domu o celkem 5 nadzemních podlažích.
‌Byt má dispozici: zádveří+chodba – 15 m2, koupelna s WC - 9,03m2, ložnice+šatna -35.48m2 (možno rozdělit) obývací pokoj s kuchyní- 37.93. K bytu náleží sklepní kóje v 1.N.P. výměře cca 1.5 m2. Do třídy Ruolfovská jsou orientována okna obýv.pokoje.Do vitrobloku je orientováno okno ložnice s balkonovými dveřmi.Balkon je možné dodatečně zřídit (ve fasádě je provedena příprava a v prohlášení vlastníka je balkon též uveden)
Byt má vlastní ústřední topení s plynovým kotlem BAXI a rozvody s radiátory.
Byt byl dokončen v r 2014 a je v provedení : vnitřní dveře dýhované +obložkové zárubně ,povrchy podlah- keram.dlažby+laminátové plovoucí ,okna plastová s izolačními dvojskly , koupelna se samostatně stojící vanou,umyvadlem a závěsným WC ,vybavená kuchyňská linka s vestavěnými spotřebiči,barem a dvěma digestořemi atd .Na chodbě prostorný výtah Schindler.
Dům je zateplen-energetická třída C.
Díky poloze s blízkostí zeleně a zároveň dostupnosti do centra města je tento byt zajímavý pro široké skupiny zájemců.

Cena
6 800 000 Kč /za nemovitost Spočítat hypotéku
Poznámka k ceně
Včetně právnho servisu
Aktualizováno
22. 4. 2026
Adresa
Rudolfovská tř., České Budějovice
Stavba
Cihlová
Stav objektu
Velmi dobrý
Patro
3.
Vlastnictví
Osobní
Užitná plocha
98 m2
Sklep

Máte zájem o tuto nemovitost?

Tímto, v souladu s nařízením Evropského parlamentu a Rady (EU) 2016/679, v platném znění, prohlašuji, že mi je alespoň 16 let a uděluji tak svůj souhlas se zpracováním zadaných údajů (jméno, telefon, e-mail, ip adresa) společnosti B3 Technology, s.r.o., IČ: 07330600, se sídlem Novostavby 126/23, 435 11 Lom (správce dat), za účelem předání dotazu z tohoto formuláře Vámi vybranému inzerentovi a zpětného kontaktování mé osoby. Osobní údaje bude správce zpracovávat manuálně i automaticky přímo prostřednictvím svých zaměstnanců. Informace předané tímto formulářem budou uloženy v databázi správce maximálně po dobu 10 let. Odvolání souhlasu s uložením a zpracováním poskytnutých dat lze e-mailem na info@realitymat.cz. V případě podezření na neoprávněné použití Vámi poskytnutých údajů máte právo předat podnět k šetření Úřadu pro ochranu osobních údajů. Více informací
Chystáte se prodat nemovitost?
Pomůžeme Vám!

Kontakt

ing.Petr Solonek-REAG

ing.Petr Solonek-REAG

Přihlášení k odběru

Nenechte si ujít nejnovější nabídky prodeje bytů 2+kk v Českých Budějovicích.

Podobné nabídky