Prodej rodinného domu, Tuřice, 111 m2 (ID: 2143279)

Tuřice


12 490 000 Kč /za nemovitost
HYPOTÉKA od 55 823 Kč /měs.
Regionální dodavatelé v Tuřici

Popis

Nabízíme Vám ke koupi rodinný dům 4+kk s terasou, garáží a zahradním jezírkem na pozemku o výměře 429 m2 v obci Tuřice.
Jedná se o již zabydlenou dvoupodlažní novostavbu z r. 2019, na konci slepé ulice klidné zástavby rodinných domů.
Nemovitost sestává z rodinného domu o dispozici 4+kk (96 m2) , samostatně stojící garáže s montážní jámou (20 m2), zastřešené terasy (15 m2), přírodního jezírka, zahradního domku a polozapuštěného venkovního bazénu. Bazén i jezírko disponují čistícím a filtračním zařízením. Na první pohled Vás osloví pečlivě udržovaná zahrada kolem domu, citlivě kombinující okrasné a užitkové prvky.
Dům je postaven ze železobetonu s venkovním zateplením. Střešní krytina Bramac, plastová okna. Vytápění domu elektrokotlem a krbovými kamny v obývacím pokoji. Ohřev TUV bojlerem. Výhodou je vlastní vrtaná studna. Dům je napojen na veřejnou kanalizaci. Elektřina 230/400V.

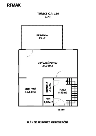
Srdce domu tvoří obývací pokoj v přízemí domu spojený s kuchyní na míru a venkovní zastřešenou terasou. V patře jsou k dispozici tři ložnice a koupelna s vanou. V domě jsou dvě toalety.

Výměry:
1.NP - 48 m2
pergola - 15m2
2.NP - 48 m2
montovaná garáž - 20 m2

Nemovitost je ideální pro rodinné bydlení, díky slepé ulici a klidnému prostředí budou Vaše děti v bezpečí.

Obec Tuřice se nachází v malebném prostředí Středočeského kraje, v okrese Mladá Boleslav, na hranici trojúhelníku Brandýs nad Labem ‒ Benátky nad Jizerou ‒ Lysá nad Labem. Díky blízkosti dálnice D10 je dopravní spojení do Mladé Boleslavi i do Prahy velmi komfortní.

Co v obci najdete:
Obecní úřad, hasičská zbrojnice, malá prodejna smíšeného zboží, hospůdka/restaurace, z-box.

Školy, zdravotnictví a další služby:
Školka a první čtyři ročníky základní školy v obci Předměřice nad Jizerou, jen cca 1 km pěšky/autem. Pro vyšší stupeň základní školy jezdí děti do Benátek nad Jizerou. Zdravotnická péče je zajištěna v Benátkách nad Jizerou.

Okolí a volný čas:
Obec je obklopena přírodou – řeka Jizera nabízí možnosti pro rybaření, vodní turistiku a částečně i koupání. V okolí najdete zajímavé historické objekty jako kostel sv. Jakuba Staršího v Předměřicích, kostel sv. Jana Křtitele ve Skorkově, zámeček Bon Repos v Čihadlech. Dostatek tras pro pěší turistiku a cykloturistiku.

Dopravní dostupnost:
Z Tuřic je snadný přístup na rychlostní komunikaci D10 (Praha – Mladá Boleslav). Autobusové spojení do Benátek nad Jizerou, Mladé Boleslavi i do Prahy.

Koupi nemovitosti lze financovat hypotečním úvěrem, který Vám v případě zájmu vyřídíme na míru.

Pro další informace a sjednání termínu prohlídky volejte.
Prodávající si vyhrazuje právo vybrat kupujícího na základě jím zvolených kritérií.

Cena
12 490 000 Kč /za nemovitost Spočítat hypotéku
Aktualizováno
21. 4. 2026
Adresa
Tuřice
ID
0023-NP08878
Stavba
Cihlová
Stav objektu
Novostavba
Druh objektu
Samostatný
Užitná plocha
111 m2
Zastavěná plocha
57 m2
Podlahová plocha
313 m2
Plocha pozemku
429 m2
Třída energetické náročnosti
C - Úsporná
Ukazatel energetické náročnosti
142 kWh/m2 za rok
Elektřina
230V, 400V
Plyn
Plynovod
Odpad
Veřejná kanalizace
Komunikace
Asfaltová
Telekomunikace
Internet
Doprava
Dálnice, Silnice, MHD, Autobus
Voda
Studna
Topné těleso
Radiátory
Zdroj topení
Elektrokotel, Krbová kamna
Zdroj teplé vody
Bojler - elektro
Garáž
Parkování

Máte zájem o tuto nemovitost?

Tímto, v souladu s nařízením Evropského parlamentu a Rady (EU) 2016/679, v platném znění, prohlašuji, že mi je alespoň 16 let a uděluji tak svůj souhlas se zpracováním zadaných údajů (jméno, telefon, e-mail, ip adresa) společnosti B3 Technology, s.r.o., IČ: 07330600, se sídlem Novostavby 126/23, 435 11 Lom (správce dat), za účelem předání dotazu z tohoto formuláře Vámi vybranému inzerentovi a zpětného kontaktování mé osoby. Osobní údaje bude správce zpracovávat manuálně i automaticky přímo prostřednictvím svých zaměstnanců. Informace předané tímto formulářem budou uloženy v databázi správce maximálně po dobu 10 let. Odvolání souhlasu s uložením a zpracováním poskytnutých dat lze e-mailem na info@realitymat.cz. V případě podezření na neoprávněné použití Vámi poskytnutých údajů máte právo předat podnět k šetření Úřadu pro ochranu osobních údajů. Více informací
Chystáte se prodat nemovitost?
Pomůžeme Vám!

Kontakt

Jan Frank

Jan Frank

Přihlášení k odběru

Nenechte si ujít nejnovější nabídky prodeje rodinných domů v Tuřici.

Podobné nabídky