Prodej bytu 2+kk, Praha - Nusle, 5. května, 62 m2

5. května, Praha 4, Nusle


8 450 000 Kč /za nemovitost
HYPOTÉKA od 37 766 Kč /měs.

(včetně provize a právního servisu)


Regionální dodavatelé v Praze 4

Stěhovací služby

Výkup a prodej starého nábytku

Popis

Ve vyhledávané lokalitě Prahy 4 - Nusle nabízím k prodeji světlý byt 2+kk/B.
Lokalita je s výborným dopravním spojením (v docházkové vzdálenosti 2 minuty chůze se nachází tramvajová zastávka a stanice metra C Pražského povstání), v okolí je dostatek obchodů a za většími nákupy se pohodlnou procházkou dostanete do obchodního centra Arkády Pankrác. Za relaxací a úchvatnou vyhlídkou na Prahu můžete vyrazit na Vyšehrad. Lokalita nabízí vše, co k pohodlnému bydlení potřebujete.
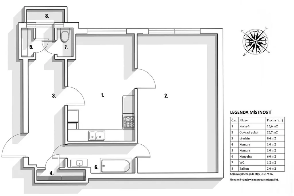
Nabízený byt 2+kk/B je prostorný a světlý, celková plocha bytu je 61,9 m2 + balkon 2 m2, k bytu dále náleží sklepní kóje v suterénu domu 3,5 m2. Byt disponuje vstupní předsíní, pokoje s kuch. koutem, ložnicí, koupelnou, samostatným WC a 2 komorami. Díky svému umístění ve 4.patře domu je byt světlý a je z něj příjemný výhled, za jasného počasí až na Pražský Hrad. Byt je ve velmi dobrém, udržovaném stavu. Na podlaze je položena dlažba, parkety a plovoucí podlaha. Vytápění a ohřev teplé vody zajišťuje samostatný plynový kotel. Byt je vybaven kuch. linkou s varnou deskou, troubou, digestoří, myčkou, pračkou, lednicí s mrazničkou. V bytě je instalován optický kabel na připojení k internetu. Byt je připraven k okamžitému nastěhování, nový vlastník si samozřejmě může byt upravit dle svých potřeb a požadavků.
Dům je ve velmi dobrém udržovaném stavu, okna v celém domě jsou nová plastová, veškeré rozvody v domě jsou nové. K domu náleží zahrada, která je připravena k užívání vlastníkům bytů.
Měsíční náklady na provoz jsou nízké, náklady do fondu oprav a na provoz domu činí 2.235 Kč/měs.
PENB nebyl vypracován, proto se uvádí kategorie G.
Vzhledem ke své dispozici, stavu a poloze je byt ideální volbou pro mladé páry nebo jednotlivce, je také vhodný pro investory hledající investiční byt k pronájmu.
Neváhejte a domluvte si prohlídku tohoto bytu ještě dnes.

Cena
8 450 000 Kč /za nemovitost Spočítat hypotéku
Poznámka k ceně
včetně provize a právního servisu
Aktualizováno
22. 4. 2026
Adresa
5. května, Praha 4, Nusle
ID
104
Stavba
Cihlová
Stav objektu
Velmi dobrý
Patro
5. z 5
Typ objektu
Patrový
Vlastnictví
Osobní
Užitná plocha
62 m2
Podlahová plocha
67 m2
Topení
Ústřední plynové
Doprava
Autobus
Topné těleso
Radiátory
Zdroj topení
Plynový kotel
Zdroj teplé vody
Plynový kotel
Balkon
Sklep
Bezbarierový přístup

Máte zájem o tuto nemovitost?

Tímto, v souladu s nařízením Evropského parlamentu a Rady (EU) 2016/679, v platném znění, prohlašuji, že mi je alespoň 16 let a uděluji tak svůj souhlas se zpracováním zadaných údajů (jméno, telefon, e-mail, ip adresa) společnosti B3 Technology, s.r.o., IČ: 07330600, se sídlem Novostavby 126/23, 435 11 Lom (správce dat), za účelem předání dotazu z tohoto formuláře Vámi vybranému inzerentovi a zpětného kontaktování mé osoby. Osobní údaje bude správce zpracovávat manuálně i automaticky přímo prostřednictvím svých zaměstnanců. Informace předané tímto formulářem budou uloženy v databázi správce maximálně po dobu 10 let. Odvolání souhlasu s uložením a zpracováním poskytnutých dat lze e-mailem na info@realitymat.cz. V případě podezření na neoprávněné použití Vámi poskytnutých údajů máte právo předat podnět k šetření Úřadu pro ochranu osobních údajů. Více informací
Chystáte se prodat nemovitost?
Pomůžeme Vám!

Kontakt

Vanda Vlašánková

Vanda Vlašánková

Přihlášení k odběru

Nenechte si ujít nejnovější nabídky prodeje bytů 2+kk v Praze 4.

Podobné nabídky