Pronájem bytu 1+kk, Praha - Michle, Nuselská, 43 m2

Nuselská, Praha, Michle


17 000 Kč /za měsíc
Získejte výhodnou HYPOTÉKU

(vratná kauce ve výši dvou měsíčních nájmů + provize za zprostředkování ve výši jednoho nájmu + DPH)


Regionální dodavatelé v Praze 4

Stěhovací služby

Výkup a prodej starého nábytku

Popis

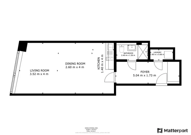
Hledáte moderní designový byt s garážovým stáním ve skvělé lokalitě? Už hledat nemusíte, právě jste takový byt našli! K dlouhodobému pronájmu nabízíme tento krásně řešený byt 1+kk, který se nachází v šestém patře stylového rezidenčního projektu ArtDec. Okna bytu jsou orientována na východ a nabízí krásný výhled do zeleně Tyršova vrchu. Světlý pokoj nabízí spoustu prostoru pro obývací i jídelní část a moderní kuchyňský kout je vybaven zabudovanou lednicí, mikrovlnnou troubou a indukční deskou. V koupelně s toaletou naleznete sprchový kout a jistě vás potěší i praktická komora, která nabídne dodatečné úložné prostory. V ceně pronájmu je i zmíněné garážové stání.

V interiéru a zejména společných částech domu zaujmou umělecké předměty od předního českého umělce Vítězslava Stoklasy. V okolí domu najdete veškerou občanskou vybavenost včetně blízkých supermarketů a široké nabídky restaurací. Dopravní dostupnost MHD zajišťují blízké zastávky autobusu i tramvaje s přímým spojením na stanice metra C - Kačerov a Pankrác. Nuselská ulice je hlavní spojkou automobilové dopravy. Za přírodou můžete k potoku Botič, na Tyršův vrch nebo do blízkého parku Jezerka.
Byt bude k nastěhování od května, ale na prohlídku můžete již nyní.

Poplatky vč. elektřiny činí 5 949 Kč měsíčně a jsou zúčtovatelné.
Provize za zprostředkování ve výši jednoho nájmu + DPH.
Vratná kauce ve výši dvou měsíčních nájmů.

Bojíte se, aby vám tato nabídka neunikla? Nyní už nemusíte. Nabízíme vám možnost si byt pronajmout plně online.
Pokud ovšem dáváte přednost osobnímu setkání, neváhejte a domluvte si prohlídku. Těšíme se na setkání s vámi.

Kontaktovat nás můžete v pracovní dny od 9:00 do 17:30.

Cena
17 000 Kč /za měsíc
Poznámka k ceně
vratná kauce ve výši dvou měsíčních nájmů + provize za zprostředkování ve výši jednoho nájmu + DPH
Náklady na bydlení
5 949 Kč
Aktualizováno
18. 4. 2026
Adresa
Nuselská, Praha, Michle
ID
20260417-5
Stavba
Smíšená
Stav objektu
Novostavba
Patro
6. z 7
Vybaveno
Ne
Lokalita objektu
Rušná část obce
Vlastnictví
Osobní
Užitná plocha
43 m2
Třída energetické náročnosti
C - Úsporná
Ukazatel energetické náročnosti
108 kWh/m2 za rok
Elektřina
230V
Plyn
Plynovod
Odpad
Veřejná kanalizace
Komunikace
Asfaltová
Doprava
Silnice, MHD, Autobus
Voda
Vodovod
Topné těleso
Radiátory
Zdroj topení
Plynový kotel
Zdroj teplé vody
Plynový kotel
Garáž
Výtah
Bezbarierový přístup
Parkování

Máte zájem o tuto nemovitost?

Tímto, v souladu s nařízením Evropského parlamentu a Rady (EU) 2016/679, v platném znění, prohlašuji, že mi je alespoň 16 let a uděluji tak svůj souhlas se zpracováním zadaných údajů (jméno, telefon, e-mail, ip adresa) společnosti B3 Technology, s.r.o., IČ: 07330600, se sídlem Novostavby 126/23, 435 11 Lom (správce dat), za účelem předání dotazu z tohoto formuláře Vámi vybranému inzerentovi a zpětného kontaktování mé osoby. Osobní údaje bude správce zpracovávat manuálně i automaticky přímo prostřednictvím svých zaměstnanců. Informace předané tímto formulářem budou uloženy v databázi správce maximálně po dobu 10 let. Odvolání souhlasu s uložením a zpracováním poskytnutých dat lze e-mailem na info@realitymat.cz. V případě podezření na neoprávněné použití Vámi poskytnutých údajů máte právo předat podnět k šetření Úřadu pro ochranu osobních údajů. Více informací
Chystáte se prodat nemovitost?
Pomůžeme Vám!

Kontakt

Michaela Blablová

Michaela Blablová

Přihlášení k odběru

Nenechte si ujít nejnovější nabídky pronájmu bytů 1+kk v Praze 4.

Podobné nabídky