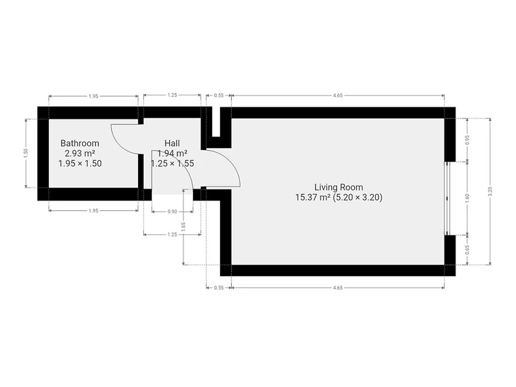
Pronájem bytu 1+kk, Praha - Vršovice, Petrohradská, 24 m2

Petrohradská, Vršovice - Praha 10


16 000 Kč /za měsíc
Získejte výhodnou HYPOTÉKU

(vratná kauce, náklady na bydlení 3.832 Kč, poplatek za podnájem)


Regionální dodavatelé v Praze 10

Stěhovací služby

Výkup a prodej starého nábytku

Popis

K dlouhodobému podnájmu nabízíme pěkný byt o dispozici 1+kk ve výborné lokalitě Praha - Vršovice. Byt o celkové výměře 24 m2 se nachází v prvním podlaží cihlového domu. K bytu patří i sklep. Byt je nově po rekonstrukci.

Byt se nabízí nevybavený. Součástí kuchyňské linky je trouba a sporák. Koupelna disponuje sprchovým koutem, umyvadlem a toaletou.

V okolí domu se nachází restaurace, lékárna, gymnázium, základní škola, pošta, obchod s potravinami (Žabka), supermarket Lidl, Tesco atd. Bezproblémová je také dopravní dostupnost - tramvajová a autobusová zastávka Bohemians je vzdálená dvě minuty chůze od domu

. Domácí mazlíčci jsou možní po domluvě.

Uvedena energetická kategorie G, jelikož nemáme k dispozici PENB.

Byt pronajímá Ideální nájemce - služba, se kterou budete bydlet bezstarostně a za férových podmínek. Když se něco přihodí, k dispozici jsou správci, kteří s vámi vše vyřeší. Pomůžeme s veškerou administrativou, s nastavením plateb a zajistíme vám speciální pojištění. Pojďte bydlet s námi!

Cena
16 000 Kč /za měsíc
Poznámka k ceně
vratná kauce, náklady na bydlení 3.832 Kč, poplatek za podnájem
Aktualizováno
17. 4. 2026
Adresa
Petrohradská, Vršovice - Praha 10
ID
N1287
Stavba
Cihlová
Stav objektu
Velmi dobrý
Patro
1. z 4
Vybaveno
Částečně
Typ objektu
Patrový
Lokalita objektu
Klidná část obce
Vlastnictví
Osobní
Užitná plocha
24 m2
Podlahová plocha
24 m2
Třída energetické náročnosti
G - Mimořádně nehospodárná
Elektřina
230V
Topení
Ústřední dálkové
Doprava
Vlak, Dálnice, Silnice, MHD, Autobus
Sklep
Výtah

Máte zájem o tuto nemovitost?

Tímto, v souladu s nařízením Evropského parlamentu a Rady (EU) 2016/679, v platném znění, prohlašuji, že mi je alespoň 16 let a uděluji tak svůj souhlas se zpracováním zadaných údajů (jméno, telefon, e-mail, ip adresa) společnosti B3 Technology, s.r.o., IČ: 07330600, se sídlem Novostavby 126/23, 435 11 Lom (správce dat), za účelem předání dotazu z tohoto formuláře Vámi vybranému inzerentovi a zpětného kontaktování mé osoby. Osobní údaje bude správce zpracovávat manuálně i automaticky přímo prostřednictvím svých zaměstnanců. Informace předané tímto formulářem budou uloženy v databázi správce maximálně po dobu 10 let. Odvolání souhlasu s uložením a zpracováním poskytnutých dat lze e-mailem na info@realitymat.cz. V případě podezření na neoprávněné použití Vámi poskytnutých údajů máte právo předat podnět k šetření Úřadu pro ochranu osobních údajů. Více informací
Chystáte se prodat nemovitost?
Pomůžeme Vám!

Kontakt

Miloslava Kačerová

Miloslava Kačerová

Přihlášení k odběru

Nenechte si ujít nejnovější nabídky pronájmu bytů 1+kk v Praze 10.

Podobné nabídky