Prodej rodinného domu, Sezimovo Ústí, Komenského, 120 m2

Komenského, Sezimovo Ústí


6 450 000 Kč /za nemovitost
HYPOTÉKA od 28 828 Kč /měs.
Regionální dodavatelé v Sezimově Ústí

Výkup a prodej starého nábytku

Popis

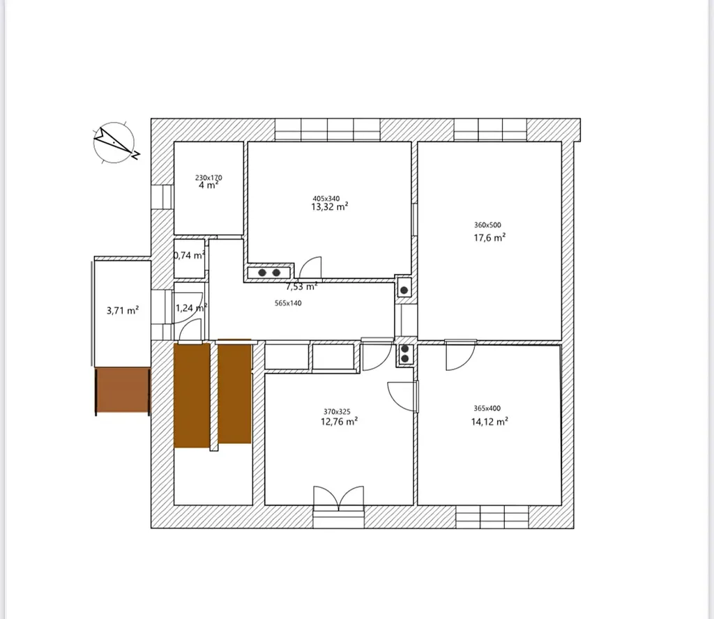
Rodinný dům se dvěmi samostatnými bytovými jednotkami. Prodej bytové jednotky 3+1 – zvýšené přízemí dvojdomu, Sezimovo Ústí II

Základní informace

Samostatná bytová jednotka 3+1
Umístění ve zvýšeném přízemí
Rodinný dům – dvojdům se dvěma zcela samostatnými nezávislými jednotkami
Jednotka vymezena podle občanského zákoníku
Podíl na společných částech: 1/2
Bez omezení vlastnického práva

Dispozice bytu

zádveří
koupelna se sprchovým koutem a WC
kuchyně s kuchyňskou linkou
obývací pokoj
ložnice
pokoj

Technický stav

byt je udržovaný, v původním stavu
podsklepený
vytápění: elektrokotel
ohřev vody: elektrický bojler
zateplený
plastová okna
možnost vybudovat přímý vjezd ze silnice na pozemek

Zahrada 312m2

oddělená, plně soukromá zahrada
ovocné stromy
udržovaná zeleň
zahradní kolna
prostor pro odpočinek i pěstování

Lokalita – Sezimovo Ústí II

atraktivní a klidná rezidenční zástavba
obchody, služby, restaurace
školky a školy
lékaři, lékárny
sportoviště, kulturní vyžití, parky
MHD do Tábora
vlakové a autobusové spoje
rychlý nájezd na dálnici D3 Praha–České Budějovice
krátká dojezdová vzdálenost do Tábora

Výhody

bydlení v rodinném domě
velká soukromá zahrada
možnost parkování i úprav pozemku
klidná a vyhledávaná lokalita
vhodné pro rodinu i jako investice

Cena
6 450 000 Kč /za nemovitost Spočítat hypotéku
Aktualizováno
16. 4. 2026
Adresa
Komenského, Sezimovo Ústí
Stavba
Cihlová
Stav objektu
Dobrý
Užitná plocha
120 m2
Plocha pozemku
415 m2
Sklep

Máte zájem o tuto nemovitost?

Tímto, v souladu s nařízením Evropského parlamentu a Rady (EU) 2016/679, v platném znění, prohlašuji, že mi je alespoň 16 let a uděluji tak svůj souhlas se zpracováním zadaných údajů (jméno, telefon, e-mail, ip adresa) společnosti B3 Technology, s.r.o., IČ: 07330600, se sídlem Novostavby 126/23, 435 11 Lom (správce dat), za účelem předání dotazu z tohoto formuláře Vámi vybranému inzerentovi a zpětného kontaktování mé osoby. Osobní údaje bude správce zpracovávat manuálně i automaticky přímo prostřednictvím svých zaměstnanců. Informace předané tímto formulářem budou uloženy v databázi správce maximálně po dobu 10 let. Odvolání souhlasu s uložením a zpracováním poskytnutých dat lze e-mailem na info@realitymat.cz. V případě podezření na neoprávněné použití Vámi poskytnutých údajů máte právo předat podnět k šetření Úřadu pro ochranu osobních údajů. Více informací
Chystáte se prodat nemovitost?
Pomůžeme Vám!

Kontakt

Jana Jirková

Jana Jirková

Přihlášení k odběru

Nenechte si ujít nejnovější nabídky prodeje rodinných domů v Sezimově Ústí.

Podobné nabídky