Prodej bytu 2+kk, Brno, Na pískové cestě, 47 m2 (ID: 2137070)

Na Pískové cestě, Brno, Bohunice


6 959 000 Kč /za nemovitost
HYPOTÉKA od 31 103 Kč /měs.
Regionální dodavatelé v Brně

Popis

____________________________________
!BYT JE REZERVOVANÝ!

Podívejte se na naše 3 poslední
volné byty v projektu
EDISON HOUSE
____________________________________


Hledáte krásné a moderní bydlení, které vás bude hýčkat?

Mrkněte na ateliér 202 v chytré novostavbě EDISON HOUSE.
Najdete ho v Brně, Bohunicích.
Nejrychleji rostoucí čtvrti s obrovským potenciálem rozvoje.
Nejlepší zaměstnavatelé, prvotřídní občanská vybavenost.

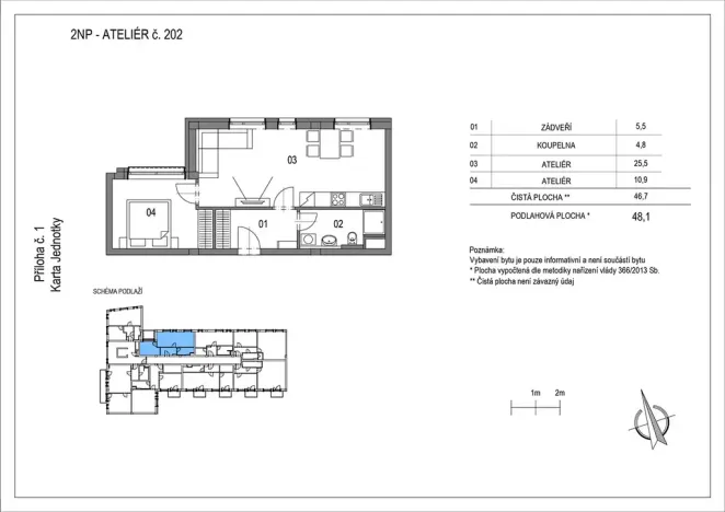
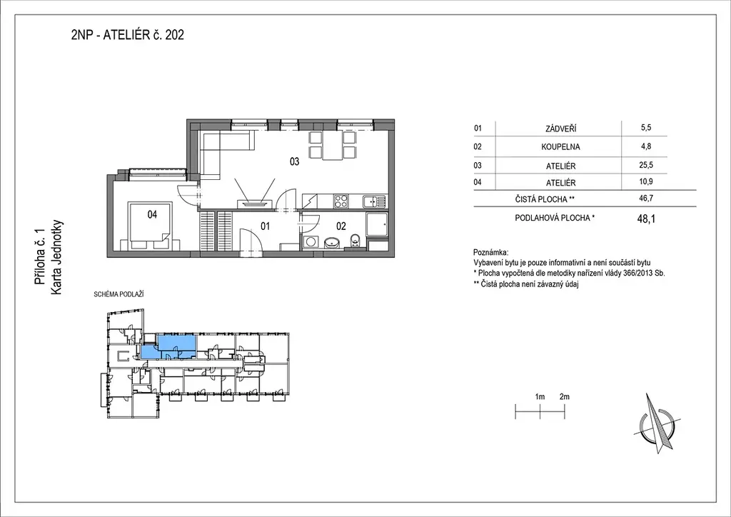
Ateliér 202 nabízí 48,1 m² prakticky navrženého prostoru: každý metr využívá naplno.
Tady neplatíte zbytečné chodby.
Získáte spoustu místa na skvělý život, to se dnes v dispozici 2kk jen tak nevidí.

—————————————————————————————-
V ceně máte kompletní LOXONE SMART HOME systém.

Čím Vám například zjednoduší život?
-> chytrá ventilace: stále čerstvý a čistý filtrovaný vzduch
-> automatické osvětlení podle denní doby: ráno lepší probuzení, večer kvalitní spánek
-> předokenní žaluzie sledují polohu slunce: chládek i v létě
-> chytré řízení teploty: vyhřátý byt, než dorazíte domů + šetří, když není třeba topit
-> bezpečnost a klid: např. ventil vypne přívod vody, když vyteče pračka
-> přístup do bytu přes PIN kód: časově omezený kód třeba pro návštěvu, či řemeslníka
-> SPOOOUSTA DALŠÍCH funkcí - každá vám o trochu zjednoduší a zlepší život

Ovládání?
Snadné a přirozené i pro úplně netechnické lidi.
Díky jednoduché appce a AppleiPadu, který od nás máte v ceně.

Obří výhoda do budoucna?
LOXONE je světová špička. Nejužívanější systém s perfektní podporou.
A novými funkcemi v budoucnu.

Chytré byty se začínají prosazovat tak, jako dřív chytré telefony.
Koupili byste si dneska tlačítkový telefon?
Takhle brzy lidi nebudou chtít klasické "hloupé" byty s horším energetickým standardem.
Jenže SMART HOME se nedá jen tak dodělat do hloupého bytu.
A tak SMART byty porostou na ceně.
————————————————————————————————

KVALITA MATERIÁLŮ A STAVBY
Dům je zkolaudovaný a dostavěný.
Žádné čekání na zpožděnou stavbu.
Žádné doufání, že Váš budoucí byt snad bude vypadat dobře.
U nás si můžete ověřit skvělou kvalitu před nákupem.
Vybrali jsme prvotřídní materiály i zařizovací předměty.
Koupili jsme i svítidla a předokenní žaluzie - vše máte v ceně.


EKONOMIKA PROVOZU:
Kdo chce mít levné náklady bydlení, koupí byt v úsporné novostavbě.
Náš Energetický štítek říká “PENB A – mimořádně úsporná budova”
To je bydlení s levným provozem.
Neplaťte za topení a jeďte za to radši na dovolenou.


Zní to všechno skvěle, že?
Má ale jednu nevýhodu: naše chytré byty rychle mizí.
Tohle je náš poslední byt s cenou pod 7 MKč.
Ozvěte se, než Vám tahle příležitost uteče.

Cena
6 959 000 Kč /za nemovitost Spočítat hypotéku
Aktualizováno
15. 4. 2026
Adresa
Na Pískové cestě, Brno, Bohunice
ID
11202501
Stavba
Cihlová
Stav objektu
Novostavba
Patro
2. z 4
Vybaveno
Ne
Vlastnictví
Osobní
Užitná plocha
47 m2
Třída energetické náročnosti
A - Mimořádně úsporná
Ukazatel energetické náročnosti
58 kWh/m2 za rok
Odpad
Veřejná kanalizace
Komunikace
Asfaltová
Telekomunikace
Internet
Doprava
MHD
Voda
Vodovod
Topné těleso
Podlahové vytápění
Zdroj topení
Tepelné čerpadlo
Zdroj teplé vody
Tepelné čerpadlo
Výtah
Bezbarierový přístup

Máte zájem o tuto nemovitost?

Tímto, v souladu s nařízením Evropského parlamentu a Rady (EU) 2016/679, v platném znění, prohlašuji, že mi je alespoň 16 let a uděluji tak svůj souhlas se zpracováním zadaných údajů (jméno, telefon, e-mail, ip adresa) společnosti B3 Technology, s.r.o., IČ: 07330600, se sídlem Novostavby 126/23, 435 11 Lom (správce dat), za účelem předání dotazu z tohoto formuláře Vámi vybranému inzerentovi a zpětného kontaktování mé osoby. Osobní údaje bude správce zpracovávat manuálně i automaticky přímo prostřednictvím svých zaměstnanců. Informace předané tímto formulářem budou uloženy v databázi správce maximálně po dobu 10 let. Odvolání souhlasu s uložením a zpracováním poskytnutých dat lze e-mailem na info@realitymat.cz. V případě podezření na neoprávněné použití Vámi poskytnutých údajů máte právo předat podnět k šetření Úřadu pro ochranu osobních údajů. Více informací
Chystáte se prodat nemovitost?
Pomůžeme Vám!

Kontakt

Ing. Jan Veselý

Ing. Jan Veselý

Přihlášení k odběru

Nenechte si ujít nejnovější nabídky prodeje bytů 2+kk v Brně.

Podobné nabídky