Pronájem bytu 3+kk, Praha - Dolní Chabry, K Beranovu, 78 m2

K Beranovu, Dolní Chabry - Praha-Dolní Chabry


31 900 Kč /za měsíc
Získejte výhodnou HYPOTÉKU

(vratná jistota, náklady na bydlen 6065 Kč, poplatek za podnájem)


Regionální dodavatelé v Praze 8

Stěhovací služby

Výkup a prodej starého nábytku

Popis

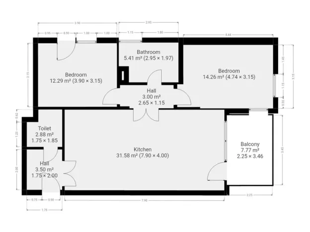
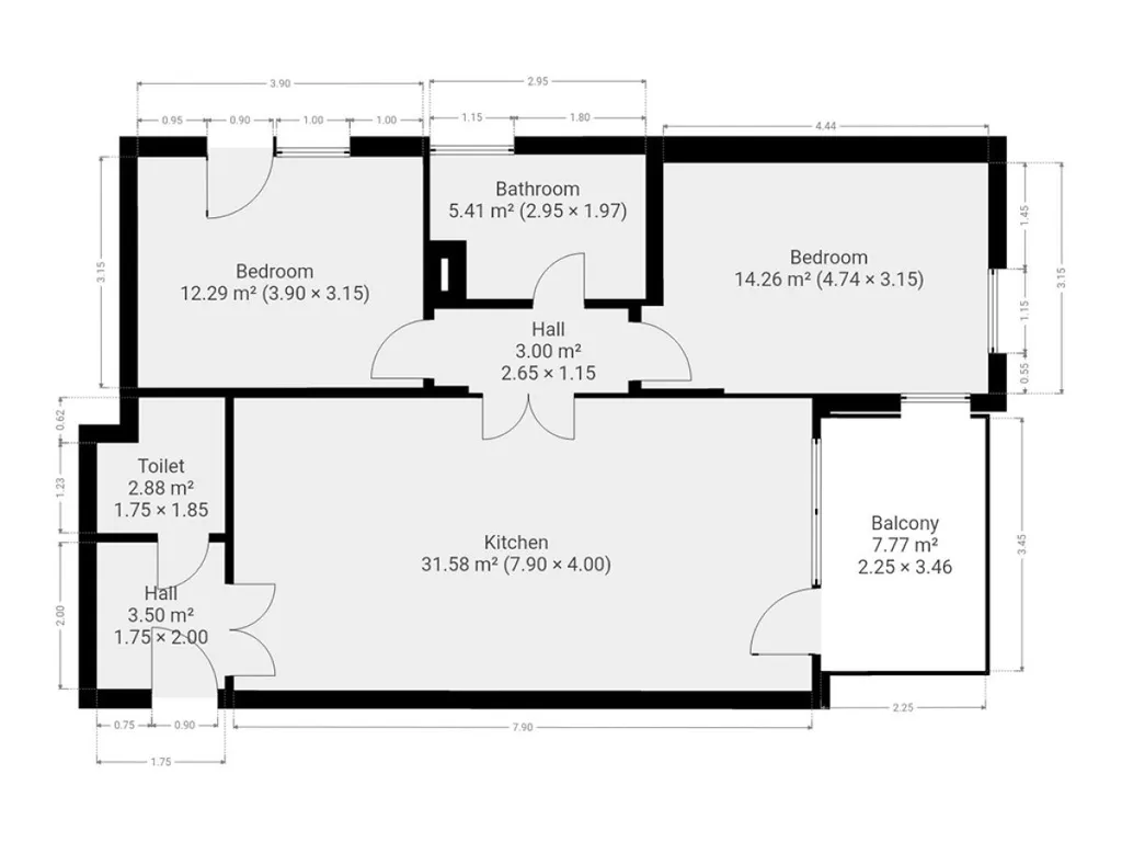
Tento moderní a prosluněný byt s dispozicí 3+kk nabízí ideální domov v klidné a oblíbené lokalitě Dolní Chabry. Nachází se ve 4. patře cihlové novostavby s výtahem a nabízí poklidný výhled. Výměra bytu činí 78 m2 a patří k němu balkon, sklep a garážové stání.

Byt je částečně vybaven, v kuchyni najdete lednici, myčku, troubu, varnou desku a digestoř. V ložnici je vestavěná skříň, zatímco obývací prostor zůstává nezařízený. Druhý pokoj může být využit jako kancelář nebo dětský pokoj. Chodba bytu je vybavena velkou vestavnou skříňí s dostatkem úložného prostoru. V koupelně je vana a toaleta, další samostatná toaleta je umístěna vedle.

Lokalita nabízí spoustu výhod. Nedaleko domu se nachází rozlehlé parky Čimický Háj a Ďáblický Háj, restaurace a obchody jako Penny a Lidl. V blízkosti jsou také základní a mateřské školy a lékárna. Autobusová zastávka Počeradská je vzdálena pouhých 4 minut chůze od domu a tramvajová stanice Vozovna Kobylisy je dostupná po 10 minutách chůze

Byt je k dispozici od 1.6.2026.

Uvedena energetická kategorie G, jelikož nemáme k dispozici PENB.

Byt pronajímá Ideální nájemce - služba, se kterou budete bydlet bezstarostně a za férových podmínek. Když se něco přihodí, k dispozici jsou správci, kteří s vámi vše vyřeší. Pomůžeme s veškerou administrativou, s nastavením plateb a zajistíme vám speciální pojištění. Pojďte bydlet s námi!

Cena
31 900 Kč /za měsíc
Poznámka k ceně
vratná jistota, náklady na bydlen 6065 Kč, poplatek za podnájem
Aktualizováno
14. 4. 2026
Adresa
K Beranovu, Dolní Chabry - Praha-Dolní Chabry
ID
N3689
Stavba
Cihlová
Stav objektu
Novostavba
Patro
4. z 5
Vybaveno
Částečně
Typ objektu
Patrový
Lokalita objektu
Klidná část obce
Vlastnictví
Osobní
Užitná plocha
78 m2
Podlahová plocha
78 m2
Elektřina
230V
Topení
Ústřední dálkové
Doprava
Vlak, Dálnice, Silnice, MHD, Autobus
Balkon
Garáž
Sklep
Výtah
Bezbarierový přístup
Parkování

Máte zájem o tuto nemovitost?

Tímto, v souladu s nařízením Evropského parlamentu a Rady (EU) 2016/679, v platném znění, prohlašuji, že mi je alespoň 16 let a uděluji tak svůj souhlas se zpracováním zadaných údajů (jméno, telefon, e-mail, ip adresa) společnosti B3 Technology, s.r.o., IČ: 07330600, se sídlem Novostavby 126/23, 435 11 Lom (správce dat), za účelem předání dotazu z tohoto formuláře Vámi vybranému inzerentovi a zpětného kontaktování mé osoby. Osobní údaje bude správce zpracovávat manuálně i automaticky přímo prostřednictvím svých zaměstnanců. Informace předané tímto formulářem budou uloženy v databázi správce maximálně po dobu 10 let. Odvolání souhlasu s uložením a zpracováním poskytnutých dat lze e-mailem na info@realitymat.cz. V případě podezření na neoprávněné použití Vámi poskytnutých údajů máte právo předat podnět k šetření Úřadu pro ochranu osobních údajů. Více informací
Chystáte se prodat nemovitost?
Pomůžeme Vám!

Kontakt

Miloslava Kačerová

Miloslava Kačerová

Přihlášení k odběru

Nenechte si ujít nejnovější nabídky pronájmu bytů 3+kk v Praze 8.

Podobné nabídky