Pronájem bytu 3+kk, České Budějovice - České Budějovice 5, Františka Jelena, 65 m2

Františka Jelena, České Budějovice 5


18 000 Kč /za měsíc
Získejte výhodnou HYPOTÉKU

(+ zálohy na služby 5.500, Kč (včetně elektřiny a internetu pro byt). Vratná kauce 30.000, Kč.)


Regionální dodavatelé v Českých Budějovicích

Výkup a prodej starého nábytku

Popis

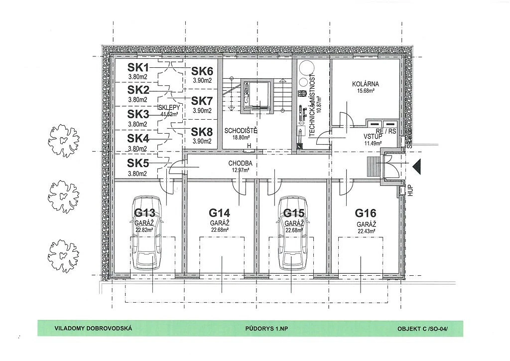
Ráno káva na terase a pak jen sjet výtahem do vlastní garáže a vyrazit. Líbí se Vám taková myšlenka? Nabízíme k pronájmu byt dispozice 3 + kk o výměře 65 m², jehož příslušenstvím je krásná jižně orientovaná terasa 6 m² a samostatná garáž 23 m².
Cesty tak nebudete v zimě začínat ometáním sněhu ze zapadaného auta nebo v létě nasedat do rozpálené výhně. Stačí z bytu sjet výtahem a suchou nohou se dostanete do vlastní prostorné garáže, kde je dostatek místa nejen pro auto, ale i kola a další vybavení, což oceníte po celý rok.
• byt 3+kk s terasou a vlastní garáží
• prostorná garáž 23 m² propojená se vstupní chodbou k výtahu
• moderní kuchyňská linka
• ulice Františka Jelena, České Budějovice
Byt se nachází ve 4. NP novostavby bytového domu v ulici Františka Jelena, České Budějovice. Dispoziční řešení bytu je: z předsíně (7 m²) je přístupný severně orientovaný pokoj (8 m²), východně orientovaná ložnice (13 m²) a koupelna (6 m²). Předsíň je vybavena vestavěnou skříní s botníkem, koupelna je vybavena sprchovým koutem, umyvadlem, toaletou a přípojkou pro pračku. Z předsíně dále vstupujeme do obytného prostoru s kuchyňským koutem (29 m²). Z obytného prostoru je přímý vstup na terasu (6 m²). Byt je vybaven moderní kuchyňskou linkou s vestavěnými spotřebiči (varná deska, trouba, digestoř, myčka, lednice).
Stavební a technické řešení nízkoenergetického bytového domu zaručuje úsporou nákladů na vytápění oproti běžnému bytu, což snižuje měsíční náklady zejména do budoucna. Městská čtvrť Suché Vrbné se rozkládá na východní straně Českých Budějovic a lokalita pro výstavbu bytových domů se nachází v klidové zóně kolem Dobrovodského potoka. Okolí bytových domů je tvořeno zástavbou řadových a rodinných domů.
Lokalita je velmi dobře dostupná městskou hromadnou dopravou i automobilem. V docházkové vzdálenosti najdete veškerou občanskou vybavenost. Případné obavy z negativního vlivu dálnice D3 na tuto lokalitu jsou definitivně rozptýleny, a to kilometrovým dálničním tunelem Pohůrka, který celou lokalitu chrání.
Občanská vybavenost v docházkové vzdálenosti: základní škola Suché Vrbné, mateřská škola U Pramene, supermarket Albert, lékaři, pošta, restaurace. Dopravní dostupnost: MHD linka č. 6, autem 5 10 minut z centra.
Výše měsíčního nájmu činní 18.000, Kč + zálohy na služby 5.500, Kč (včetně elektřiny a internetu pro byt). Vratná kauce 30.000, Kč. Odměna RK za zprostředkování nájmu 18.000, Kč + DPH. Byt je volný od 1.7.2026.

Cena
18 000 Kč /za měsíc
Poznámka k ceně
+ zálohy na služby 5.500, Kč (včetně elektřiny a internetu pro byt). Vratná kauce 30.000, Kč.
Aktualizováno
14. 4. 2026
Adresa
Františka Jelena, České Budějovice 5
ID
979466
Stavba
Panelová
Stav objektu
Novostavba
Vlastnictví
Osobní
Užitná plocha
65 m2
Třída energetické náročnosti
B - Velmi úsporná

Máte zájem o tuto nemovitost?

Tímto, v souladu s nařízením Evropského parlamentu a Rady (EU) 2016/679, v platném znění, prohlašuji, že mi je alespoň 16 let a uděluji tak svůj souhlas se zpracováním zadaných údajů (jméno, telefon, e-mail, ip adresa) společnosti B3 Technology, s.r.o., IČ: 07330600, se sídlem Novostavby 126/23, 435 11 Lom (správce dat), za účelem předání dotazu z tohoto formuláře Vámi vybranému inzerentovi a zpětného kontaktování mé osoby. Osobní údaje bude správce zpracovávat manuálně i automaticky přímo prostřednictvím svých zaměstnanců. Informace předané tímto formulářem budou uloženy v databázi správce maximálně po dobu 10 let. Odvolání souhlasu s uložením a zpracováním poskytnutých dat lze e-mailem na info@realitymat.cz. V případě podezření na neoprávněné použití Vámi poskytnutých údajů máte právo předat podnět k šetření Úřadu pro ochranu osobních údajů. Více informací
Chystáte se prodat nemovitost?
Pomůžeme Vám!