Prodej chalupy, Radvanice, 216 m2 (ID: 2133824)

Radvanice


8 999 000 Kč /za nemovitost
HYPOTÉKA od 40 220 Kč /měs.
Regionální dodavatelé v Radvanicích

Pojištění a finance

Popis

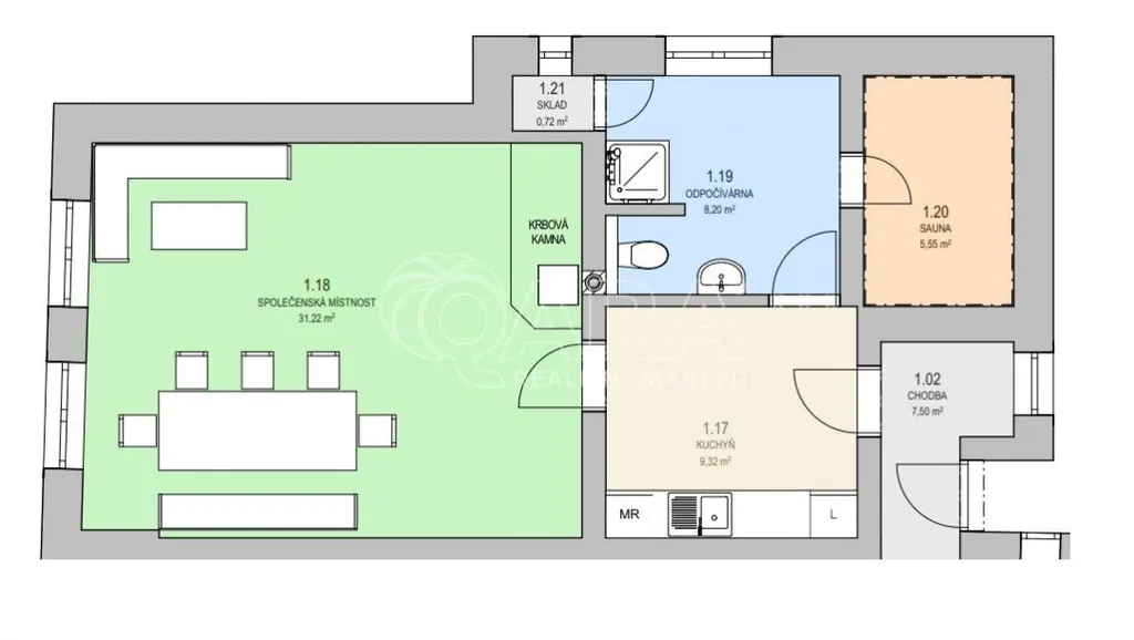
Nabízíme k prodeji výjimečný rekreační objekt. Prostornou chalupu po kompletní rekonstrukci se zateplením. Chalupa stojí na pozemku se zahradou o velikosti 987 m a má užitnou plochu 216 m. Je připravena k okamžitému užívání, ale zároveň dává prostor pro další rozvoj i osobní přizpůsobení.

Kapacita a dispozice:
Chalupa disponuje saunou s odpočívárnou, společenskou místností, 5 pokoji s celkovou kapacitou 15 lůžek, což je ideální pro ubytování větší skupiny hostů, 3 koupelnami a 3 kuchyněmi. U objektu se nachází rozlehlá zahrada s venkovním posezením a grilem. Kompletní zázemí pro relaxaci a odpočinek stranou od ruchu města.

Velkým bonusem je rozsáhlý půdní prostor o ploše 290 m, který nabízí možnost vybudování dalších pokojů či apartmánů a výrazně tak navýšit ubytovací kapacitu chalupy.

Technické parametry a vybavení:
Objekt je plně zrekonstruován a zateplen, se sedlovou plechovou střechou.
Vytápění je zajištěno tepelným čerpadlem s radiátory a krbovými kamny.
Ohřev teplé vody zajišťuje tepelné čerpadlo.
Zdrojem užitkové vody je vrtaná studna.

Okolí a turistické cíle:
Nemovitost se nachází v těsné blízkosti přírody a je ideálním výchozím bodem pro turisty. V okolí se nachází:
Slavětínská rozhledna a rozhledna Žaltman v Jestřebích horách
Lyžařský areál Radvanice a množství běžeckých tras
Adršpašsko-Teplické skály
Bunkry z opevnění 19301938 a další historické i přírodní atrakce
Ve větší vzdálenosti pak například ZOO Dvůr Králové nebo Babiččino údolí

Nemovitost je ideální pro investory, kteří chtějí objekt s okamžitým potenciálem zisku z krátkodobých pronájmů s možností dalšího rozšíření. Je vhodná i pro rodiny a skupiny, které ocení možnost klidného víkendového vyžití s přáteli a rodinou. Pro všechny, kdo hledají komfortní a moderní víkendovou chalupu.

Pokud vás tato nabídka zaujala, neváhejte mě kontaktovat. Naplánujeme její prohlídku.

Cena
8 999 000 Kč /za nemovitost Spočítat hypotéku
Aktualizováno
21. 4. 2026
Adresa
Radvanice
ID
Chalupa Radvanice
Stavba
Cihlová
Stav objektu
Velmi dobrý
Vybaveno
Ano
Typ objektu
Patrový
Druh objektu
Samostatný
Lokalita objektu
Klidná část obce
Užitná plocha
216 m2
Podlahová plocha
216 m2
Plocha pozemku
987 m2
Třída energetické náročnosti
E - Nehospodárná
Elektřina
230V, 400V
Odpad
Septik, Trativod
Komunikace
Asfaltová
Doprava
Autobus
Voda
Vodovod, Studna
Sklep
Bezbarierový přístup

Máte zájem o tuto nemovitost?

Tímto, v souladu s nařízením Evropského parlamentu a Rady (EU) 2016/679, v platném znění, prohlašuji, že mi je alespoň 16 let a uděluji tak svůj souhlas se zpracováním zadaných údajů (jméno, telefon, e-mail, ip adresa) společnosti B3 Technology, s.r.o., IČ: 07330600, se sídlem Novostavby 126/23, 435 11 Lom (správce dat), za účelem předání dotazu z tohoto formuláře Vámi vybranému inzerentovi a zpětného kontaktování mé osoby. Osobní údaje bude správce zpracovávat manuálně i automaticky přímo prostřednictvím svých zaměstnanců. Informace předané tímto formulářem budou uloženy v databázi správce maximálně po dobu 10 let. Odvolání souhlasu s uložením a zpracováním poskytnutých dat lze e-mailem na info@realitymat.cz. V případě podezření na neoprávněné použití Vámi poskytnutých údajů máte právo předat podnět k šetření Úřadu pro ochranu osobních údajů. Více informací
Chystáte se prodat nemovitost?
Pomůžeme Vám!
Theleadway banner

Kontakt

Jan Kozák

Jan Kozák

Přihlášení k odběru

Nenechte si ujít nejnovější nabídky prodeje chalup v Radvanicích (okr. Trutnov).

Tipy Realitymatu

Podobné nabídky