Pronájem bytu 2+1, Ústí nad Labem, Jizerská, 64 m2

Jizerská, Ústí nad Labem, Severní Terasa


9 800 Kč /za měsíc
Získejte výhodnou HYPOTÉKU

(Zálohy na služby 3 000 Kč/měs. Zálohy na elektřinu a plyn (svícení, vaření) hradí nájemce přímo dodavateli.)


Regionální dodavatelé v Ústí nad Labem

Okna a dveře

Rekonstrukce

Popis

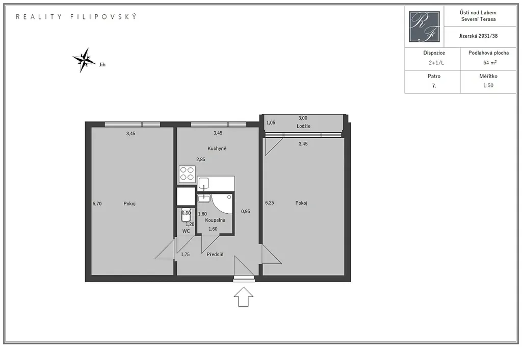
Dovoluji si Vám nabídnout pronájem bytu 2+1/L s hezkým výhledem, který se nachází v 7. patře revitalizovaného panelového domu na Severní Terase v ul. Jizerská.

Byt byl nedávno renovován a je připraven k nastěhování.

Z pohledu kvality a komfortu bydlení musím vyzdvihnout příznivé dispoziční řešení s velkorysou podlahovou plochou, působivý výhled, výbornou dostupnost do centra města a stanici MHD nedaleko od domu.

Výše nájemného činí 9 800 Kč/měs., zálohy na služby 3 000,- Kč/měs. Zálohy na elektřinu a plyn hradí nájemce přímo dodavateli. Kauce činí 20 000,- Kč. Provize RK 10 000 Kč.

Cena
9 800 Kč /za měsíc
Poznámka k ceně
Zálohy na služby 3 000 Kč/měs. Zálohy na elektřinu a plyn (svícení, vaření) hradí nájemce přímo dodavateli.
Aktualizováno
12. 4. 2026
Adresa
Jizerská, Ústí nad Labem, Severní Terasa
ID
651
Stavba
Panelová
Stav objektu
Velmi dobrý
Patro
8.
Vlastnictví
Osobní
Užitná plocha
64 m2
Třída energetické náročnosti
D - Méně úsporná
Elektřina
230V
Plyn
Plynovod
Odpad
Veřejná kanalizace
Voda
Vodovod
Zdroj topení
Ústřední dálkové
Zdroj teplé vody
Centrální dálkový ohřev
Sklep
Lodžie

Máte zájem o tuto nemovitost?

Tímto, v souladu s nařízením Evropského parlamentu a Rady (EU) 2016/679, v platném znění, prohlašuji, že mi je alespoň 16 let a uděluji tak svůj souhlas se zpracováním zadaných údajů (jméno, telefon, e-mail, ip adresa) společnosti B3 Technology, s.r.o., IČ: 07330600, se sídlem Novostavby 126/23, 435 11 Lom (správce dat), za účelem předání dotazu z tohoto formuláře Vámi vybranému inzerentovi a zpětného kontaktování mé osoby. Osobní údaje bude správce zpracovávat manuálně i automaticky přímo prostřednictvím svých zaměstnanců. Informace předané tímto formulářem budou uloženy v databázi správce maximálně po dobu 10 let. Odvolání souhlasu s uložením a zpracováním poskytnutých dat lze e-mailem na info@realitymat.cz. V případě podezření na neoprávněné použití Vámi poskytnutých údajů máte právo předat podnět k šetření Úřadu pro ochranu osobních údajů. Více informací
Chystáte se prodat nemovitost?
Pomůžeme Vám!

Kontakt

Marek Filipovský - certifikovaný obchodník s nemovitostmi

Marek Filipovský - certifikovaný obchodník s nemovitostmi

Přihlášení k odběru

Nenechte si ujít nejnovější nabídky pronájmu bytů 2+1 v Ústí nad Labem.

Podobné nabídky