Prodej rodinného domu, Zlonice - Vyšínek, 130 m2 (ID: 2129777)

Zlonice, Vyšínek


8 490 000 Kč /za nemovitost
HYPOTÉKA od 37 945 Kč /měs.
Regionální dodavatelé v Zlonicích

Popis

Hledáte klidné rodinné bydlení, kde má každý své místo a Praha zůstává na dosah? Tenhle dům vás zaujme hned při první návštěvě.

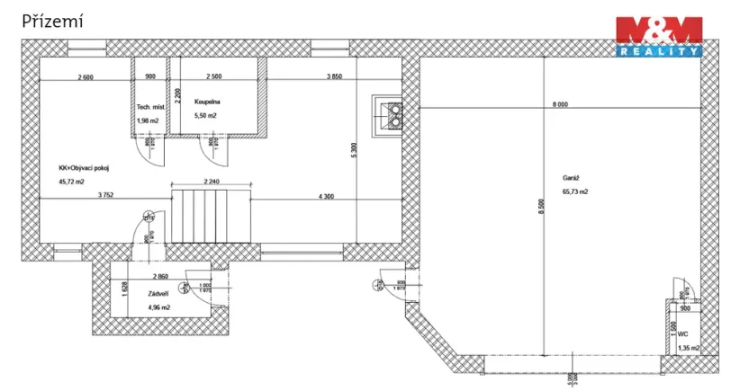
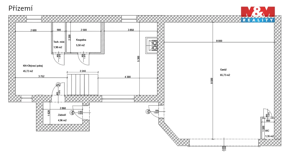
Rodinný dům z roku 2012 je promyšlený do posledního detailu a ideální pro pohodový rodinný život. V přízemí s podlahovým vytápěním naleznete plně vybavenou kuchyň s jídelnou, praktickou komoru, koupelnu s toaletou a světlý obývací pokoj s majestátným krbem. Interiér působí útulně díky kombinaci dřeva, bílé barvy a kamene.

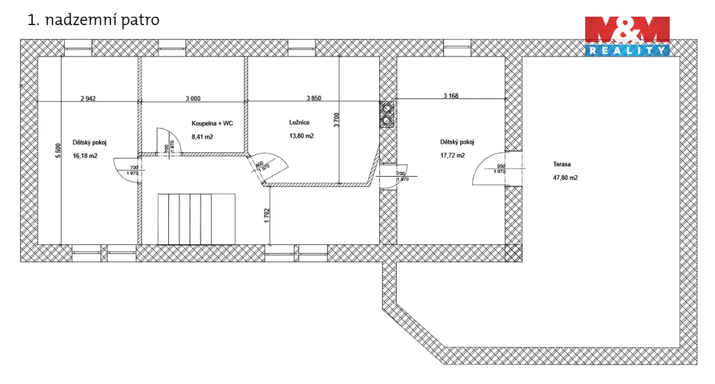
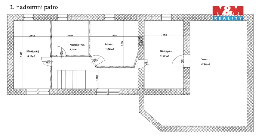
V patře najdete tři samostatné pokoje, druhou koupelnu a terasu s výhledem na okolní krajinu.
Na dům navazuje velká dvougaráž s pneumatickým heverem, která dříve sloužila jako pneuservis a nabízí tak široké možnosti využití i pro podnikání.
Na oploceném pozemku je posezení pod pergolou, nadzemní bazén a komfort zajišťuje dálkově ovládaná pojezdová brána.

Lokalita Zlonice - Vyšínek nabízí přesně to, co rodiny hledají – klid, bezpečí, přírodu a zároveň rozumnou dojezdovou vzdálenost do Prahy, dostupnost škol, školek i základní infrastruktury

Cena
8 490 000 Kč /za nemovitost Spočítat hypotéku
Aktualizováno
9. 4. 2026
Adresa
Zlonice, Vyšínek
ID
939020
Stavba
Cihlová
Stav objektu
Velmi dobrý
Vybaveno
Ano
Druh objektu
Samostatný
Lokalita objektu
Klidná část obce
Vlastnictví
Osobní
Užitná plocha
130 m2
Plocha pozemku
640 m2

Máte zájem o tuto nemovitost?

Tímto, v souladu s nařízením Evropského parlamentu a Rady (EU) 2016/679, v platném znění, prohlašuji, že mi je alespoň 16 let a uděluji tak svůj souhlas se zpracováním zadaných údajů (jméno, telefon, e-mail, ip adresa) společnosti B3 Technology, s.r.o., IČ: 07330600, se sídlem Novostavby 126/23, 435 11 Lom (správce dat), za účelem předání dotazu z tohoto formuláře Vámi vybranému inzerentovi a zpětného kontaktování mé osoby. Osobní údaje bude správce zpracovávat manuálně i automaticky přímo prostřednictvím svých zaměstnanců. Informace předané tímto formulářem budou uloženy v databázi správce maximálně po dobu 10 let. Odvolání souhlasu s uložením a zpracováním poskytnutých dat lze e-mailem na info@realitymat.cz. V případě podezření na neoprávněné použití Vámi poskytnutých údajů máte právo předat podnět k šetření Úřadu pro ochranu osobních údajů. Více informací
Chystáte se prodat nemovitost?
Pomůžeme Vám!

Kontakt

Ondřej Batěk

Ondřej Batěk

Přihlášení k odběru

Nenechte si ujít nejnovější nabídky prodeje rodinných domů v Zlonicích.

Podobné nabídky