Prodej bytu 3+1, Plzeň - Doubravka, Na Dlouhých, 68 m2

Na Dlouhých, Plzeň, Doubravka


5 800 000 Kč /za nemovitost
HYPOTÉKA od 25 922 Kč /měs.

(provizi hradí prodávající)


Regionální dodavatelé v Plzni

Stěhovací služby

Popis

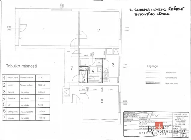
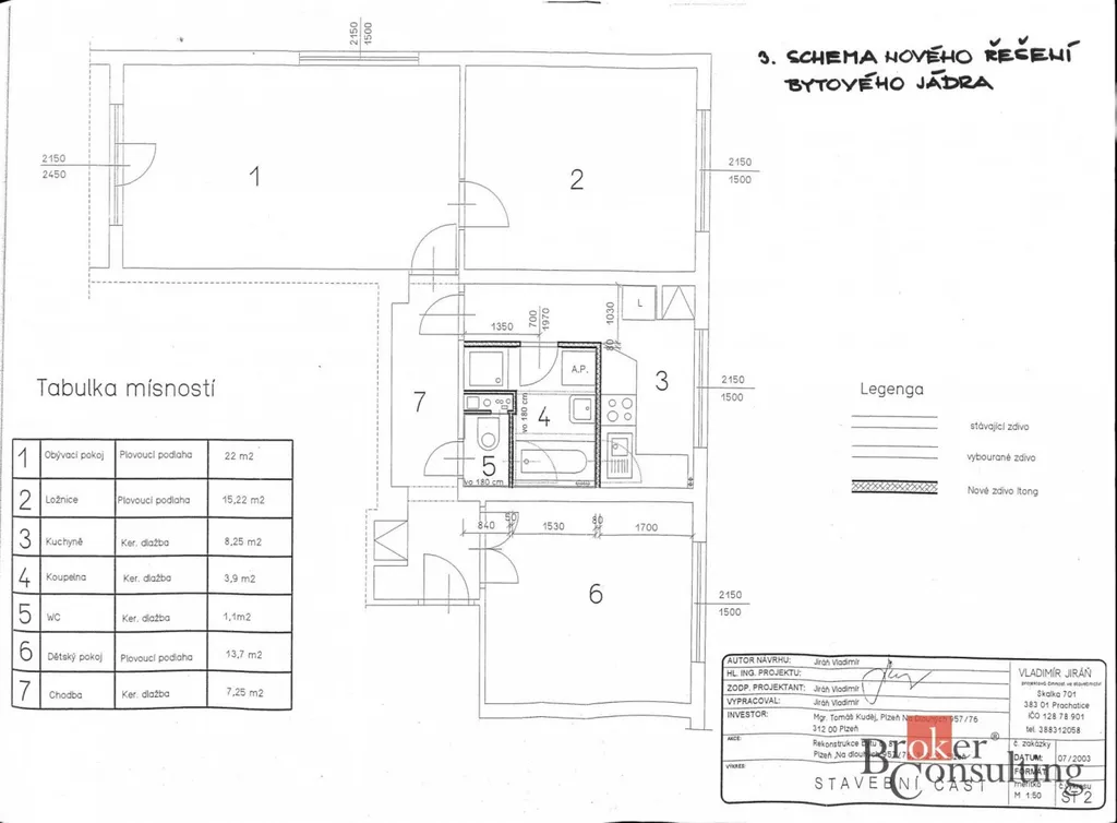
K prodeji byt o dispozici 3+1 s balkonem a celkové výměře 68,8 m², nacházející se v Plzni – Doubravce, ulice Na Dlouhých. Byt je situován ve 2. podlaží bytového domu.

Byt prošel rekonstrukcí a je připraven k okamžitému nastěhování. Dispozice zahrnuje kuchyň, obývací pokoj, samostatný pokoj, ložnici, koupelnu a WC.

Standard bytu tvoří 3-komorová plastová okna, vestavěné skříně (chodba, koupelna, ložnice) a plovoucí podlahy v kombinaci s dlažbou, které zajišťují moderní a praktické bydlení.

Dům prošel revitalizací a nabízí nadstandardní komfort – vstup je možný z obou stran, z toho jeden je bezbariérový. K dispozici je velký výtah a reprezentativní vstupní prostory. Vstup do domu je zabezpečen čipovým systémem a kamerami.

Byt se nachází v klidné lokalitě s kompletní občanskou vybaveností a dobrou dostupností do centra města.

Cena
5 800 000 Kč /za nemovitost Spočítat hypotéku
Poznámka k ceně
provizi hradí prodávající
Náklady na bydlení
4815
Aktualizováno
7. 4. 2026
Adresa
Na Dlouhých, Plzeň, Doubravka
ID
84227
Stavba
Panelová
Stav objektu
Velmi dobrý
Patro
2. z 10
Vybaveno
Částečně
Druh objektu
V bloku
Vlastnictví
Osobní
Užitná plocha
68 m2
Podlahová plocha
68 m2
Třída energetické náročnosti
A - Mimořádně úsporná
Plyn
Plynovod
Odpad
Veřejná kanalizace
Topení
Ústřední dálkové
Doprava
Silnice, MHD
Voda
Vodovod
Lodžie
Výtah

Máte zájem o tuto nemovitost?

Broker Consulting, a.s.

Jiráskovo náměstí 2684/2, Plzeň, Východní Předměstí

Chystáte se prodat nemovitost?
Pomůžeme Vám!
Tímto, v souladu s nařízením Evropského parlamentu a Rady (EU) 2016/679, v platném znění, prohlašuji, že mi je alespoň 16 let a uděluji tak svůj souhlas se zpracováním zadaných údajů (jméno, telefon, e-mail, ip adresa) společnosti B3 Technology, s.r.o., IČ: 07330600, se sídlem Novostavby 126/23, 435 11 Lom (správce dat), za účelem předání dotazu z tohoto formuláře Vámi vybranému inzerentovi a zpětného kontaktování mé osoby. Osobní údaje bude správce zpracovávat manuálně i automaticky přímo prostřednictvím svých zaměstnanců. Informace předané tímto formulářem budou uloženy v databázi správce maximálně po dobu 10 let. Odvolání souhlasu s uložením a zpracováním poskytnutých dat lze e-mailem na info@realitymat.cz. V případě podezření na neoprávněné použití Vámi poskytnutých údajů máte právo předat podnět k šetření Úřadu pro ochranu osobních údajů. Více informací
Chystáte se prodat nemovitost?
Pomůžeme Vám!

Přihlášení k odběru

Nenechte si ujít nejnovější nabídky prodeje bytů 3+1 v Plzni.

Podobné nabídky