Prodej bytu 2+kk, Praha - Vršovice, Bělocerkevská, 52 m2 (ID: 2123587)

Bělocerkevská, Praha, Vršovice


7 690 000 Kč /za nemovitost
HYPOTÉKA od 34 370 Kč /měs.
Regionální dodavatelé v Praze 10

Stěhovací služby

Výkup a prodej starého nábytku

Popis

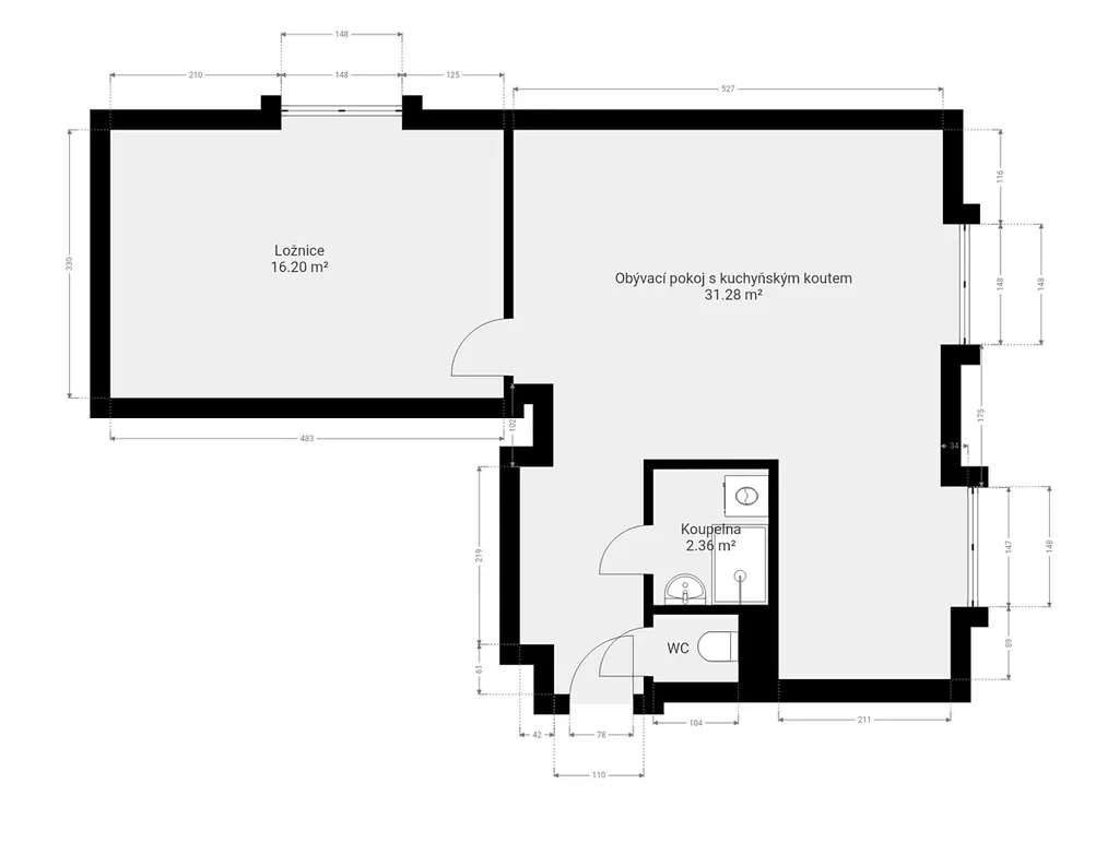
Nabízíme byt 2+kk v osobním vlastnictví o ploše 50 m² + sklep 2 m², na adrese Bělocerkevská 1303/30, Praha 10 – Vršovice. Byt je po kompletní rekonstrukci z roku 2017 a nachází se v revitalizovaném domě s dobře fungujícím SVJ.

Byt je aktuálně pronajat prověřenému a bezproblémovému nájemníkovi, který může odejít k 6/2026. Nájemník dlouhodobě a spolehlivě hradí nájemné 20 000 Kč/měsíc + energie. Ideální volba pro investora hledajícího okamžitý a stabilní výnos bez starostí.
Nemovitost je vhodná jako investice, nebo také k pohodovému rodinnému bydlení.

Dům a technický stav:
kompletní revitalizace: zateplená fasáda, dřevěná okna, nová střecha
nové domovní rozvody elektřiny
SVJ splácí úvěr na revitalizaci (zbývá cca 14 mil. Kč z původních 20 mil. Kč)
fond oprav pravidelně navyšován o inflaci
žádné další zásadní opravy nejsou aktuálně plánovány

Náklady:
poplatky: 5 451 Kč + fond oprav: 2 951 Kč
elektřina a plyn dle skutečné spotřeby (hrazeno nájemníkem)

Lokalita:
výborná dostupnost do centra – tramvaje a autobusy v docházkové vzdálenosti
smíšené zboží přímo v domě, Tesco Express v bezprostředním okolí
kompletní občanská vybavenost, restaurace, kavárny a služby
dlouhodobě velmi žádaná rezidenční lokalita s vysokou poptávkou po nájmu

Shrnutí:
osobní vlastnictví
stabilní výnos
dům po revitalizaci
výborná investiční lokalita Prodávající si vyhrazuje právo vybrat kupujícího na základě jím zvolených kritérií.

Cena
7 690 000 Kč /za nemovitost Spočítat hypotéku
Aktualizováno
4. 4. 2026
Adresa
Bělocerkevská, Praha, Vršovice
ID
0218-NP07065
Stavba
Smíšená
Stav objektu
Velmi dobrý
Patro
1. z 8
Vybaveno
Ano
Lokalita objektu
Centrum obce
Vlastnictví
Osobní
Užitná plocha
52 m2
Zastavěná plocha
634 m2
Podlahová plocha
52 m2
Třída energetické náročnosti
B - Velmi úsporná
Ukazatel energetické náročnosti
95 kWh/m2 za rok
Elektřina
230V
Plyn
Plynovod
Odpad
Veřejná kanalizace
Komunikace
Asfaltová
Telekomunikace
Internet
Doprava
Vlak, Dálnice, Silnice, MHD, Autobus
Voda
Vodovod
Topné těleso
Radiátory
Zdroj topení
Centrální dálkové
Sklep
Výtah

Máte zájem o tuto nemovitost?

Tímto, v souladu s nařízením Evropského parlamentu a Rady (EU) 2016/679, v platném znění, prohlašuji, že mi je alespoň 16 let a uděluji tak svůj souhlas se zpracováním zadaných údajů (jméno, telefon, e-mail, ip adresa) společnosti B3 Technology, s.r.o., IČ: 07330600, se sídlem Novostavby 126/23, 435 11 Lom (správce dat), za účelem předání dotazu z tohoto formuláře Vámi vybranému inzerentovi a zpětného kontaktování mé osoby. Osobní údaje bude správce zpracovávat manuálně i automaticky přímo prostřednictvím svých zaměstnanců. Informace předané tímto formulářem budou uloženy v databázi správce maximálně po dobu 10 let. Odvolání souhlasu s uložením a zpracováním poskytnutých dat lze e-mailem na info@realitymat.cz. V případě podezření na neoprávněné použití Vámi poskytnutých údajů máte právo předat podnět k šetření Úřadu pro ochranu osobních údajů. Více informací
Chystáte se prodat nemovitost?
Pomůžeme Vám!

Kontakt

Lubomír Polášek

Lubomír Polášek

Přihlášení k odběru

Nenechte si ujít nejnovější nabídky prodeje bytů 2+kk v Praze 10.

Podobné nabídky