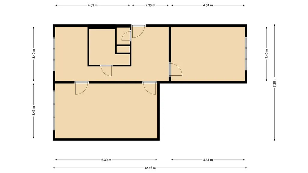
Pronájem bytu 2+1, Jirkov, Studentská, 61 m2 (ID: 2120825)

Studentská, Jirkov, okres Chomutov


12 000 Kč /za měsíc
Získejte výhodnou HYPOTÉKU

(měsíční poplatky Elektřina se převádí na nájemce)


Regionální dodavatelé v Jirkově

Okna a dveře

Rekonstrukce

Popis

Nabízíme k dlouhodobému pronájmu světlý a prakticky řešený byt 2+1 o výměře 61 m² umístěný v 5.patře v klidné části Jirkova (ulice Studentská), který je ideální jak pro jednotlivce, tak pro pár hledající komfortní bydlení s výbornou dostupností do Chomutova i okolí.

Byt je po kompletní rekonstrukci a byl dokončen v takovém provedení, kdy je kladen důraz na kvalitu materiálů a dlouhodobý komfort pro bydlení.

Dominantou bytu je hlavní obytný prostor s plynulým průchodem do kuchyně, která je funkčně řešená a vkusně zapadá do celkového prostoru. Kuchyň je vybavena varnou deskou, elektrickou troubou, digestoří a myčkou nádobí.

Další pokoj může sloužit jako ložnice, umístění pokoje je do zeleně.

V koupelně je umístěna vana, umyvadlo se zrcadlem a příprava na připojení na pračku. Součástí je i samotná místnost s toaletou. K bytu náleží i sklepní kóje, kterou naleznete v přízemí domu.

Byt se pronajímá nezařízený (s výjimkou kuchyňské linky s výše uvedeným spotřebiči, vany, umyvadla, toalety), což umožňuje nájemci přizpůsobit interiér vlastním potřebám.

K pronájmu je k dispozici ihned.

Neváhejte mne kontaktovat, abychom si mohli byt společně prohlédnout.

* Nájemné: 12.000,- Kč za měsíc
* Služby: 2.000,- Kč za měsíc pro 1 osobu; každá další osoba za 500,- Kč za měsíc
* Elektřina: přepis na nájemce
* Vratná kauce: 20.000,- Kč
* Provize RK: 14.500,- Kč (splatná při rezervaci pronájmu bytu v případě zájmu)

Cena
12 000 Kč /za měsíc
Poznámka k ceně
měsíční poplatky Elektřina se převádí na nájemce
Aktualizováno
4. 4. 2026
Adresa
Studentská, Jirkov, okres Chomutov
ID
202601
Stavba
Panelová
Stav objektu
Dobrý
Vybaveno
Částečně
Lokalita objektu
Klidná část obce
Vlastnictví
Osobní
Užitná plocha
61 m2
Třída energetické náročnosti
C - Úsporná

Máte zájem o tuto nemovitost?

Tímto, v souladu s nařízením Evropského parlamentu a Rady (EU) 2016/679, v platném znění, prohlašuji, že mi je alespoň 16 let a uděluji tak svůj souhlas se zpracováním zadaných údajů (jméno, telefon, e-mail, ip adresa) společnosti B3 Technology, s.r.o., IČ: 07330600, se sídlem Novostavby 126/23, 435 11 Lom (správce dat), za účelem předání dotazu z tohoto formuláře Vámi vybranému inzerentovi a zpětného kontaktování mé osoby. Osobní údaje bude správce zpracovávat manuálně i automaticky přímo prostřednictvím svých zaměstnanců. Informace předané tímto formulářem budou uloženy v databázi správce maximálně po dobu 10 let. Odvolání souhlasu s uložením a zpracováním poskytnutých dat lze e-mailem na info@realitymat.cz. V případě podezření na neoprávněné použití Vámi poskytnutých údajů máte právo předat podnět k šetření Úřadu pro ochranu osobních údajů. Více informací
Chystáte se prodat nemovitost?
Pomůžeme Vám!

Kontakt

Ing. Michaela Bartek

Ing. Michaela Bartek

Přihlášení k odběru

Nenechte si ujít nejnovější nabídky pronájmu bytů 2+1 v Jirkově.

Podobné nabídky