Prodej bytu 2+kk, Brno, Elgartova, 40 m2

Elgartova, Brno, Husovice


6 420 000 Kč /za nemovitost
HYPOTÉKA od 28 694 Kč /měs.

(Konečná cena včetně právního servisu. Prodej přímo od majitele. Neplatíte provizi., včetně poplatků, včetně provize, včetně právního servisu)


Regionální dodavatelé v Brně

Popis

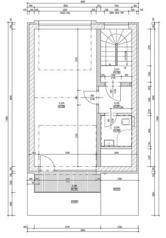
Nabízíme do prodeje moderní podkrovní byt 2+kk s balkónem na ulici Elgartova.

Klidná ulice na samém okraji Husovic.
Velký, nově zrekonstruovaný park jen 50 metrů od domu a rychlé spojení do centra.

Byt se nachází ve 3.NP novostavby cihlového domu o třech jednotkách, na každém patře jedna.
Disponuje 42 m² podlahové plochy a 5m² balkonem s pěkným výhledem do zeleného vnitrobloku.

Dispozičně 2+KK (dělicí příčka se ještě bude dodělávat), ideální pro jednotlivce nebo pár. Obývací část s kuchyní (dodáváme standardně bez kuchyňské linky) a vstupem na balkon. Předsíňka s prostorem pro pračku a úložné prostory a koupelna s vanou (změna oproti projektu z půdorysu).
Dokončeny budou samozřejmě i vstupní a interierové dveře, zábradlí a podlahy.
Kolaudace cca 07/2026.

Vytápění a ohřev vody zajišťuje společný plynový kondenzační kotel Baxi a podlahové vytápění po celém bytě.
Díky izolačním trojsklům a energetické třídě B tak nabízí nízké provozní náklady.
Podružná měřidla má každá jednotka samostatná.

Možnost dokoupit i garážové stání (vrata a vchodové dveře Lomax).

Jakékoliv dotazy Vám rád zodpovím po telefonu, nebo osobně na prohlídce.

Cena
6 420 000 Kč /za nemovitost Spočítat hypotéku
Poznámka k ceně
Konečná cena včetně právního servisu. Prodej přímo od majitele. Neplatíte provizi., včetně poplatků, včetně provize, včetně právního servisu
Aktualizováno
1. 4. 2026
Adresa
Elgartova, Brno, Husovice
ID
00414
Stavba
Cihlová
Stav objektu
Novostavba
Patro
3. z 3
Vybaveno
Ne
Lokalita objektu
Klidná část obce
Vlastnictví
Osobní
Užitná plocha
40 m2
Třída energetické náročnosti
B - Velmi úsporná
Ukazatel energetické náročnosti
92 kWh/m2 za rok
Elektřina
230V
Plyn
Plynovod
Odpad
Veřejná kanalizace
Komunikace
Asfaltová
Telekomunikace
Internet, Kabelová televize
Voda
Vodovod
Topné těleso
Podlahové vytápění
Zdroj topení
Plynový kondenzační kotel
Zdroj teplé vody
Plynový kondenzační kotel
Balkon
Garáž
Výtah

Máte zájem o tuto nemovitost?

Tímto, v souladu s nařízením Evropského parlamentu a Rady (EU) 2016/679, v platném znění, prohlašuji, že mi je alespoň 16 let a uděluji tak svůj souhlas se zpracováním zadaných údajů (jméno, telefon, e-mail, ip adresa) společnosti B3 Technology, s.r.o., IČ: 07330600, se sídlem Novostavby 126/23, 435 11 Lom (správce dat), za účelem předání dotazu z tohoto formuláře Vámi vybranému inzerentovi a zpětného kontaktování mé osoby. Osobní údaje bude správce zpracovávat manuálně i automaticky přímo prostřednictvím svých zaměstnanců. Informace předané tímto formulářem budou uloženy v databázi správce maximálně po dobu 10 let. Odvolání souhlasu s uložením a zpracováním poskytnutých dat lze e-mailem na info@realitymat.cz. V případě podezření na neoprávněné použití Vámi poskytnutých údajů máte právo předat podnět k šetření Úřadu pro ochranu osobních údajů. Více informací
Chystáte se prodat nemovitost?
Pomůžeme Vám!

Kontakt

Adam Stuchlík

Adam Stuchlík

Přihlášení k odběru

Nenechte si ujít nejnovější nabídky prodeje bytů 2+kk v Brně.

Podobné nabídky