Pronájem bytu 2+1, Praha - Vršovice, Na stezce, 50 m2

Na stezce, Praha, Vršovice


21 000 Kč /za měsíc
Získejte výhodnou HYPOTÉKU

(služby 3.513 Kč/měs. + elektřina (cca 1.000 Kč/měs.) + plyn (cca 250 Kč/měs.), kauce 26.000 Kč, provize ve výši jednoho nájmu)


Regionální dodavatelé v Praze 10

Stěhovací služby

Výkup a prodej starého nábytku

Popis

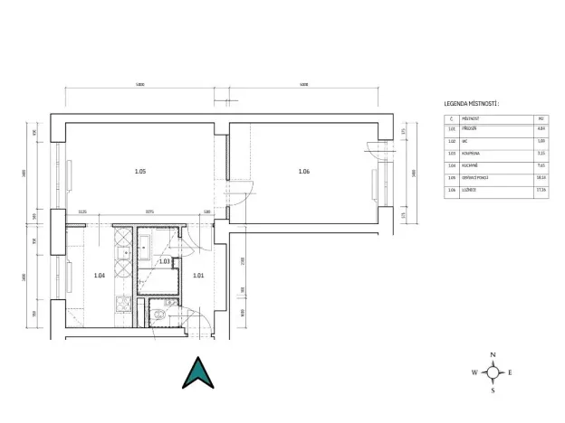
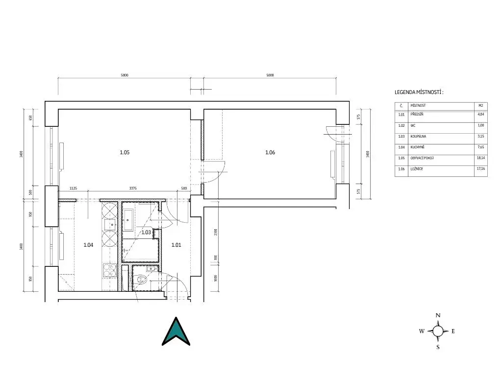
Exkluzivně nabízíme k pronájmu byt o dispozici 2+1 a podlahové ploše 50,13 m², situovaný ve 3. patře udržovaného domu s výtahem v oblíbené části Prahy – Vršovicích, v ulici Na Stezce.

Byt prošel před několika lety rekonstrukcí a je nabízen nezařízený, vybavený pouze kuchyňskou linkou a volně stojící lednicí, což dává novému nájemci ideální příležitost zařídit si interiér dle vlastního vkusu. Ložnice je orientována na východní stranu, obývací pokoj a kuchyň na západ.

Velkou výhodou této lokality je výborná dopravní dostupnost. V pěší vzdálenosti se nachází zastávky tramvají i autobusů s přímým spojením do centra města a na klíčové přestupní uzly. Nejbližší stanice metra linky „A“ Strašnická je zhruba 900 metrů od domu.

Vršovice patří mezi stále vyhledávanější pražské čtvrti díky kombinaci městského života a příjemné atmosféry. Jen pár minut chůze od domu se nachází Kubánské náměstí, kde se pravidelně konají farmářské trhy. V okolí najdete množství kaváren, restaurací, menších obchodů i služeb. Jednu zastávku tramvají se dostanete do obchodního centra Eden.

Byt bude k nastěhování od 1. 5. 2026.

V bytě je aktuálně stávající nájemník, proto v tuto chvíli není možné zajistit kvalitní a reprezentativní fotografie. Prohlídky jsou však po předchozí domluvě samozřejmě možné.

Pokud hledáte bydlení v lokalitě s výbornou dostupností, kompletní občanskou vybaveností a příjemnou atmosférou, tento byt je skvělou volbou.
Pro více informací nebo domluvení prohlídky mě neváhejte kontaktovat.

Cena
21 000 Kč /za měsíc
Poznámka k ceně
služby 3.513 Kč/měs. + elektřina (cca 1.000 Kč/měs.) + plyn (cca 250 Kč/měs.), kauce 26.000 Kč, provize ve výši jednoho nájmu
Aktualizováno
31. 3. 2026
Adresa
Na stezce, Praha, Vršovice
Stavba
Cihlová
Stav objektu
Dobrý
Patro
3.
Vybaveno
Ne
Vlastnictví
Osobní
Užitná plocha
50 m2
Doprava
Silnice, MHD, Autobus
Výtah

Máte zájem o tuto nemovitost?

Tímto, v souladu s nařízením Evropského parlamentu a Rady (EU) 2016/679, v platném znění, prohlašuji, že mi je alespoň 16 let a uděluji tak svůj souhlas se zpracováním zadaných údajů (jméno, telefon, e-mail, ip adresa) společnosti B3 Technology, s.r.o., IČ: 07330600, se sídlem Novostavby 126/23, 435 11 Lom (správce dat), za účelem předání dotazu z tohoto formuláře Vámi vybranému inzerentovi a zpětného kontaktování mé osoby. Osobní údaje bude správce zpracovávat manuálně i automaticky přímo prostřednictvím svých zaměstnanců. Informace předané tímto formulářem budou uloženy v databázi správce maximálně po dobu 10 let. Odvolání souhlasu s uložením a zpracováním poskytnutých dat lze e-mailem na info@realitymat.cz. V případě podezření na neoprávněné použití Vámi poskytnutých údajů máte právo předat podnět k šetření Úřadu pro ochranu osobních údajů. Více informací
Chystáte se prodat nemovitost?
Pomůžeme Vám!

Kontakt

Inna Kellerová

Inna Kellerová

Přihlášení k odběru

Nenechte si ujít nejnovější nabídky pronájmu bytů 2+1 v Praze 10.

Podobné nabídky