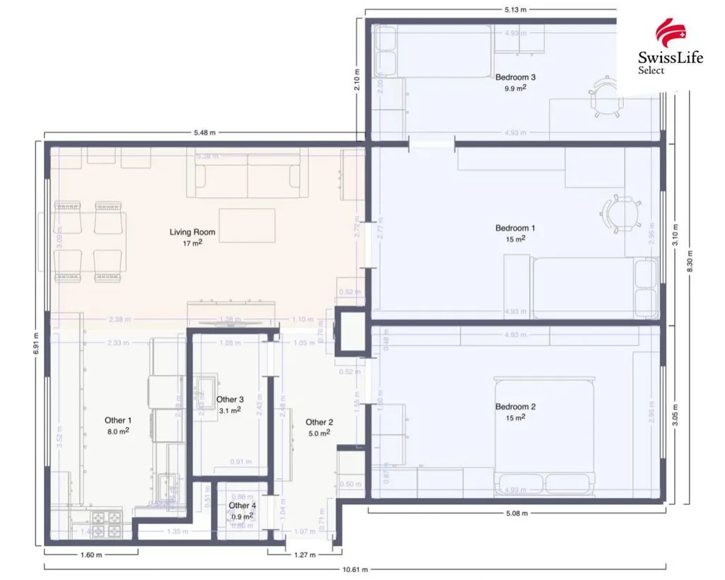
Prodej bytu 4+1, Trutnov, Marie Pujmanové, 75 m2

Marie Pujmanové, Kryblice


4 990 000 Kč /za nemovitost
HYPOTÉKA od 22 302 Kč /měs.
Regionální dodavatelé v Trutnově

Popis

Hledáte byt, který nabídne dostatek prostoru pro rodinu, výborný technický stav a lokalitu, kde máte všechno důležité skutečně po ruce? V tom případě by vás mohl zaujmout tento byt o dispozici 4+1 a výměře 79 m v oblíbené části Trutnova Kryblice.

Byt se nachází ve 3. patře cihlového bytového domu a prošel rekonstrukcí v roce 2016. Díky tomu je ve výborném technickém stavu a připravený k pohodlnému bydlení bez nutnosti zásadních investic. Příjemným benefitem je také sklep o velikosti přibližně 10 m, který nabídne dostatek úložného prostoru pro věci, které není potřeba mít každý den po ruce.

Velkou předností této nabídky je samotná lokalita. V pěší dostupnosti najdete školku, školu, zastávku MHD, obchod i další služby. A když budete chtít na chvíli vypnout od běžného provozu, do lesa se dostanete během několika minut chůze. Právě tohle spojení každodenní praktičnosti a blízkosti přírody dělá z Kryblice dlouhodobě vyhledávané místo pro rodinné bydlení.

Dům je zateplený, parkování je možné v okolí domu a byt je v osobním vlastnictví, takže financování hypotečním úvěrem je samozřejmostí. Měsíční náklady se pohybují přibližně kolem 2.200 Kč na osobu, z toho fond oprav činí cca 500 Kč na osobu.

Interiér bytu působí velmi dobře udržovaným dojmem. Příjemným prvkem jsou také parketové podlahy, které mají svůj charakter a po případné renovaci mohou být výrazným estetickým bonusem celého interiéru.

Byt bude k dispozici od 1. 7. 2026. Součást vybavení, které v bytě zůstane, je možná po dohodě.

Pokud hledáte prostorné a dobře situované rodinné bydlení v Trutnově, které kombinuje praktičnost, dobrou dostupnost a příjemné okolí, rád vám tuto nemovitost osobně představím.

Cena
4 990 000 Kč /za nemovitost Spočítat hypotéku
Aktualizováno
31. 3. 2026
Adresa
Marie Pujmanové, Kryblice
ID
25163
Stavba
Cihlová
Stav objektu
Velmi dobrý
Patro
3. z 4
Vybaveno
Ano
Typ objektu
Patrový
Vlastnictví
Osobní
Užitná plocha
75 m2
Podlahová plocha
75 m2
Třída energetické náročnosti
D - Méně úsporná
Elektřina
230V
Plyn
Plynovod
Odpad
Veřejná kanalizace
Topení
Ústřední dálkové
Komunikace
Asfaltová
Telekomunikace
Internet, Satelit, Kabelová televize
Doprava
Vlak, Silnice, MHD, Autobus
Voda
Vodovod
Sklep
Bezbarierový přístup
Parkování

Máte zájem o tuto nemovitost?

Tímto, v souladu s nařízením Evropského parlamentu a Rady (EU) 2016/679, v platném znění, prohlašuji, že mi je alespoň 16 let a uděluji tak svůj souhlas se zpracováním zadaných údajů (jméno, telefon, e-mail, ip adresa) společnosti B3 Technology, s.r.o., IČ: 07330600, se sídlem Novostavby 126/23, 435 11 Lom (správce dat), za účelem předání dotazu z tohoto formuláře Vámi vybranému inzerentovi a zpětného kontaktování mé osoby. Osobní údaje bude správce zpracovávat manuálně i automaticky přímo prostřednictvím svých zaměstnanců. Informace předané tímto formulářem budou uloženy v databázi správce maximálně po dobu 10 let. Odvolání souhlasu s uložením a zpracováním poskytnutých dat lze e-mailem na info@realitymat.cz. V případě podezření na neoprávněné použití Vámi poskytnutých údajů máte právo předat podnět k šetření Úřadu pro ochranu osobních údajů. Více informací
Chystáte se prodat nemovitost?
Pomůžeme Vám!

Kontakt

Jan Tangelmayer

Jan Tangelmayer

Přihlášení k odběru

Nenechte si ujít nejnovější nabídky prodeje bytů 4+1 v Trutnově.

Podobné nabídky