Prodej bytu 5+1, Plzeň, Sokolovská, 83 m2

Sokolovská, Plzeň 1


5 990 000 Kč /za nemovitost
HYPOTÉKA od 26 772 Kč /měs.
Regionální dodavatelé v Plzni

Stěhovací služby

Pojištění a finance

Popis

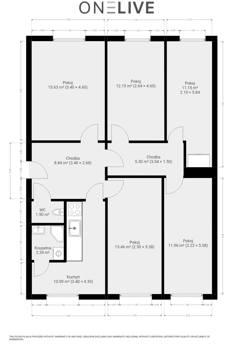
Nabízíme k prodeji prostorný byt o dispozici 5+1, který vznikl úpravou z původní dispozice 4+1. Bytová jednotka se nachází v přízemí panelového domu v žádané lokalitě Plzně, ulice Sokolovská. Díky své variabilitě a velikosti představuje ideální příležitost jak pro investory (např. za účelem studentského bydlení), tak pro rodinné bydlení s důrazem na prostor a soukromí.

Byt je převážně v původním stavu, což umožňuje novému majiteli realizaci rekonstrukce dle vlastních představ a standardů. Výjimkou je koupelna, která v minulosti prošla částečnou úpravou. Je zde ústřední topení, plyn je zaveden pouze pro vaření. Okna jsou plastová. Internetové připojení je dostupné například prostřednictvím sítě PilsFree.

Elektroinstalace je v původním stavu. Rozvody vody jsou původní, s plánovanou modernizací.

Dispoziční řešení bytu nabízí vysokou míru praktičnosti: ze vstupní předsíně je přístup do kuchyně, dvou samostatných pokojů a na oddělené WC. Dále byt disponuje koupelnou se sprchovým koutem a třemi dalšími neprůchozími pokoji.

K bytu náleží sklepní kóje. Dům prošel částečnou revitalizací – střecha byla rekonstruována v roce 2011, fasáda a výtah byly modernizovány na přelomu let 2006–2007.

Lokalita Plzeň – Bolevec, ulice Sokolovská, nabízí kompletní občanskou vybavenost v docházkové vzdálenosti. V okolí se nachází mateřské i základní školy, obchody, obchodní centrum, pošta, lékárna i zdravotnická zařízení. Samozřejmostí je výborná dostupnost MHD s rychlým spojením do centra města. Parkovaní je možné v okolních ulicích domu. Velkou výhodou je také blízkost přírody a Boleveckých rybníků, které poskytují ideální podmínky pro relaxaci i volnočasové aktivity.

Pro více informací či sjednání prohlídky nás neváhejte kontaktovat.

Cena
5 990 000 Kč /za nemovitost Spočítat hypotéku
Aktualizováno
18. 5. 2026
Adresa
Sokolovská, Plzeň 1
ID
0480
Stavba
Panelová
Stav objektu
Před rekonstrukcí
Patro
1. z 9
Vybaveno
Ne
Lokalita objektu
Klidná část obce
Vlastnictví
Osobní
Užitná plocha
83 m2
Podlahová plocha
83 m2
Třída energetické náročnosti
B - Velmi úsporná
Elektřina
230V
Plyn
Plynovod
Odpad
Veřejná kanalizace
Komunikace
Asfaltová
Telekomunikace
Internet
Voda
Vodovod
Sklep
Výtah

Máte zájem o tuto nemovitost?

Tímto, v souladu s nařízením Evropského parlamentu a Rady (EU) 2016/679, v platném znění, prohlašuji, že mi je alespoň 16 let a uděluji tak svůj souhlas se zpracováním zadaných údajů (jméno, telefon, e-mail, ip adresa) společnosti B3 Technology, s.r.o., IČ: 07330600, se sídlem Novostavby 126/23, 435 11 Lom (správce dat), za účelem předání dotazu z tohoto formuláře Vámi vybranému inzerentovi a zpětného kontaktování mé osoby. Osobní údaje bude správce zpracovávat manuálně i automaticky přímo prostřednictvím svých zaměstnanců. Informace předané tímto formulářem budou uloženy v databázi správce maximálně po dobu 10 let. Odvolání souhlasu s uložením a zpracováním poskytnutých dat lze e-mailem na info@realitymat.cz. V případě podezření na neoprávněné použití Vámi poskytnutých údajů máte právo předat podnět k šetření Úřadu pro ochranu osobních údajů. Více informací
Chystáte se prodat nemovitost?
Pomůžeme Vám!
Theleadway banner

Kontakt

Jana Zelenková

Jana Zelenková

Přihlášení k odběru

Nenechte si ujít nejnovější nabídky prodeje bytů 5+1 v Plzni.

Podobné nabídky