Prodej pozemku pro bydlení, Trutnov - Dolní Předměstí, Nad Poříčskou, 10284 m2

Nad Poříčskou, Trutnov, Dolní Předměstí


21 101 000 Kč /za nemovitost
HYPOTÉKA od 94 309 Kč /měs.

(o ceně je možné jednat)


Regionální dodavatelé v Trutnově

Popis

DEVELOPERSKÝ PROJEKT S OKAMŽITÝM STARTEM – TRUTNOV / VÝHLED NA KRKONOŠE
Hledáte projekt, kde můžete začít stavět bez zdržení a zároveň vydělat na dalším rozvoji?
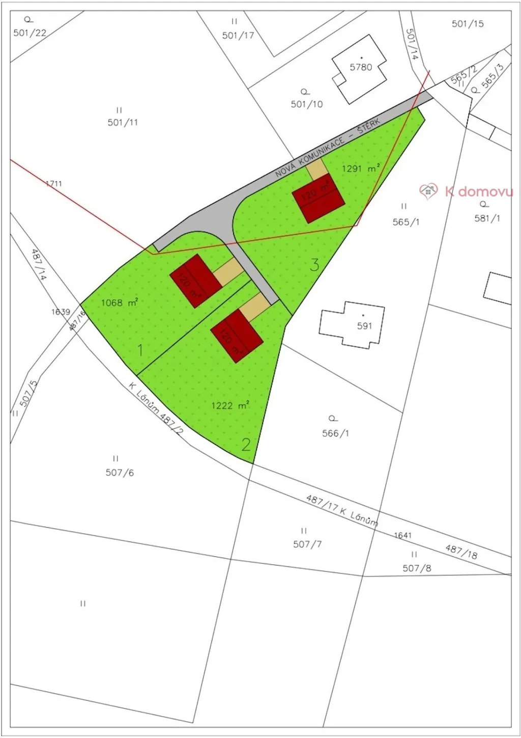
V Trutnově, v ulici Nad Poříčskou, nabízíme soubor pozemků o celkové výměře 10 284 m², určený pro výstavbu až 9 rodinných domů. PROJEKT, KTERÝ VÁM UŠETŘÍ ČAS I PENÍZE.
Na rozdíl od běžných pozemků zde nečekáte na infrastrukturu ani složité přípravy.
vybudovaná příjezdová komunikace včetně obratiště
elektřina a voda u hranice pozemků
zhutněné plochy připravené pro základové desky
kompletně vyřešený přístup
můžete začít stavět prakticky okamžitě
DVĚ FÁZE PROJEKTU = DVĚ PŘÍLEŽITOSTI /OKAMŽITÁ REALIZACE
Pozemky 563/1, 563/2, 563/3, 563/4 jsou připraveny k výstavbě rodinných domů. Pozemky 507/6 a 562/1 představují rezervu pro další výstavbu nebo investiční zhodnocení.
Ideální pro developera, který myslí dopředu. Vyděláváte nejen dnes, ale i v budoucnu.
LOKALITA, KTERÁ PRODÁVÁ SAMA
nádherný výhled na Krkonoše
ideální kombinace bydlení a rekreace
okolní nová rodinná výstavba
lyžování v Pec pod Sněžkou do 30 minut
klidné prostředí v přírodě
TECHNICKÉ INFORMACE
celková plocha: 10 284 m²
koeficient zastavěnosti: až 40 %
elektřina u hranice pozemku
voda u hranice pozemku
kanalizace - nutnost vlastní ČOV
pod komunikací odvodňovací kanál
PRO KOHO JE PROJEKT IDEÁLNÍ
developer pro realizaci menší rezidenční výstavby
investor hledající připravený projekt
kombinace výstavby a dlouhodobého zhodnocení
HLAVNÍ VÝHODA
Začínáte stavět hned a zároveň kupujete budoucnost.
Tady nekupujete pozemek. Kupujete projekt, kde můžete začít stavět bez čekání a zároveň získáváte prostor pro další rozvoj.
Podobně připravených projektů je v Trutnově minimum.
Pokud hledáte smysluplnou investici s okamžitým potenciálem, ráda vám projekt osobně představím.
Uvedené výměry jsou orientační. V případě více zájemců bude nemovitost prodána nejlepší nabídce a majitel si vyhrazuje právo vybrat kupujícího na základě jim zvolených kritérií. Veškeré zveřejněné údaje obsažené v tomto inzerátu mají pouze informativní charakter a nejsou nabídkou ve smyslu § 1731 nebo § 1732 občanského zákoníku, ani se nejedná o veřejný příslib dle § 1733 občanského zákoníku.

Cena
21 101 000 Kč /za nemovitost Spočítat hypotéku
Poznámka k ceně
o ceně je možné jednat
Aktualizováno
27. 3. 2026
Adresa
Nad Poříčskou, Trutnov, Dolní Předměstí
ID
2026-157
Stav objektu
Velmi dobrý
Lokalita objektu
Klidná část obce
Plocha pozemku
10284 m2
Komunikace
Zpevněná
Doprava
Silnice
Bezbarierový přístup

Máte zájem o tuto nemovitost?

Tímto, v souladu s nařízením Evropského parlamentu a Rady (EU) 2016/679, v platném znění, prohlašuji, že mi je alespoň 16 let a uděluji tak svůj souhlas se zpracováním zadaných údajů (jméno, telefon, e-mail, ip adresa) společnosti B3 Technology, s.r.o., IČ: 07330600, se sídlem Novostavby 126/23, 435 11 Lom (správce dat), za účelem předání dotazu z tohoto formuláře Vámi vybranému inzerentovi a zpětného kontaktování mé osoby. Osobní údaje bude správce zpracovávat manuálně i automaticky přímo prostřednictvím svých zaměstnanců. Informace předané tímto formulářem budou uloženy v databázi správce maximálně po dobu 10 let. Odvolání souhlasu s uložením a zpracováním poskytnutých dat lze e-mailem na info@realitymat.cz. V případě podezření na neoprávněné použití Vámi poskytnutých údajů máte právo předat podnět k šetření Úřadu pro ochranu osobních údajů. Více informací
Chystáte se prodat nemovitost?
Pomůžeme Vám!

Kontakt

Jana Musilová

Jana Musilová

Přihlášení k odběru

Nenechte si ujít nejnovější nabídky prodeje pozemků pro bydlení v Trutnově.

Podobné nabídky