Prodej pozemku pro bydlení, Ústí nad Labem - Neštěmice, 8439 m2

Ústí nad Labem, Neštěmice


7 500 000 Kč /za nemovitost
HYPOTÉKA od 33 520 Kč /měs.
Regionální dodavatelé v Ústí nad Labem

Okna a dveře

Rekonstrukce

Popis

Hledáte místo pro výstavbu, které budoucím obyvatelům nabídne víc než jen střechu nad hlavou? Exkluzivně nabízíme výjimečně situovaný pozemek o celkové rozloze 8 439 m², který kombinuje investiční potenciál s neopakovatelnou atmosférou.
Proč investovat právě zde?
Jedinečný výhled a vyvýšená poloha nad obcí zaručuje budoucím majitelům pocit svobody a soukromí. Slunné terasy orientované do údolí budou hlavním prodejním tahákem vašeho projektu.
Architektonická variabilita: Svažitý terén přímo vybízí k moderní kaskádovité výstavbě, která umožní každému domu nerušený výhled a maximální využití denního světla.
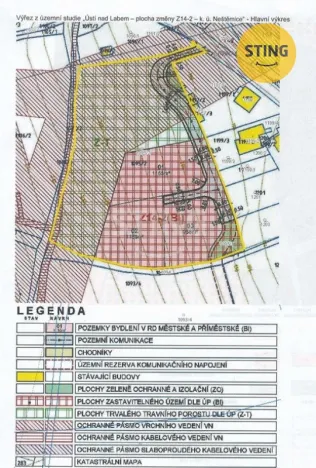
Územní plán: Zastavitelná plocha Z14-2 (BI – bydlení v rodinných domech) v kombinaci se zahradami (Z-T) vytváří prostor pro prémiový rezidenční celek.
Strategická poloha a infrastruktura:
Sítě na dosah: Připojení na elektřinu (ul. Sibiřská), plyn (ul. Ryjická), vodovodní řad i splaškovou kanalizaci v bezprostřední návaznosti.
Revoluce v dopravě (VRT): Plánovaná vysokorychlostní trať zkrátí cestu do Prahy na 30 minut. Z Neštěmic se tak stává atraktivní "předměstí" hlavního města, kde hodnota nemovitostí s výhledem poroste nejrychleji.
Lokalita těží z kombinace kompletní občanské vybavenosti v pěší vzdálenosti a bezprostřední blízkosti přírody.
Aktivní relaxace: Velkou výhodou je těsná blízkost Krušných hor. Během 20–30 minut jízdy se budoucí obyvatelé ocitnou na horských hřebenech, sjezdovkách či cyklotrasách (např. Telnice, Komáří hůrka).
Žádaný standard: Rostoucí poptávka po bydlení, které nabízí rychlé spojení s městem a zároveň okamžitý únik do hor, činí z tohoto pozemku unikátní nabídku na trhu.
Využijte potenciál místa, kde se potkává moderní bydlení, horská příroda a strategická investice.
V případě zájmu neváhejte kontaktovat makléřku. Do konce dubna 2026 nabízíme prostřednictvím našeho partnera úrokové sazby od 4,69 % p.a. Více informací Vám sdělí náš specialista na prohlídce.

Cena
7 500 000 Kč /za nemovitost Spočítat hypotéku
Aktualizováno
28. 3. 2026
Adresa
Ústí nad Labem, Neštěmice
ID
135013
Plocha pozemku
8439 m2

Máte zájem o tuto nemovitost?

Tímto, v souladu s nařízením Evropského parlamentu a Rady (EU) 2016/679, v platném znění, prohlašuji, že mi je alespoň 16 let a uděluji tak svůj souhlas se zpracováním zadaných údajů (jméno, telefon, e-mail, ip adresa) společnosti B3 Technology, s.r.o., IČ: 07330600, se sídlem Novostavby 126/23, 435 11 Lom (správce dat), za účelem předání dotazu z tohoto formuláře Vámi vybranému inzerentovi a zpětného kontaktování mé osoby. Osobní údaje bude správce zpracovávat manuálně i automaticky přímo prostřednictvím svých zaměstnanců. Informace předané tímto formulářem budou uloženy v databázi správce maximálně po dobu 10 let. Odvolání souhlasu s uložením a zpracováním poskytnutých dat lze e-mailem na info@realitymat.cz. V případě podezření na neoprávněné použití Vámi poskytnutých údajů máte právo předat podnět k šetření Úřadu pro ochranu osobních údajů. Více informací
Chystáte se prodat nemovitost?
Pomůžeme Vám!

Kontakt

Ing. Iryna Usheva

Ing. Iryna Usheva

Přihlášení k odběru

Nenechte si ujít nejnovější nabídky prodeje pozemků pro bydlení v Ústí nad Labem.

Podobné nabídky