Pronájem bytu 1+kk, Plzeň, Pilařská, 43 m2

Pilařská, Plzeň 4


15 000 Kč /za měsíc
Získejte výhodnou HYPOTÉKU

(+ záloha na služby 3.100 | El. převod na nájemce | Jistota 30.000 | Provize 15.000)


Regionální dodavatelé v Plzni

Stěhovací služby

Popis

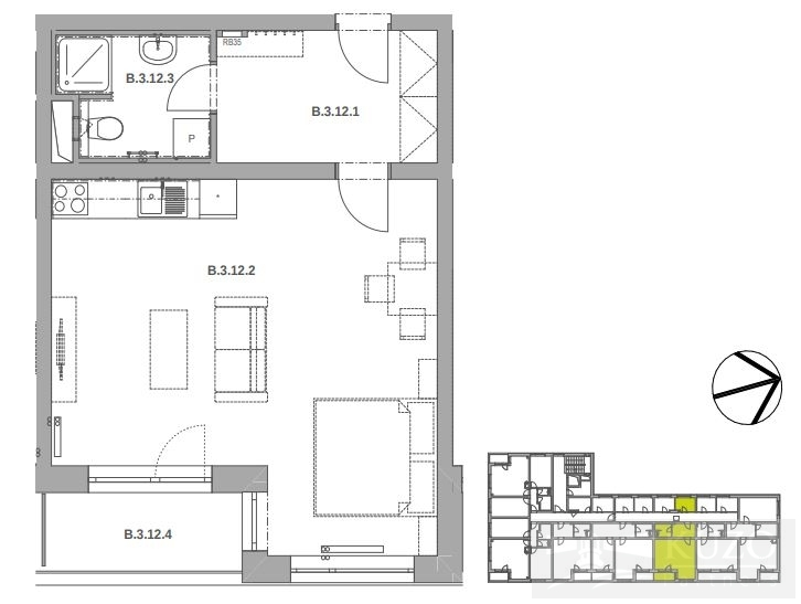
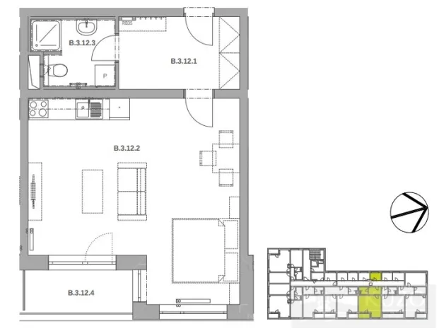
Nabízíme k pronájmu moderní a prostorný byt 1 + kk nacházející se na ulici Pilařská v části obce Doubravka, Plzeň. Tento byt v osobním vlastnictví o celkové užitné ploše 43,6 m² se nachází ve druhém patře novostavby cihlového domu s bezbariérovým přístupem a výtahem, což zajišťuje komfortní bydlení pro všechny jeho obyvatele.

Jednou z předností tohoto bytu je prostorná předsíň, která poskytuje dostatek místa pro uložení obuvi a kabátů a jehož součástí je velká vestavěná skříň. K bytu náleží také prostorný (sklep) místnost s vestavěnou skříní, okny, který se nachází přímo naproti bytovým dveřím.
Byt je navržen s důrazem na úsporné energetické řešení, což přispívá k nízkým nákladům na energie.

Kuchyňská část bytu je plně vybavená moderními elektrospotřebiči, včetně elektrické varné desky, pečící trouby, digestoře, myčky a ledničky s mrazničkou, což jistě potěší každého milovníka vaření. Velkorysá lodžie nabízí dostatek prostoru pro posezení a užívání si slunečných chvil, zatímco velká okna propouštějí do interiéru dostatek denního světla.

Koupelna je prostorná a vybavená sprchovým koutem, moderním prosvětleným, kruhovým zrcadlem. Příprava na pračku je samozřejmostí.
Podlahy v bytě jsou kombinací kvalitního vinylu a keramické dlažby, které dotvářejí moderní vzhled celého bydlení.

Užitná plocha bytu 45,3 m2
Obývací pokoj 31,13 m2
Předsíň 7,19 m2
Koupelna 4,15 m2
Lodžie 3,91 m2
Sklep 6,03 m2

Dům disponuje krytým parkovacím stáním pod domem, což zajišťuje pohodlné parkování a další komfort pro obyvatele. Parkovací kryté stání je za 2.000,-Kč měsíčně.
Do vnitrobloku je vjezd pouze přes závoru.
V okolí bytu je plná občanská vybavenost, včetně dostupnosti MHD, autobusových spojení.

Tento byt představuje ideální volbu pro ty, kteří hledají moderní a komfortní bydlení v příjemné lokalitě s veškerou potřebnou infrastrukturou. V případě zájmu o prohlídku nás neváhejte kontaktovat.

Cena
15 000 Kč /za měsíc
Poznámka k ceně
+ záloha na služby 3.100 | El. převod na nájemce | Jistota 30.000 | Provize 15.000
Aktualizováno
24. 3. 2026
Adresa
Pilařská, Plzeň 4
ID
22263
Stavba
Cihlová
Stav objektu
Novostavba
Patro
3.
Vybaveno
Ne
Vlastnictví
Osobní
Užitná plocha
43 m2
Zastavěná plocha
79 m2
Třída energetické náročnosti
B - Velmi úsporná
Elektřina
230V
Odpad
Veřejná kanalizace
Komunikace
Asfaltová
Telekomunikace
Internet
Doprava
Silnice, MHD, Autobus
Voda
Vodovod
Garáž
Sklep
Lodžie
Výtah
Bezbarierový přístup

Máte zájem o tuto nemovitost?

Tímto, v souladu s nařízením Evropského parlamentu a Rady (EU) 2016/679, v platném znění, prohlašuji, že mi je alespoň 16 let a uděluji tak svůj souhlas se zpracováním zadaných údajů (jméno, telefon, e-mail, ip adresa) společnosti B3 Technology, s.r.o., IČ: 07330600, se sídlem Novostavby 126/23, 435 11 Lom (správce dat), za účelem předání dotazu z tohoto formuláře Vámi vybranému inzerentovi a zpětného kontaktování mé osoby. Osobní údaje bude správce zpracovávat manuálně i automaticky přímo prostřednictvím svých zaměstnanců. Informace předané tímto formulářem budou uloženy v databázi správce maximálně po dobu 10 let. Odvolání souhlasu s uložením a zpracováním poskytnutých dat lze e-mailem na info@realitymat.cz. V případě podezření na neoprávněné použití Vámi poskytnutých údajů máte právo předat podnět k šetření Úřadu pro ochranu osobních údajů. Více informací
Chystáte se prodat nemovitost?
Pomůžeme Vám!

Kontakt

Libor Hula

Libor Hula

Přihlášení k odběru

Nenechte si ujít nejnovější nabídky pronájmu bytů 1+kk v Plzni.

Podobné nabídky