Prodej rodinného domu, Nová Ves, 153 m2

Nová Ves, Mlýnice


10 990 000 Kč /za nemovitost
HYPOTÉKA od 49 119 Kč /měs.
Regionální dodavatelé v Nové Vsi

Rekonstrukce

Úklidové služby

Popis

Nabídka novostavby moderního, nízkoenergetického rodinného domu, kolaudovaného v roce 2023.

Dům stojí na malebném místě, uprostřed malé osady Mlýnice, necelý kilometr nad Mlýnickou vodní nádrží. Poklidná osada je obklopená okolními bohatými lesy a loukami, zároveň je však místo výborně přístupné hned z několika směrů. Lokalita kombinuje venkovský klid s dostupností velkého města a stává se tak ideálním místem pro ty, kdo chtějí bydlet blíž k přírodě, ale zároveň mít město s obchody a službami takříkajíc „za rohem“.

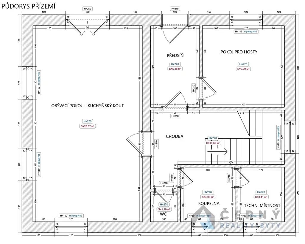
Jednopodlažní dům s obytným podkrovím a velkým půdním prostorem stojí na vlastním pozemku o výměře 828m2.
Dispozičně je řešen jako 5+kk se dvěma koupelnami a technickou místností. Užitná plocha objektu činí 153m2.

Dům je kompletně vybaven moderními technologiemi. Vytápění je řešeno tepelným čerpadlem vzduch/voda, v celém objektu je podlahové topení. V domě je instalován energeticky efektivní splitový klimatizační systém. Okna jsou opatřena trojskly, podlahové krytiny tvoří vinyl a dlažba.
V přízemí objektu se nachází vstupní předsíň, velmi prostorný obývací pokoj s kuchyňským koutem a výstupem na zahradu, pokoj pro hosty, koupelna se sprchovým koutem, samostatné WC a technická místnost. Moderní kuchyňská linka je kompletně vybavena spotřebiči včetně lednice a myčky nádobí. Ve druhém nadzemním podlaží jsou umístěny tři ložnice, prostorná koupelna s vanou a samostatná toaleta. Z chodby v patře je po výklopném schodišti přístup do velkého úložného půdního prostoru.

Celý dům působí velmi příjemným a útulným dojmem a je vybaven vkusným nábytkem a zařizovacími předměty. V případě zájmu je možnost většinu vybavení v domě ponechat.

Naprosto rovinatý pozemek kolem domu je oplocený a osázený pouze trávou, takže ponechává budoucímu majiteli možnost vytvořit si zahradu podle svých představ.

Termín uvolnění do 2-3 měs.

Bydlení, které vám poskytne klid a soukromí, dostatek vlastního prostoru a zároveň komfortní zázemí moderní novostavby. Bez práce, bez starostí - vše nové, v perfektním stavu - jen se nastěhovat a spokojeně žít.

Cena
10 990 000 Kč /za nemovitost Spočítat hypotéku
Aktualizováno
23. 3. 2026
Adresa
Nová Ves, Mlýnice
ID
277711
Stavba
Cihlová
Stav objektu
Novostavba
Druh objektu
Samostatný
Lokalita objektu
Klidná část obce
Užitná plocha
153 m2
Zastavěná plocha
84 m2
Plocha pozemku
828 m2
Plocha zahrady
744 m2
Třída energetické náročnosti
B - Velmi úsporná
Ukazatel energetické náročnosti
60.5 kWh/m2 za rok
Elektřina
230V
Odpad
ČOV pro celý objekt
Komunikace
Asfaltová
Telekomunikace
Internet
Doprava
Silnice, MHD
Voda
Studna
Topné těleso
Podlahové vytápění
Zdroj topení
Tepelné čerpadlo
Zdroj teplé vody
Tepelné čerpadlo

Máte zájem o tuto nemovitost?

Tímto, v souladu s nařízením Evropského parlamentu a Rady (EU) 2016/679, v platném znění, prohlašuji, že mi je alespoň 16 let a uděluji tak svůj souhlas se zpracováním zadaných údajů (jméno, telefon, e-mail, ip adresa) společnosti B3 Technology, s.r.o., IČ: 07330600, se sídlem Novostavby 126/23, 435 11 Lom (správce dat), za účelem předání dotazu z tohoto formuláře Vámi vybranému inzerentovi a zpětného kontaktování mé osoby. Osobní údaje bude správce zpracovávat manuálně i automaticky přímo prostřednictvím svých zaměstnanců. Informace předané tímto formulářem budou uloženy v databázi správce maximálně po dobu 10 let. Odvolání souhlasu s uložením a zpracováním poskytnutých dat lze e-mailem na info@realitymat.cz. V případě podezření na neoprávněné použití Vámi poskytnutých údajů máte právo předat podnět k šetření Úřadu pro ochranu osobních údajů. Více informací
Chystáte se prodat nemovitost?
Pomůžeme Vám!

Kontakt

Pavel Černý

Pavel Černý

Přihlášení k odběru

Nenechte si ujít nejnovější nabídky prodeje rodinných domů v Nové Vsi (okr. Liberec).

Podobné nabídky