Prodej bytu 2+kk, Ivančice, 44 m2 (ID: 2109903)

Ivančice


5 480 000 Kč /za nemovitost
HYPOTÉKA od 24 492 Kč /měs.

(včetně DPH, včetně provize, včetně právního servisu)


Regionální dodavatelé v Ivančicích

Popis

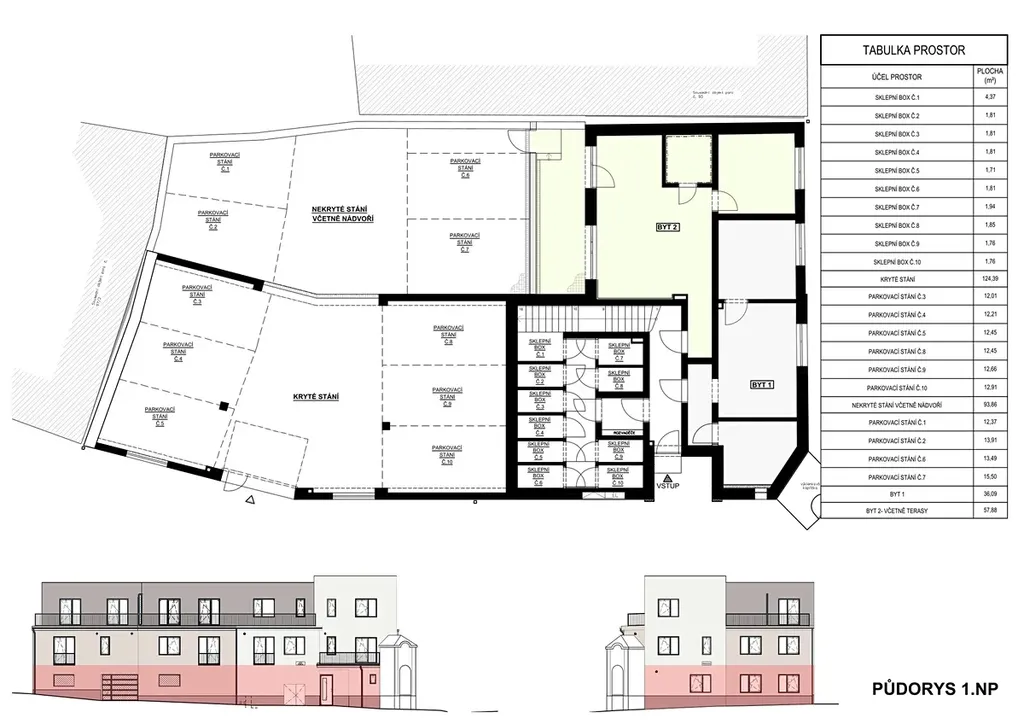
Nabízíme k prodeji byt 2+kk s prostornou terasou v novostavbě bytového domu o 10 jednotkách v bezprostředním centru města Ivančic, na nároží ulic Kounická a Jana Fibicha.
Bytová jednotka o dispozici 2+kk a podlahové ploše 43,92 m² se nachází v 1. nadzemním podlaží nízkoenergetického bytového domu situovaného v klidné části města Ivančice. Součástí bytu je terasová plocha o výměře 13,96 m², která nabízí příjemný prostor pro relaxaci nebo posezení. Součástí ceny bytu je sklepní kóje a nekryté parkovací stání.

Dispozice bytu:
– hala: 2,40 m²
– obývací pokoj s kuchyňským koutem: 27,48 m²
– ložnice: 10,35 m²
– koupelna s WC: 3,69 m²
– terasa: 13,96 m²

Byt je součástí novostavby bytového domu o pouhých 10 jednotkách, což zajišťuje klidné a komfortní bydlení bez rušného prostředí rozsáhlých rezidenčních komplexů.

K bytu náleží sklepní kóje (cca 1,8 m²) a nekryté parkovací stání, které poskytuje pohodlí a ochranu vozidla v průběhu celého roku. Dům se nachází v atraktivní lokalitě s výbornou dostupností do centra města a kompletní občanskou vybaveností – v okolí najdete školy, školky, obchody, zdravotnická zařízení, sportoviště i zastávky MHD.

Vybavení bytu:
– kvalitní vinylové podlahy a dlažba
– příprava na kuchyňskou linku
– plastová okna s izolačními trojskly
– předokenní žaluzie u oken orientovaných do ulice (jižní/západní strana)
– moderní sanitární vybavení

Bytový dům je aktuálně ve fázi dokončovacích prací, probíhá realizace koupelen a pokládka podlah, instalují se zařizovací předměty. Předpokládaný termín k nastěhování je 01/2026.

Pro více informací, půdorysy nebo sjednání prohlídky nás neváhejte kontaktovat.
Prodej přímo od investora – neplatíte provizi.

Cena
5 480 000 Kč /za nemovitost Spočítat hypotéku
Poznámka k ceně
včetně DPH, včetně provize, včetně právního servisu
Aktualizováno
21. 3. 2026
Adresa
Ivančice
ID
10247
Stavba
Cihlová
Stav objektu
Ve výstavbě
Patro
1. z 3
Vybaveno
Ne
Lokalita objektu
Centrum obce
Vlastnictví
Osobní
Užitná plocha
44 m2
Třída energetické náročnosti
B - Velmi úsporná
Ukazatel energetické náročnosti
118 kWh/m2 za rok
Sklep
Terasa
Výtah
Bezbarierový přístup
Parkování

Máte zájem o tuto nemovitost?

Tímto, v souladu s nařízením Evropského parlamentu a Rady (EU) 2016/679, v platném znění, prohlašuji, že mi je alespoň 16 let a uděluji tak svůj souhlas se zpracováním zadaných údajů (jméno, telefon, e-mail, ip adresa) společnosti B3 Technology, s.r.o., IČ: 07330600, se sídlem Novostavby 126/23, 435 11 Lom (správce dat), za účelem předání dotazu z tohoto formuláře Vámi vybranému inzerentovi a zpětného kontaktování mé osoby. Osobní údaje bude správce zpracovávat manuálně i automaticky přímo prostřednictvím svých zaměstnanců. Informace předané tímto formulářem budou uloženy v databázi správce maximálně po dobu 10 let. Odvolání souhlasu s uložením a zpracováním poskytnutých dat lze e-mailem na info@realitymat.cz. V případě podezření na neoprávněné použití Vámi poskytnutých údajů máte právo předat podnět k šetření Úřadu pro ochranu osobních údajů. Více informací
Chystáte se prodat nemovitost?
Pomůžeme Vám!

Kontakt

Ing. Lucie Hajdová, MBA. DiS.

Ing. Lucie Hajdová, MBA. DiS.

Přihlášení k odběru

Nenechte si ujít nejnovější nabídky prodeje bytů 2+kk v Ivančicích.

Podobné nabídky