Prodej chalupy, Tavíkovice - Dobronice, 95 m2

Tavíkovice, Dobronice


1 790 000 Kč /za nemovitost
HYPOTÉKA od 8 000 Kč /měs.

(cena je včetně provize, právních služeb a VIP servisu :-))


Regionální dodavatelé v Tavíkovicích

Popis

Nabízíme k prodeji stylovou chalupu v obci Dobronice u Tavíkovic, vhodnou k rekreaci i postupné rekonstrukci dle vlastních představ.

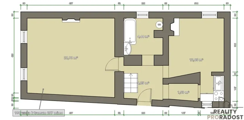
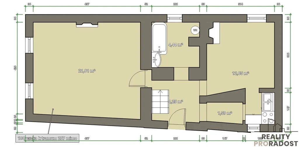
Chalupa má obytnou plochu cca 95 m² (spodní patro cca 44 m², podkroví cca 51 m²) a stojí na pozemku o výměře 180 m². Součástí je uzavřený dvůr, který poskytuje dostatek soukromí.

Nemovitost je možné ihned užívat. Zároveň je však potřeba počítat s postupnou rekonstrukcí a modernizací.


Technické informace a vybavení:

zavedený plyn
ústřední vytápění s plynovým kotlem a radiátory s rozvody v mědi
elektřina (doporučena modernizace rozvodů)
voda
odpad řešen trativodem
dům je suchý, bez známek vzlínající vlhkosti
ve spodním patře betonové podlahy
střecha s pálenou krytinou


Dispozice:

vstupní předsíň se vstupy do jednotlivých místností
obytná místnost s krbem
kuchyně
koupelna
obytné podkroví s možností vybudování až 2–3 pokojů a druhé koupelny


Další informace:

toaleta je aktuálně umístěna mimo hlavní obytnou část (za chalupou, přístup pod střechou)
součástí pozemku je kamenná stodola ve zhoršeném technickém stavu
za domem je užíván pozemek, který není součástí listu vlastnictví
nízké stropy a průchody odpovídají charakteru původní venkovské stavby

Chalupa je vhodná pro zájemce, kteří hledají autentickou nemovitost s atmosférou a jsou připraveni ji postupně upravit dle svých představ.

Více fotografií a detailů naleznete na webu nemovitosti https://tomikoceski.cz/stylova-chalupa/.
A samozřejmě vás rádi přivítáme osobně na prohlídce.

Cena
1 790 000 Kč /za nemovitost Spočítat hypotéku
Poznámka k ceně
cena je včetně provize, právních služeb a VIP servisu :-)
Aktualizováno
30. 3. 2026
Adresa
Tavíkovice, Dobronice
ID
29361
Stavba
Smíšená
Stav objektu
Před rekonstrukcí
Typ objektu
Patrový
Druh objektu
Samostatný
Užitná plocha
95 m2
Zastavěná plocha
93 m2
Podlahová plocha
95 m2
Plocha pozemku
180 m2
Plocha zahrady
87 m2
Třída energetické náročnosti
G - Mimořádně nehospodárná
Elektřina
230V, 400V
Plyn
Plynovod
Odpad
Trativod
Komunikace
Zpevněná, Štěrková
Doprava
Silnice
Voda
Studna
Garáž
Převod do OV

Máte zájem o tuto nemovitost?

Tímto, v souladu s nařízením Evropského parlamentu a Rady (EU) 2016/679, v platném znění, prohlašuji, že mi je alespoň 16 let a uděluji tak svůj souhlas se zpracováním zadaných údajů (jméno, telefon, e-mail, ip adresa) společnosti B3 Technology, s.r.o., IČ: 07330600, se sídlem Novostavby 126/23, 435 11 Lom (správce dat), za účelem předání dotazu z tohoto formuláře Vámi vybranému inzerentovi a zpětného kontaktování mé osoby. Osobní údaje bude správce zpracovávat manuálně i automaticky přímo prostřednictvím svých zaměstnanců. Informace předané tímto formulářem budou uloženy v databázi správce maximálně po dobu 10 let. Odvolání souhlasu s uložením a zpracováním poskytnutých dat lze e-mailem na info@realitymat.cz. V případě podezření na neoprávněné použití Vámi poskytnutých údajů máte právo předat podnět k šetření Úřadu pro ochranu osobních údajů. Více informací
Chystáte se prodat nemovitost?
Pomůžeme Vám!

Kontakt

Tomáš Vaněk

Tomáš Vaněk

Přihlášení k odběru

Nenechte si ujít nejnovější nabídky prodeje chalup v Tavíkovicích.

Podobné nabídky