Pronájem bytu 3+kk, Praha - Dejvice, Komornická, 78 m2 (ID: 2108635)

Komornická, Dejvice - Praha 6


28 400 Kč /za měsíc
Získejte výhodnou HYPOTÉKU

(vratná jistota, náklady na bydlení 6.000,-Kč, poplatek za podnájem)


Regionální dodavatelé v Praze 6

Stěhovací služby

Výkup a prodej starého nábytku

Pojištění a finance

Popis

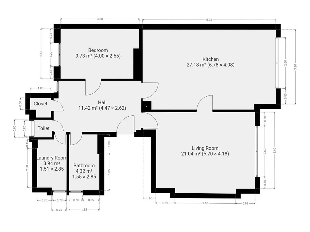
K dlouhodobému pronájmu nabízíme moderní a světlý byt 3+kk v klidné a atraktivní lokalitě Praha 6 – Dejvice. Byt o celkové ploše 78 m² se nachází v přízemí udržovaného domu bez výtahu. Součástí bytu je praktický sklep a parkovací stání na oploceném pozemku.

Byt je nabízen nezařízený, což umožňuje zařídit si interiér podle vlastního vkusu. Kuchyň je vybavena indukční varnou deskou, myčkou, elektrickou troubou, digestoří a dostatkem úložného prostoru. Obývací část nabízí světlý a prostorný prostor vhodný jak pro sedací soupravu, tak například pro jídelní kout. K dispozici je také jeden samostatný pokoj, který může sloužit jako ložnice. Koupelna je vybavena vanou a umyvadlem, toaleta je samostatná. Součástí bytu je i praktická šatna či úložná místnost.

V okolí domu je kompletní občanská vybavenost – obchod s potravinami Žabka, pošta, školy a školky, sportoviště, restaurace a lékařská péče. Pro volný čas je ideální Přírodní park Šárka, jen pár minut chůze od domu. Výbornou dopravní dostupnost zajišťují blízké zastávky autobusů a tramvají.

Byt je k nastěhování ihned.

Energetická třída: G (průkaz nedodán).

Cena
28 400 Kč /za měsíc
Poznámka k ceně
vratná jistota, náklady na bydlení 6.000,-Kč, poplatek za podnájem
Aktualizováno
14. 4. 2026
Adresa
Komornická, Dejvice - Praha 6
ID
N7453
Stavba
Kamenná
Stav objektu
Po rekonstrukci
Vybaveno
Ne
Typ objektu
Patrový
Lokalita objektu
Klidná část obce
Vlastnictví
Osobní
Užitná plocha
78 m2
Podlahová plocha
78 m2
Třída energetické náročnosti
G - Mimořádně nehospodárná
Elektřina
230V
Topení
Lokální plynové
Doprava
Silnice, MHD, Autobus
Sklep
Výtah
Bezbarierový přístup
Parkování

Máte zájem o tuto nemovitost?

Tímto, v souladu s nařízením Evropského parlamentu a Rady (EU) 2016/679, v platném znění, prohlašuji, že mi je alespoň 16 let a uděluji tak svůj souhlas se zpracováním zadaných údajů (jméno, telefon, e-mail, ip adresa) společnosti B3 Technology, s.r.o., IČ: 07330600, se sídlem Novostavby 126/23, 435 11 Lom (správce dat), za účelem předání dotazu z tohoto formuláře Vámi vybranému inzerentovi a zpětného kontaktování mé osoby. Osobní údaje bude správce zpracovávat manuálně i automaticky přímo prostřednictvím svých zaměstnanců. Informace předané tímto formulářem budou uloženy v databázi správce maximálně po dobu 10 let. Odvolání souhlasu s uložením a zpracováním poskytnutých dat lze e-mailem na info@realitymat.cz. V případě podezření na neoprávněné použití Vámi poskytnutých údajů máte právo předat podnět k šetření Úřadu pro ochranu osobních údajů. Více informací
Chystáte se prodat nemovitost?
Pomůžeme Vám!
Theleadway banner

Kontakt

Dana Oralová

Dana Oralová

Přihlášení k odběru

Nenechte si ujít nejnovější nabídky pronájmu bytů 3+kk v Praze 6.

Podobné nabídky